
Court Road, St Nicholas at Wade, Birchington
- PROPERTY TYPE
Residential Development
- SIZE
Ask agent
Key features
- 2.84 Acres (1.15 Hectares)
- Resolution To Grant Planning Consent for 13 Houses
- In a Sought After Village
- On the Edge of the Conservation Area
- Excellent Transport Links
Description
Situated
The site is on the northern edge of the village of St Nicholas at Wade on the Isle of Thanet, conveniently located for the A299 Thanet Way dual carriageway, leading to the M2 at Faversham. Railway stations are at Birchington (3½ miles) and Faversham (18 miles) with services to London Victoria and St Pancras. Thanet Parkway (6½ miles) has a high speed service to London St Pancras in just over 70 minutes. Local services between Canterbury & Ramsgate stop at Minster (4½ miles).
The village of St Nicholas at Wade is a thriving settlement centred around its historic village core with two pubs, a village store, historic church and primary school. Canterbury (10½ miles) and the Isle of Thanet towns all have excellent schooling for all ages and abilities. The north Kent coastline is a short distance away. Westwood Cross shopping centre is 8½ miles distant.
Description and Site Area
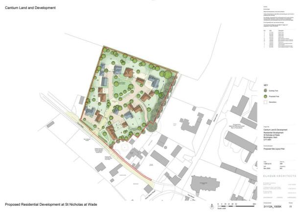
This 1.15 hectare (2.84 acres) site comprises a single level field, formerly a campsite and adjoining farmland. It is located on the edge of the village with an open aspect but close to the school and community facilities of the village. The site is shown edged red on the plan.
Planning
Thanet District Council resolved to grant detailed planning consent for 13 dwellings (reference: F/TH/25/0319) on 15th November 2025, with authority delegated to Officers to deal with the Section 106 Agreement.
The layout provides a mix of two, three, four and five-bedroomed dwellings. The site has been designed with sympathetic landscaping and vernacular materials. The access onto Court Road is to be relocated with improvements to the public footpath, forming part of the Section 106 Agreement. Biodiversity Net Gain (BNG) will be met through a combination of on site and off site provision. The off site provision is provided on land which is also owned by the landowner and will be included in the sale. A plan is available in the information pack.
The Officer’s report confirms the contributions which will be payable and the improvements to the pavement leading into the village. The Vendors’ solicitors are dealing with the Section 106 agreement.
Thanet District Council – –
Additional Information
Access to the data vault is available on request – n. – which contains all the planning documentation. This information is also held on the Thanet District Council website.
All the plans and images are produced by courtesy of Clague Architects. Mayler Colloton - ) will be pleased to assist the new owner in dealing with building regulations approval or any other matters.
Rights of Way, Wayleaves and Easements
The property is sold subject to and with the benefit of all existing covenants, wayleaves, easements and rights of way whether public or private, specifically mentioned or not.
Services
No capacity checks have been undertaken for any services. Southern Water plans show the proximity of the main sewer in Court Road. Mains water and electricity are nearby but Purchasers should make their own investigations.
Method of Sale
The property is to be offered for sale by Private Treaty with the right reserved to take the property to formal or informal tender at a later date.
Guide Price
Offers are invited on an unconditional basis, must be for a fixed price (excluding VAT) and will need to be accompanied by proof of funds, the buyer’s ID and proof of address, board approval process (if appropriate) and solicitor’s details.
VAT
An option to tax will be made in respect of this property and VAT at the prevailing rate will be payable on the purchase price.
Covenants
The land is to be sold subject to the covenants detailed below:
a.The Vendors will be retaining access through the site to their retained land over the trackway which the Purchaser will be required to construct between Plots 7 and 8. Access must be available during construction.
b.To carry out the development in accordance with the planning consent F/TH/25/0319 and to seek the Vendors’ (or their successors in title) written approval to any alterations or any subsequent extensions or outbuildings. The Purchaser and their successors in title will be responsible for any professional fees payable by the Vendors involved in dealing with any such approvals.
c.The Purchaser will be responsible for fencing any of the boundaries with the Vendors’ retained land to specifications to be agreed.
d.None of the completed properties will be used for any purpose other than as a single private dwelling or carry on any trade or business at the property save that the use of a home office in the property shall not be in breach of this covenant.
e.Not to use the property for any noisy, offensive, illegal or immoral purpose.
f.Not to do anything at the property that would cause loss, damage, injury, nuisance, annoyance, disturbance or inconvenience to the Vendors or the owners or occupiers of any neighbouring property or to any other person.
g.The BNG site will be subject to covenants restricting its use for BNG arising from F/TH/25/0319.
Viewing: Strictly by prior appointment through Nicholas Rooke, Finn’s Canterbury – , email: n. .
Brochures
Brochure St Nicholas Campsite FINAL 14_11_25.pdfBrochureCourt Road, St Nicholas at Wade, Birchington
NEAREST STATIONS
Distances are straight line measurements from the centre of the postcode- Birchington-on-Sea Station2.7 miles
- Minster Station3.4 miles
- Westgate-on-Sea Station4.2 miles
Notes
Disclaimer - Property reference 34306748. The information displayed about this property comprises a property advertisement. Rightmove.co.uk makes no warranty as to the accuracy or completeness of the advertisement or any linked or associated information, and Rightmove has no control over the content. This property advertisement does not constitute property particulars. The information is provided and maintained by Finn's, Canterbury. Please contact the selling agent or developer directly to obtain any information which may be available under the terms of The Energy Performance of Buildings (Certificates and Inspections) (England and Wales) Regulations 2007 or the Home Report if in relation to a residential property in Scotland.
Map data ©OpenStreetMap contributors.








