School House, Crow Lane, Apperknowle Dronfield, S18 4AL

Letting details
- Let available date:
- 01/02/2026
- Deposit:
- £3,230A deposit provides security for a landlord against damage, or unpaid rent by a tenant.Read more about deposit in our glossary page.
- Min. Tenancy:
- Ask agent How long the landlord offers to let the property for.Read more about tenancy length in our glossary page.
- Let type:
- Long term
- Furnish type:
- Furnished
- Council Tax:
- Ask agent
- PROPERTY TYPE
Semi-Detached
- BEDROOMS
4
- BATHROOMS
2
- SIZE
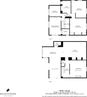
1,778 sq ft
165 sq m
Key features
- Fully furnished
- Modernised to an impeccable standard, complimenting the property's original charm with contemporary interior design
- Stunning bespoke, solid wood island kitchen with dishwasher, wine cooler and Belfast sink
- 2 bathrooms including the family bathroom with "his and hers" sinks, rain shower and freestanding bath + the master en-suite shower room
- Open plan accommodation with bi-fold doors into the garden
- Beautifully landscaped gardens surrounding the property view open field views
- Council tax band C
- Surrounded by glorious countryside with easy access to Sheffield and local amenities
- EPC rating - TBC
Description
The ground floor comprises; entrance hallway, ground floor WC, beautifully light, open plan living and dining kitchen area with bi-fold doors to the rear garden and a bespoke island kitchen with integrated oven, wine cooler, dishwasher and Belfast sink, separate utility room and the formal lounge with log burning stove.
The first floor comprises; family bathroom including a rain shower and free-standing bath, 4 generously sized bedrooms including bed 3 with fitted wardrobes and the master bedroom with en-suite shower room.
The property will be let on a fully furnished basis.
Rental Information - For fee information please copy and paste the link below for our tenant brochure
* We are a member of the Propertymark Client Money Protection Scheme - propertymark.co.uk
* We are a member of The Property Ombudsman Scheme - tpos.co.uk
* We place all our deposits in the Deposit Protection Scheme DPS - depositprotection.com
Brochures
School House, Crow Lane, Apperknowle Dronfield, S1Brochure- COUNCIL TAXA payment made to your local authority in order to pay for local services like schools, libraries, and refuse collection. The amount you pay depends on the value of the property.Read more about council Tax in our glossary page.
- Band: C
- PARKINGDetails of how and where vehicles can be parked, and any associated costs.Read more about parking in our glossary page.
- Ask agent
- GARDENA property has access to an outdoor space, which could be private or shared.
- Yes
- ACCESSIBILITYHow a property has been adapted to meet the needs of vulnerable or disabled individuals.Read more about accessibility in our glossary page.
- Ask agent
School House, Crow Lane, Apperknowle Dronfield, S18 4AL
Add an important place to see how long it'd take to get there from our property listings.
__mins driving to your place
Notes
Staying secure when looking for property
Ensure you're up to date with our latest advice on how to avoid fraud or scams when looking for property online.
Visit our security centre to find out moreDisclaimer - Property reference 34309568. The information displayed about this property comprises a property advertisement. Rightmove.co.uk makes no warranty as to the accuracy or completeness of the advertisement or any linked or associated information, and Rightmove has no control over the content. This property advertisement does not constitute property particulars. The information is provided and maintained by Dales & Peaks, Chesterfield. Please contact the selling agent or developer directly to obtain any information which may be available under the terms of The Energy Performance of Buildings (Certificates and Inspections) (England and Wales) Regulations 2007 or the Home Report if in relation to a residential property in Scotland.
*This is the average speed from the provider with the fastest broadband package available at this postcode. The average speed displayed is based on the download speeds of at least 50% of customers at peak time (8pm to 10pm). Fibre/cable services at the postcode are subject to availability and may differ between properties within a postcode. Speeds can be affected by a range of technical and environmental factors. The speed at the property may be lower than that listed above. You can check the estimated speed and confirm availability to a property prior to purchasing on the broadband provider's website. Providers may increase charges. The information is provided and maintained by Decision Technologies Limited. **This is indicative only and based on a 2-person household with multiple devices and simultaneous usage. Broadband performance is affected by multiple factors including number of occupants and devices, simultaneous usage, router range etc. For more information speak to your broadband provider.
Map data ©OpenStreetMap contributors.






