4 bedroom house for sale
Algarve, Lagos, Portugal
- PROPERTY TYPE
House
- BEDROOMS
4
- BATHROOMS
5
- SIZE
2,637 sq ft
245 sq m
Key features
- Near the beach
- Near city center
- Bedrooms: 4
- Garage
Description
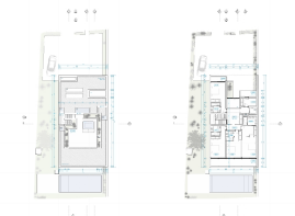
Just minutes from Camilo and Dona Ana beaches, this property is set on a 642m² plot and offers 300m² of built area, designed for those who value comfort, privacy, and proximity to the best Lagos has to offer.
On the ground floor, the spacious open-plan living room connects seamlessly to the fully equipped kitchen, creating a functional and elegant space. It also includes a laundry room, guest bathroom, and direct access to the terrace with a private pool. The garage, with an automated gate, adds extra convenience.
The first floor features four spacious suites, all with built-in wardrobes and balconies that allow you to enjoy panoramic views.
The rooftop terrace, designed for relaxation, includes a jacuzzi and a landscape that promises unforgettable moments.
Property Highlights
-Private outdoor pool
-Elevator for added convenience
-Air conditioning and underfloor heating throughout the villa
-Smart home system and solar panels
-High standard of thermal and acoustic insulation
This villa represents a unique opportunity to live or invest in one of the Algarve's most exclusive locations, combining the tranquility of nature with proximity to Lagos' historic center and its most iconic beaches.
Contact us for more information or to schedule a view.
Energy Rating: A+
#ref:ACC068_10
Algarve, Lagos, Portugal
NEAREST AIRPORTS
Distances are straight line measurements- Faro(International)40.2 miles
Advice on buying Portuguese property
Learn everything you need to know to successfully find and buy a property in Portugal.
Notes
This is a property advertisement provided and maintained by Access Portugal, Faro (reference 293315_22869330) and does not constitute property particulars. Whilst we require advertisers to act with best practice and provide accurate information, we can only publish advertisements in good faith and have not verified any claims or statements or inspected any of the properties, locations or opportunities promoted. Rightmove does not own or control and is not responsible for the properties, opportunities, website content, products or services provided or promoted by third parties and makes no warranties or representations as to the accuracy, completeness, legality, performance or suitability of any of the foregoing. We therefore accept no liability arising from any reliance made by any reader or person to whom this information is made available to. You must perform your own research and seek independent professional advice before making any decision to purchase or invest in overseas property.




