Halyburton Place, Cupar, Fife, KY15

- PROPERTY TYPE
Detached
- BEDROOMS
3
- BATHROOMS
1
- SIZE
Ask agent
- TENUREDescribes how you own a property. There are different types of tenure - freehold, leasehold, and commonhold.Read more about tenure in our glossary page.
Freehold
Description
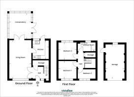
The accommodation comprises: Entrance hall with generous storage cupboard, bright and open lounge, spacious conservatory, modern kitchen fitted with a mixture of base and wall mounted units, induction hob, integrated oven, microwave, washing machine & fridge freezer. On the upper floor there are 2 good-sized double bedrooms plus a single bedroom and completing the accommodation is a stylish shower room with modern wet wall panelling and chrome towel heater.
Externally there is a large driveway with room for multiple vehicles, enclosed front garden plus detached garage with power, the spacious rear garden is enclosed and laid mainly to lawn with paved patio area.
Viewing is highly recommended.
We have been unable to verify material information that relates to this property. We ask that buyers make their own enquiries and satisfy themselves in regards to any specific requirements before proceeding.
Living Room 19'8" x 10'7" (6m x 3.23m)
Conservatory 14'9" x 10'6" (4.5m x 3.2m)
Kitchen 8'9" x 8'7" (2.67m x 2.62m)
Bedroom 10'5" x 9'11" (3.18m x 3.02m)
Bedroom 10'5" x 9'6" (3.18m x 2.9m)
Bedroom 9' x 5' (2.74m x 1.52m)
Shower Room 8'10" x 5'6" (2.7m x 1.68m)
Brochures
Particulars- COUNCIL TAXA payment made to your local authority in order to pay for local services like schools, libraries, and refuse collection. The amount you pay depends on the value of the property.Read more about council Tax in our glossary page.
- Band: D
- PARKINGDetails of how and where vehicles can be parked, and any associated costs.Read more about parking in our glossary page.
- Yes
- GARDENA property has access to an outdoor space, which could be private or shared.
- Yes
- ACCESSIBILITYHow a property has been adapted to meet the needs of vulnerable or disabled individuals.Read more about accessibility in our glossary page.
- Ask agent
Halyburton Place, Cupar, Fife, KY15
Add an important place to see how long it'd take to get there from our property listings.
__mins driving to your place
Get an instant, personalised result:
- Show sellers you’re serious
- Secure viewings faster with agents
- No impact on your credit score



Your mortgage
Notes
Staying secure when looking for property
Ensure you're up to date with our latest advice on how to avoid fraud or scams when looking for property online.
Visit our security centre to find out moreDisclaimer - Property reference GLS250392. The information displayed about this property comprises a property advertisement. Rightmove.co.uk makes no warranty as to the accuracy or completeness of the advertisement or any linked or associated information, and Rightmove has no control over the content. This property advertisement does not constitute property particulars. The information is provided and maintained by Slater Hogg & Howison, Glenrothes. Please contact the selling agent or developer directly to obtain any information which may be available under the terms of The Energy Performance of Buildings (Certificates and Inspections) (England and Wales) Regulations 2007 or the Home Report if in relation to a residential property in Scotland.
*This is the average speed from the provider with the fastest broadband package available at this postcode. The average speed displayed is based on the download speeds of at least 50% of customers at peak time (8pm to 10pm). Fibre/cable services at the postcode are subject to availability and may differ between properties within a postcode. Speeds can be affected by a range of technical and environmental factors. The speed at the property may be lower than that listed above. You can check the estimated speed and confirm availability to a property prior to purchasing on the broadband provider's website. Providers may increase charges. The information is provided and maintained by Decision Technologies Limited. **This is indicative only and based on a 2-person household with multiple devices and simultaneous usage. Broadband performance is affected by multiple factors including number of occupants and devices, simultaneous usage, router range etc. For more information speak to your broadband provider.
Map data ©OpenStreetMap contributors.




