Drybeck Avenue, Ramsgate, Kent, CT11

Letting details
- Let available date:
- 21/11/2025
- Deposit:
- £1,500A deposit provides security for a landlord against damage, or unpaid rent by a tenant.Read more about deposit in our glossary page.
- Min. Tenancy:
- 12 months How long the landlord offers to let the property for.Read more about tenancy length in our glossary page.
- Let type:
- Long term
- Furnish type:
- Unfurnished
- Council Tax:
- Ask agent
- PROPERTY TYPE
Semi-Detached
- BEDROOMS
3
- BATHROOMS
1
- SIZE
Ask agent
Key features
- Semi Detached Family Home
- Three Bedrooms
- EPC Grade D
- Council Tax Band C
- Off Street Parking And Garage
- Nethercourt Location
- Available now
Description
Located in a sought-after residential area, this charming semi-detached house offers a wonderful opportunity for a family looking to rent a beautiful home. Boasting three bedrooms, this unfurnished property provides a blank canvas for tenants to make it their own. The house is bright and airy, creating a welcoming and comfortable atmosphere throughout. Situated in a quiet neighbourhood, residents can enjoy peace and tranquillity while still being within easy reach of local amenities.
Additional features of this property include off-street parking and a garage, providing convenient and secure storage options. With its affordable rental price, this property is ideal for those seeking a comfortable and well-maintained home in a desirable location. Don't miss out on the chance to make this lovely house your new home. Contact us today to arrange a viewing.
IMPORTANT NOTE TO POTENTIAL PURCHASERS & TENANTS:
We endeavour to make our particulars accurate and reliable, however, they do not constitute or form part of an offer or any contract and none is to be relied upon as statements of representation or fact. The services, systems and appliances listed in this specification have not been tested by us and no guarantee as to their operating ability or efficiency is given. All photographs and measurements have been taken as a guide only and are not precise. Floor plans where included are not to scale and accuracy is not guaranteed. If you require clarification or further information on any points, please contact us, especially if you are traveling some distance to view. POTENTIAL PURCHASERS: Fixtures and fittings other than those mentioned are to be agreed with the seller. POTENTIAL TENANTS: All properties are available for a minimum length of time, with the exception of short term accommodation. Please contact the branch for details. A security deposit of at least one month’s rent is required. Rent is to be paid one month in advance. It is the tenant’s responsibility to insure any personal possessions. Payment of all utilities including water rates or metered supply and Council Tax is the responsibility of the tenant in most cases.
QRA070183/2
Description
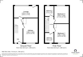
Early viewing is essential on this three bedroom semi detached family home loacted on the ever popular Nethercourt estate. Featuring a lounge/diner and fitted kitchen on the ground floor, whilst to the first floor there are two double bedrooms and a single bedroom, as well as the family bathroom W.C. Externally there is a rear garden which is mainly laid to lawn. To the front there is a driveway providing off street parking and this in turn leads to the garage. EPC Grade D. Council tax band C.
Entrance Hall
Living Room/Dining Room
4.87m x 3.57m
Kitchen
3.88m x 3m
Stairs To:-
First Floor Landing
Bedroom
3.89m x 2.99m
Bedroom
2.99m x 3.6m
Bedroom
2.41m x 1.78m
Bathroom/WC
2.03m x 1.75m
Outside
Rear Garden
Driveway
Garage
Brochures
Web DetailsFull Brochure PDF- COUNCIL TAXA payment made to your local authority in order to pay for local services like schools, libraries, and refuse collection. The amount you pay depends on the value of the property.Read more about council Tax in our glossary page.
- Band: C
- PARKINGDetails of how and where vehicles can be parked, and any associated costs.Read more about parking in our glossary page.
- Yes
- GARDENA property has access to an outdoor space, which could be private or shared.
- Yes
- ACCESSIBILITYHow a property has been adapted to meet the needs of vulnerable or disabled individuals.Read more about accessibility in our glossary page.
- Ask agent
Drybeck Avenue, Ramsgate, Kent, CT11
Add an important place to see how long it'd take to get there from our property listings.
__mins driving to your place
Notes
Staying secure when looking for property
Ensure you're up to date with our latest advice on how to avoid fraud or scams when looking for property online.
Visit our security centre to find out moreDisclaimer - Property reference QRA070183_L. The information displayed about this property comprises a property advertisement. Rightmove.co.uk makes no warranty as to the accuracy or completeness of the advertisement or any linked or associated information, and Rightmove has no control over the content. This property advertisement does not constitute property particulars. The information is provided and maintained by Your Move, Ramsgate. Please contact the selling agent or developer directly to obtain any information which may be available under the terms of The Energy Performance of Buildings (Certificates and Inspections) (England and Wales) Regulations 2007 or the Home Report if in relation to a residential property in Scotland.
*This is the average speed from the provider with the fastest broadband package available at this postcode. The average speed displayed is based on the download speeds of at least 50% of customers at peak time (8pm to 10pm). Fibre/cable services at the postcode are subject to availability and may differ between properties within a postcode. Speeds can be affected by a range of technical and environmental factors. The speed at the property may be lower than that listed above. You can check the estimated speed and confirm availability to a property prior to purchasing on the broadband provider's website. Providers may increase charges. The information is provided and maintained by Decision Technologies Limited. **This is indicative only and based on a 2-person household with multiple devices and simultaneous usage. Broadband performance is affected by multiple factors including number of occupants and devices, simultaneous usage, router range etc. For more information speak to your broadband provider.
Map data ©OpenStreetMap contributors.






