
Kent Avenue, Dagenham, RM9 6PE

- PROPERTY TYPE
Apartment
- BEDROOMS
2
- SIZE
Ask developer
Key features
- Never miss a parcel with our on-site concierge
- Move in by the end of the year
- Residents car club
- Approx. 544sqft
- Private balcony
- Excellent transport links to Canary Wharf and central London
- Experience the magic of a new home this year, and with our festive bauble incentive you could receive a luxury gift^
- 24 minutes to Canary Wharf from Dagenham Dock Station
- Need help with your deposit? Speak with our team about our 5% deposit boost*.
Description
This 4th floor apartment is ready to move in by the end of the year, offering 777sqft of carefully crafted space including a private balcony with unobstructed views over our 5-acre central park.
Apartment 892 is a bright, thoughtfully designed 777sqft two-bedroom apartment with everything you need to settle straight in. Located on the fourth floor of The Empire Apartments, this east-facing home floods with natural sunlight with a private balcony overlooking stunning green surroundings.
The generous open-plan kitchen, dining and living space is designed for both relaxing and entertaining. The kitchen comes fully fitted with Bosch appliances - including an oven, induction hob, microwave, dishwasher and fridge/freezer - all integrated behind sleek handle-less units, with soft-close drawers and a durable Caesarstone worktop. A freestanding washer/dryer is neatly stored in the hallway utility cupboard.
Both bedrooms are spacious, light and functional, with the principal bedrooms large fitted wardrobes blending luxury and functionality. The modern bathrooms are finished with sleek tiling, a heated chrome towel rail, a bath with overhead shower in the bathroom, a large glass walk-in shower in the ensuite and mirrored vanity storage in both.
Amtico flooring through the living areas and soft carpet in the bedroom, Apartment 892 blends functionality, comfort and style.
Why Dagenham Green?
Dagenham Green isn’t just a development - it's a regeneration scheme filled with growth and potential. With Dagenham Dock station is on your doorstep (taking just 21 minutes to central London), a proposed future on-site secondary school, green parks, and a growing community, this is a great time to buy in one of East London’s most exciting regeneration zones.
Want to find out what your life could look like at Dagenham Green? Speak with our sales team today to find out more!
*Deposit Boost - Offer is subject to terms and conditions, up to the value of 5% of purchase price, selected plots only. The offer cannot be used in conjunction with any other offer. Valid until 31.05.25. Please contact a member of our sales team for more information.
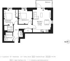
Apartment 892 - The Empire Apartments
Kitchen/Living & Dining Room - 4.45m x 5.55m (14'7" x 18'3")
Principal Bedroom - 3.45m x 3.8m (11'4" x 12'6")
Bedroom 2 - 3.3m x 3.55m (10'10" x 11'8")
- COUNCIL TAXA payment made to your local authority in order to pay for local services like schools, libraries, and refuse collection. The amount you pay depends on the value of the property.Read more about council Tax in our glossary page.
- Band: TBC
- PARKINGDetails of how and where vehicles can be parked, and any associated costs.Read more about parking in our glossary page.
- Ask developer
- GARDENA property has access to an outdoor space, which could be private or shared.
- Ask developer
- ACCESSIBILITYHow a property has been adapted to meet the needs of vulnerable or disabled individuals.Read more about accessibility in our glossary page.
- Ask developer
Energy performance certificate - ask developer
Kent Avenue, Dagenham, RM9 6PE
Add an important place to see how long it'd take to get there from our property listings.
__mins driving to your place
Get an instant, personalised result:
- Show sellers you’re serious
- Secure viewings faster with agents
- No impact on your credit score
About Hill Residential Limited
The Hill Group is a top 10 housebuilder* and one of the leading developers in London, the home counties, and the South. The company is renowned for its partnership ethos, specialising in the building of distinctive new places and communities where people want to live, work, and socialise.
In its 26th year, this family-owned and operated company has grown to establish itself as the UK's second-largest privately-owned housebuilder, with an impressive and diverse portfolio of projects ranging from landmark, mixed-use regenerations, and inner-city apartment developments to homes in rural communities.
Employing over 950 staff, the company operates from six strategically located regional offices including Bristol and Abingdon to help facilitate growth in the South West and the Midlands, with its head office based in Waltham Abbey, Essex.
Hill completed more than 2,800 homes in the last financial year and has a development pipeline of over 32,000 homes, including 10,200 with planning consent. Around half of its portfolio is in joint ventures to deliver a range of mixed-tenure developments, reflecting Hill’s commitment to partnerships with government, local authorities, housing associations, and private clients.
Since the company was founded in 1999, Hill has won over 500 industry awards, including the esteemed title of WhatHouse? Housebuilder of the Year in 2015, 2020 and 2023. Most recently in 2024, Millside Grange in Croxley Green also won The Standard’s Homes & Property Award for Best Commuter Home.
In addition, Hill’s dedication to delivering the highest quality homes and exceptional customer service has earned the housebuilder its 5-star status in the Home Builders Federation’s annual Customer Satisfaction Survey for the past eight years. Hill is a registered developer with the New Homes Quality Board (NHQB) and follows the New Homes Quality Code (NHQC), a new industry standard to ensure high-quality homes and an exceptional customer experience. With a score of 4.8 out of 5, Hill is also ranked as the number one housebuilder on Trustpilot.
Hill is donating 200 fully equipped modular homes to local authorities and homeless charities as part of a £15 million pledge through its Foundation 200 programme, launched in 2019 to mark Hill’s 20th anniversary.
Follow us on LinkedIn and Instagram @HillGroupUK
For more information, contact The Oracle Group PR Agency on Tel: 020 8394 2821 or hill@oraclepr.co.uk
*The Hill Group was listed within the top 10 of the Top 150 UK Contractors and Housebuilders published by Building.co.uk in December 2024
Your mortgage
Notes
Staying secure when looking for property
Ensure you're up to date with our latest advice on how to avoid fraud or scams when looking for property online.
Visit our security centre to find out moreDisclaimer - Property reference 2_DgnhmGrn-Aprtmnt892. The information displayed about this property comprises a property advertisement. Rightmove.co.uk makes no warranty as to the accuracy or completeness of the advertisement or any linked or associated information, and Rightmove has no control over the content. This property advertisement does not constitute property particulars. The information is provided and maintained by Hill Residential Limited. Please contact the selling agent or developer directly to obtain any information which may be available under the terms of The Energy Performance of Buildings (Certificates and Inspections) (England and Wales) Regulations 2007 or the Home Report if in relation to a residential property in Scotland.
*This is the average speed from the provider with the fastest broadband package available at this postcode. The average speed displayed is based on the download speeds of at least 50% of customers at peak time (8pm to 10pm). Fibre/cable services at the postcode are subject to availability and may differ between properties within a postcode. Speeds can be affected by a range of technical and environmental factors. The speed at the property may be lower than that listed above. You can check the estimated speed and confirm availability to a property prior to purchasing on the broadband provider's website. Providers may increase charges. The information is provided and maintained by Decision Technologies Limited. **This is indicative only and based on a 2-person household with multiple devices and simultaneous usage. Broadband performance is affected by multiple factors including number of occupants and devices, simultaneous usage, router range etc. For more information speak to your broadband provider.
Map data ©OpenStreetMap contributors.





