
2 bedroom maisonette for rent
Reedham Close, Tottenham Hale, London, N17

Letting details
- Let available date:
- Now
- Deposit:
- £2,134A deposit provides security for a landlord against damage, or unpaid rent by a tenant.Read more about deposit in our glossary page.
- Min. Tenancy:
- 6 months How long the landlord offers to let the property for.Read more about tenancy length in our glossary page.
- Let type:
- Long term
- Furnish type:
- Part furnished
- Council Tax:
- Ask agent
- PROPERTY TYPE
Maisonette
- BEDROOMS
2
- BATHROOMS
1
- SIZE
Ask agent
Key features
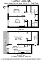
- Spacious 2-bedroom maisonette
- Bright living/dining room & modern kitchen
- Two well-sized bedrooms
- Private balcony
- Permit parking available (subject to application)
- Short walk to Tottenham Hale Station (Victoria Line, National Rail & Stansted Express)
- Close to shops, cafés, gyms & riverside walks
- Ideal for professionals and commuters
- Available from: NOW
- Council Tax: Band C & EPC Rating: D
Description
The property features a large and welcoming living and dining area, a separate fitted kitchen, two well-sized bedrooms and a modern bathroom. The layout is practical and well-designed, providing ample space for professionals, couples or small families. Secure entry to the building, pleasant communal grounds and on-estate permit parking (subject to application) contribute to a calm and convenient living environment.
Reedham Close benefits from outstanding transport connections. Tottenham Hale Station is only a short walk away and provides fast access across London via the Victoria Line, as well as National Rail services to Liverpool Street and Stratford, and the direct Stansted Express service to the airport. Multiple bus routes serve the surrounding area, making commuting simple and efficient.
The local area offers an excellent mix of amenities, including the newly redeveloped Tottenham Hale Retail Park with supermarkets, cafés, restaurants, gyms and everyday conveniences. Residents can also enjoy the natural surroundings of the River Lea, Walthamstow Wetlands and a network of riverside paths, offering a rare balance between urban convenience and peaceful outdoor spaces. Tottenham Hale is undergoing significant regeneration, bringing new homes, shops and improved public spaces, making it an increasingly desirable location.
This property is ideal for anyone seeking a spacious, well-located home with excellent transport links and access to both modern amenities and green open spaces.
Don't miss the opportunity to make this delightful maisonette your new home. Contact us today to arrange a viewing.
- COUNCIL TAXA payment made to your local authority in order to pay for local services like schools, libraries, and refuse collection. The amount you pay depends on the value of the property.Read more about council Tax in our glossary page.
- Band: C
- PARKINGDetails of how and where vehicles can be parked, and any associated costs.Read more about parking in our glossary page.
- On street,Permit,Residents
- GARDENA property has access to an outdoor space, which could be private or shared.
- Ask agent
- ACCESSIBILITYHow a property has been adapted to meet the needs of vulnerable or disabled individuals.Read more about accessibility in our glossary page.
- Ask agent
Reedham Close, Tottenham Hale, London, N17
Add an important place to see how long it'd take to get there from our property listings.
__mins driving to your place
Notes
Staying secure when looking for property
Ensure you're up to date with our latest advice on how to avoid fraud or scams when looking for property online.
Visit our security centre to find out moreDisclaimer - Property reference TOL160041_L. The information displayed about this property comprises a property advertisement. Rightmove.co.uk makes no warranty as to the accuracy or completeness of the advertisement or any linked or associated information, and Rightmove has no control over the content. This property advertisement does not constitute property particulars. The information is provided and maintained by Ellis & Co, Tottenham. Please contact the selling agent or developer directly to obtain any information which may be available under the terms of The Energy Performance of Buildings (Certificates and Inspections) (England and Wales) Regulations 2007 or the Home Report if in relation to a residential property in Scotland.
*This is the average speed from the provider with the fastest broadband package available at this postcode. The average speed displayed is based on the download speeds of at least 50% of customers at peak time (8pm to 10pm). Fibre/cable services at the postcode are subject to availability and may differ between properties within a postcode. Speeds can be affected by a range of technical and environmental factors. The speed at the property may be lower than that listed above. You can check the estimated speed and confirm availability to a property prior to purchasing on the broadband provider's website. Providers may increase charges. The information is provided and maintained by Decision Technologies Limited. **This is indicative only and based on a 2-person household with multiple devices and simultaneous usage. Broadband performance is affected by multiple factors including number of occupants and devices, simultaneous usage, router range etc. For more information speak to your broadband provider.
Map data ©OpenStreetMap contributors.








