
2 bedroom end of terrace house for sale
Main Road, Washingborough

- PROPERTY TYPE
End of Terrace
- BEDROOMS
2
- BATHROOMS
1
- SIZE
Ask agent
- TENUREDescribes how you own a property. There are different types of tenure - freehold, leasehold, and commonhold.Read more about tenure in our glossary page.
Freehold
Key features
- Traditional 2 Bedroom End Terraced House
- Lounge & Dining Room
- Kitchen, Utility Room & Cloakroom/WC
- 2 Double Bedrooms & 4 Piece Bathroom
- Beautiful Enclosed Rear Garden
- Viewing Highly Recommended
- EPC Energy Rating - D
- Council Tax Band - A (North Kesteven)
Description
LOCATION The charming village of Washingborough is situated 4 miles South East of the historic Cathedral City of Lincoln. Washingborough benefits from a mix of old and new properties, The Ferry Boat public house, the well-known Washingborough Hall Hotel and fine dining restaurant, shops, primary school and a variety of other amenities. Washingborough proves popular with people searching for a pleasant village to live.
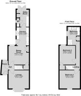
PORCH With doors to the front and rear aspects, tiled flooring and electric radiator.
HALL With staircase to the first floor and tiled flooring.
LOUNGE 12' 11" x 11' 7" (3.95m x 3.54m) With sash bay window to the front aspect with wooden shutters, log burner set within a feature fireplace, wooden flooring and radiator.
DINING ROOM 12' 11" x 11' 10" (3.95m x 3.63m) With double glazed window to the rear aspect, under stairs storage cupboard, built-in full height wall cupboard, laminate flooring and radiator.
KITCHEN 11' 6" x 7' 6" (3.52m x 2.30m) Fitted with a range of wall and base units with solid wood work top and matching upstand, Belfast sink, spaces for Range cooker, American fridge freezer and dishwasher, tiled flooring, spotlights, door to the rear garden and double glazed window to the side aspect.
UTILITY ROOM 10' 10 (max)" x 7' 9 (max)" (3.3m x 2.36m) Fitted with wall and base units with work surfaces over, space for tumble dryer, utility cupboard with plumbing for washing machine and wall mounted gas fired central heating boiler, double glazed French doors to the rear garden, tiled flooring and radiator.
CLOAKROOM/WC With close coupled WC, wash hand basin, tiled flooring and splashbacks, radiator and double glazed window to the side aspect.
FIRST FLOOR LANDING With wooden flooring and loft hatch with ladder leading to spacious mainly boarded loft space with light.
BEDROOM 1 12' 11" x 11' 10" (3.95m x 3.63m) With sash window to the front aspect with wooden shutters, decorative cast iron fireplace with quarry tiled hearth, wooden flooring and radiator.
BEDROOM 2 11' 11" x 9' 10" (3.64m x 3.00m) With double glazed window to the rear aspect, over stairs storage cupboard, wooden flooring and radiator.
BATHROOM 11' 6" x 7' 9" (3.53m x 2.38m) Fitted with a four piece suite comprising of freestanding roll top bath with panelled wall surround, shower cubicle with tiled splashbacks, close coupled WC and wash hand basin on a vanity stand, airing cupboard, wooden flooring, radiator and double glazed window to the side aspect.
OUTSIDE To the front of the property there is a paved garden set behind low level wall with steps rising to the front door. To the rear there is an enclosed garden laid mainly to lawn with block paved seating area, pergola, mature shrubs, flowerbeds, water outlet, lighting, second patio area to the rear and a garden shed with electric point.
Brochures
4 PAGE BROCHURE- COUNCIL TAXA payment made to your local authority in order to pay for local services like schools, libraries, and refuse collection. The amount you pay depends on the value of the property.Read more about council Tax in our glossary page.
- Band: A
- PARKINGDetails of how and where vehicles can be parked, and any associated costs.Read more about parking in our glossary page.
- On street
- GARDENA property has access to an outdoor space, which could be private or shared.
- Yes
- ACCESSIBILITYHow a property has been adapted to meet the needs of vulnerable or disabled individuals.Read more about accessibility in our glossary page.
- Ask agent
Main Road, Washingborough
Add an important place to see how long it'd take to get there from our property listings.
__mins driving to your place
Get an instant, personalised result:
- Show sellers you’re serious
- Secure viewings faster with agents
- No impact on your credit score
Your mortgage
Notes
Staying secure when looking for property
Ensure you're up to date with our latest advice on how to avoid fraud or scams when looking for property online.
Visit our security centre to find out moreDisclaimer - Property reference 102125035350. The information displayed about this property comprises a property advertisement. Rightmove.co.uk makes no warranty as to the accuracy or completeness of the advertisement or any linked or associated information, and Rightmove has no control over the content. This property advertisement does not constitute property particulars. The information is provided and maintained by Mundys, Lincoln. Please contact the selling agent or developer directly to obtain any information which may be available under the terms of The Energy Performance of Buildings (Certificates and Inspections) (England and Wales) Regulations 2007 or the Home Report if in relation to a residential property in Scotland.
*This is the average speed from the provider with the fastest broadband package available at this postcode. The average speed displayed is based on the download speeds of at least 50% of customers at peak time (8pm to 10pm). Fibre/cable services at the postcode are subject to availability and may differ between properties within a postcode. Speeds can be affected by a range of technical and environmental factors. The speed at the property may be lower than that listed above. You can check the estimated speed and confirm availability to a property prior to purchasing on the broadband provider's website. Providers may increase charges. The information is provided and maintained by Decision Technologies Limited. **This is indicative only and based on a 2-person household with multiple devices and simultaneous usage. Broadband performance is affected by multiple factors including number of occupants and devices, simultaneous usage, router range etc. For more information speak to your broadband provider.
Map data ©OpenStreetMap contributors.








