
Haseley Close, Matchborough East, Redditch, B98 0BW

- PROPERTY TYPE
Terraced
- BEDROOMS
3
- BATHROOMS
2
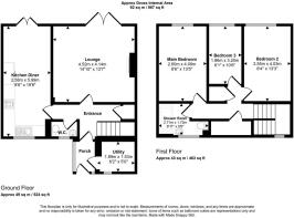
- SIZE
987 sq ft
92 sq m
- TENUREDescribes how you own a property. There are different types of tenure - freehold, leasehold, and commonhold.Read more about tenure in our glossary page.
Freehold
Key features
- Council tax band B and EPC rating C
- Low-maintenance rear garden with patio, decking, artificial lawn, summer house, shed, and gated rear access
- Modern family bathroom featuring walk-in shower, rainfall head, and heated towel rail
- Three well-proportioned bedrooms, including two doubles and a versatile third bedroom
- Convenient downstairs WC with contemporary fittings
- Stylish, modern kitchen-diner with integrated appliances
- Bright and cosy lounge with electric feature fireplace and patio doors to the rear garden
- Smart block-paved driveway, welcoming porch, and practical utility area
- Located in the popular area of Matchborough East, Redditch
- Beautifully presented and upgraded three-bedroom mid-terrace home
Description
A beautifully presented and thoughtfully upgraded three-bedroom mid-terrace home, perfectly positioned in the popular area of Matchborough East, Redditch. Warm, welcoming, and exceptionally well maintained, this charming property is ideal for first-time buyers or those looking to downsize without compromising on space or comfort.
Approached via a smart block-paved driveway, the home opens into a useful porch with modern tiled flooring, leading through to a highly practical utility area. From here, you are welcomed into the inviting entrance hallway, offering access to the lounge, kitchen-diner, downstairs WC, understairs storage, and stairs rising to the first floor.
The cosy lounge provides a perfect place to relax, featuring an electric feature fireplace, coved ceiling, and double-glazed patio doors that open directly onto the rear garden—filling the room with natural light.
The beautifully upgraded kitchen-diner is a real highlight of the home, thoughtfully designed with a range of modern wall and base units, integrated fridge, double oven with microwave, four-ring gas hob, and overhead extractor. With both a front-facing window and rear patio doors, the room is wonderfully bright and offers ample space for a family dining table, creating the ideal hub for everyday living and entertaining.
The stylish downstairs WC benefits from tiled flooring, a wall-hung sink, low-level WC, and a double-glazed window to the front.
Upstairs, the landing leads to three well-proportioned bedrooms, the family bathroom, and two generous storage cupboards—one housing the boiler. Bedroom One is a spacious double with wood-effect flooring and a peaceful rear outlook. Bedroom Two also offers a comfortable double space with fitted wardrobes, while Bedroom Three is a versatile single currently used as a dressing room, perfect for a nursery, home office, or additional bedroom.
The modern bathroom is beautifully finished, complete with a walk-in shower enclosure, power shower with rainfall head, vanity basin, heated towel rail, and low-level WC, complemented by a double-glazed window to the front.
Outside, the rear garden has been thoughtfully designed for low-maintenance enjoyment. With fenced boundaries and gated rear access, the space includes a paved patio ideal for outdoor dining, a decked seating area, artificial lawn, a charming summer house, and a garden shed. Practical touches include outside electrical points and a water tap—perfect for those who enjoy spending time outdoors.
This delightful home offers comfortable, modern living in a peaceful and popular location. With its inviting décor, upgraded features, and charming garden, it is ready to move into and enjoy.
Early viewing is highly recommended.
Brochures
Brochure 1- COUNCIL TAXA payment made to your local authority in order to pay for local services like schools, libraries, and refuse collection. The amount you pay depends on the value of the property.Read more about council Tax in our glossary page.
- Band: B
- PARKINGDetails of how and where vehicles can be parked, and any associated costs.Read more about parking in our glossary page.
- Driveway
- GARDENA property has access to an outdoor space, which could be private or shared.
- Private garden
- ACCESSIBILITYHow a property has been adapted to meet the needs of vulnerable or disabled individuals.Read more about accessibility in our glossary page.
- Ask agent
Haseley Close, Matchborough East, Redditch, B98 0BW
Add an important place to see how long it'd take to get there from our property listings.
__mins driving to your place
Get an instant, personalised result:
- Show sellers you’re serious
- Secure viewings faster with agents
- No impact on your credit score
About Homes by Victoria, Redditch
Office 29A, East Moons Moat Business Centre, Oxleasow Road, Redditch, B98 0RE

Your mortgage
Notes
Staying secure when looking for property
Ensure you're up to date with our latest advice on how to avoid fraud or scams when looking for property online.
Visit our security centre to find out moreDisclaimer - Property reference S1504874. The information displayed about this property comprises a property advertisement. Rightmove.co.uk makes no warranty as to the accuracy or completeness of the advertisement or any linked or associated information, and Rightmove has no control over the content. This property advertisement does not constitute property particulars. The information is provided and maintained by Homes by Victoria, Redditch. Please contact the selling agent or developer directly to obtain any information which may be available under the terms of The Energy Performance of Buildings (Certificates and Inspections) (England and Wales) Regulations 2007 or the Home Report if in relation to a residential property in Scotland.
*This is the average speed from the provider with the fastest broadband package available at this postcode. The average speed displayed is based on the download speeds of at least 50% of customers at peak time (8pm to 10pm). Fibre/cable services at the postcode are subject to availability and may differ between properties within a postcode. Speeds can be affected by a range of technical and environmental factors. The speed at the property may be lower than that listed above. You can check the estimated speed and confirm availability to a property prior to purchasing on the broadband provider's website. Providers may increase charges. The information is provided and maintained by Decision Technologies Limited. **This is indicative only and based on a 2-person household with multiple devices and simultaneous usage. Broadband performance is affected by multiple factors including number of occupants and devices, simultaneous usage, router range etc. For more information speak to your broadband provider.
Map data ©OpenStreetMap contributors.





