
Deepdale, Hollinswood, Telford, Shropshire, TF3

Letting details
- Let available date:
- Ask agent
- Deposit:
- £1,050A deposit provides security for a landlord against damage, or unpaid rent by a tenant.Read more about deposit in our glossary page.
- Min. Tenancy:
- 6 months How long the landlord offers to let the property for.Read more about tenancy length in our glossary page.
- Let type:
- Long term
- Furnish type:
- Unfurnished
- Council Tax:
- Ask agent
- PROPERTY TYPE
Terraced
- BEDROOMS
4
- BATHROOMS
1
- SIZE
Ask agent
Key features
- Spacious Four Bedroom House
- Council Tax Band (B) Telford & Wrekin Council
- £1050.00 PCM & £1050.00 DEPOSIT
- Downstairs Wet Room
- EPC :C
- Garage
- Private and Enclosed Rear Garden
Description
Walking through the front door you will be greeted with a welcoming entrance hall, leading to a spacious lounge, fitted kitchen / diner, sitting room and downstairs wet room.
Heading upstairs you will find four generous bedrooms as well as a fully equipped shower room.
Externally you will find an easy to maintain and enclosed rear garden!
Located in the popular Hollinswood area of Telford the property benefits from great access to a range of transport links, schools and amenities!
With its spacious and versatile accommodation as well as a prime location viewings are highly recommended on this fantastic property!
£1050.00 PCM & £1050.00 DEPOSIT
VIDEO TOUR VIEWING AVAILABLE FOR FIRST VIEWING. CALL US FOR YOUR APPLICATION FORM.
Mobile coverage is available from 3 major networks* Limited network 3
Superfast Full Fibre Broadband*
All services are mains connected*
Garage and Driveway Parking
*Results provided by Ofcom and correct at time of listing*
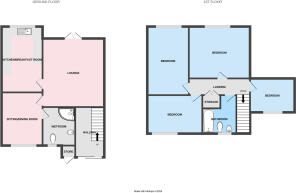
Entrance Hall
Lounge
4.4m x 4.2m
Kitchen / Diner
4.5m x 2.8m
Sitting Room
3.7m x 2.8m
Wet Room
2.6m x 2.3m
First Floor
Bedroom
4.5m x 2.9m
Bedroom
3.9m x 2.6m
Bedroom
4.1m x 3.5m
Bedroom
3.1m x 2.4m
Shower Room
2.3m x 1.9m
Brochures
Particulars- COUNCIL TAXA payment made to your local authority in order to pay for local services like schools, libraries, and refuse collection. The amount you pay depends on the value of the property.Read more about council Tax in our glossary page.
- Band: B
- PARKINGDetails of how and where vehicles can be parked, and any associated costs.Read more about parking in our glossary page.
- Garage,Driveway
- GARDENA property has access to an outdoor space, which could be private or shared.
- Yes
- ACCESSIBILITYHow a property has been adapted to meet the needs of vulnerable or disabled individuals.Read more about accessibility in our glossary page.
- Ask agent
Deepdale, Hollinswood, Telford, Shropshire, TF3
Add an important place to see how long it'd take to get there from our property listings.
__mins driving to your place



Notes
Staying secure when looking for property
Ensure you're up to date with our latest advice on how to avoid fraud or scams when looking for property online.
Visit our security centre to find out moreDisclaimer - Property reference TTC241669_L. The information displayed about this property comprises a property advertisement. Rightmove.co.uk makes no warranty as to the accuracy or completeness of the advertisement or any linked or associated information, and Rightmove has no control over the content. This property advertisement does not constitute property particulars. The information is provided and maintained by D B Roberts & Partners, Oakengates. Please contact the selling agent or developer directly to obtain any information which may be available under the terms of The Energy Performance of Buildings (Certificates and Inspections) (England and Wales) Regulations 2007 or the Home Report if in relation to a residential property in Scotland.
*This is the average speed from the provider with the fastest broadband package available at this postcode. The average speed displayed is based on the download speeds of at least 50% of customers at peak time (8pm to 10pm). Fibre/cable services at the postcode are subject to availability and may differ between properties within a postcode. Speeds can be affected by a range of technical and environmental factors. The speed at the property may be lower than that listed above. You can check the estimated speed and confirm availability to a property prior to purchasing on the broadband provider's website. Providers may increase charges. The information is provided and maintained by Decision Technologies Limited. **This is indicative only and based on a 2-person household with multiple devices and simultaneous usage. Broadband performance is affected by multiple factors including number of occupants and devices, simultaneous usage, router range etc. For more information speak to your broadband provider.
Map data ©OpenStreetMap contributors.





