4 bedroom detached house for sale
The Orchard, Heybridge, Maldon, Essex, CM9

- PROPERTY TYPE
Detached
- BEDROOMS
4
- BATHROOMS
3
- SIZE
Ask agent
- TENUREDescribes how you own a property. There are different types of tenure - freehold, leasehold, and commonhold.Read more about tenure in our glossary page.
Freehold
Key features
- 4 Bedrooms
- Kitchen
- Living Room
- Conservatory
- Wc
- Dressing Area
- En-Suite
- Wardrobe
- Bathroom
Description
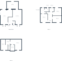
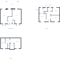
Located in a peaceful cul-de-sac in the heart of Heybridge, this impressive four-bedroom detached property offers spacious, well-designed accommodation arranged over three floors. The home is ideal for families seeking comfort, versatility and convenience, with excellent access to local amenities, schools and commuter routes.
Upon entering, you are welcomed into a bright hallway leading to a generous living room, perfect for family relaxation and entertaining. The modern kitchen provides ample storage and worktop space, while the adjoining conservatory offers an additional reception area filled with natural light, overlooking the private rear garden. A convenient downstairs WC completes the ground floor.
The first floor offers three well-proportioned bedrooms, including a superb master suite featuring a dressing room and an en-suite shower room. A family bathroom with a contemporary three-piece suite serves the remaining bedrooms on this level.
The top floor hosts a luxurious additional bedroom with its own walk-in wardrobe and a stylish private bathroom complete with a shower, bathtub and high-quality finishes — ideal as a guest suite, teenager’s floor or private retreat.
Outside, the low-maintenance paved rear garden offers excellent privacy, is not overlooked, and includes a hot tub — perfect for outdoor entertaining. The property further benefits from off-road parking, a garage, and side gate access.
Heybridge is a highly desirable area close to Maldon, offering a range of local shops, cafés, pubs, schools and stunning riverside walks along the Blackwater Estuary. Excellent road links make commuting straightforward, and nearby amenities provide everything needed for day-to-day convenience.
This exceptional property combines comfort, space and a fantastic location — an ideal family home not to be missed.
Approximate total area: 186.03 Meters Squared or 2002.41 Feet Squared
Viewing is highly recommended to fully appreciate the size and potential of this property.
Buyer Process: Our customers use British Homebuyers to either purchase or assist in selling properties quickly and reliably. Therefore any new applicants to purchase are subject to vetting to ensure they meet strict criteria.
Exclusivity Fee:
You can secure the purchase today by paying an exclusivity fee of £2,000 which gives you the rights to purchase within a given timeframe. The exclusivity fee is returned to you upon successful completion of the property.
A processing fee of £200 is required in order to draw up an exclusive legally binding contract between the buyer and seller. This gives the buyer exclusive rights to purchase within a pre-agreed timeframe.
Paying this fee ensures that the seller takes their property off the market and reserves it exclusively for you, therefore eliminating the risk of gazumping and aborted costs.
Disclaimer
The particulars are set out as a general outline only for the guidance of intended purchasers and do not constitute, any part of a contract. Nothing in these particulars shall be deemed to be a statement that the property is in good structural condition or otherwise nor that any of the services, appliances, equipment or facilities are in good working order. Purchasers should satisfy themselves of this prior to purchasing. The photograph(s) depict only certain parts of the property. It should not be assumed that any contents/furniture etc. photographed are included in the sale. It should not be assumed that the property remains as displayed in the photograph(s). No assumption should be made with regard to parts of the property that have not been photographed. Any areas, measurements, aspects or distances referred to are given as a GUIDE ONLY and are NOT precise. If such details are fundamental to a purchase, purchasers must rely on their own enquiries. Descriptions of the property are subjective and are used in good faith as an opinion and NOT as a statement of fact. Please make further inquiries to ensure that our descriptions are likely to match any expectations you may have.
- COUNCIL TAXA payment made to your local authority in order to pay for local services like schools, libraries, and refuse collection. The amount you pay depends on the value of the property.Read more about council Tax in our glossary page.
- Band: TBC
- PARKINGDetails of how and where vehicles can be parked, and any associated costs.Read more about parking in our glossary page.
- Yes
- GARDENA property has access to an outdoor space, which could be private or shared.
- Yes
- ACCESSIBILITYHow a property has been adapted to meet the needs of vulnerable or disabled individuals.Read more about accessibility in our glossary page.
- Ask agent
The Orchard, Heybridge, Maldon, Essex, CM9
Add an important place to see how long it'd take to get there from our property listings.
__mins driving to your place
Get an instant, personalised result:
- Show sellers you’re serious
- Secure viewings faster with agents
- No impact on your credit score
Your mortgage
Notes
Staying secure when looking for property
Ensure you're up to date with our latest advice on how to avoid fraud or scams when looking for property online.
Visit our security centre to find out moreDisclaimer - Property reference BHO252436. The information displayed about this property comprises a property advertisement. Rightmove.co.uk makes no warranty as to the accuracy or completeness of the advertisement or any linked or associated information, and Rightmove has no control over the content. This property advertisement does not constitute property particulars. The information is provided and maintained by British Homesellers, National. Please contact the selling agent or developer directly to obtain any information which may be available under the terms of The Energy Performance of Buildings (Certificates and Inspections) (England and Wales) Regulations 2007 or the Home Report if in relation to a residential property in Scotland.
*This is the average speed from the provider with the fastest broadband package available at this postcode. The average speed displayed is based on the download speeds of at least 50% of customers at peak time (8pm to 10pm). Fibre/cable services at the postcode are subject to availability and may differ between properties within a postcode. Speeds can be affected by a range of technical and environmental factors. The speed at the property may be lower than that listed above. You can check the estimated speed and confirm availability to a property prior to purchasing on the broadband provider's website. Providers may increase charges. The information is provided and maintained by Decision Technologies Limited. **This is indicative only and based on a 2-person household with multiple devices and simultaneous usage. Broadband performance is affected by multiple factors including number of occupants and devices, simultaneous usage, router range etc. For more information speak to your broadband provider.
Map data ©OpenStreetMap contributors.




