2 bedroom end of terrace house for sale
Percy Street, Gloucester

- PROPERTY TYPE
End of Terrace
- BEDROOMS
2
- BATHROOMS
1
- SIZE
646 sq ft
60 sq m
- TENUREDescribes how you own a property. There are different types of tenure - freehold, leasehold, and commonhold.Read more about tenure in our glossary page.
Freehold
Key features
- No onward chain
- Two double bedroom end-terraced property
- In need of modernisation
- Potential to extend and create further living space
- Private & enclosed rear garden
- Potential rental income of £1,100 pcm
- EPC rating E40
- Gloucester City Council - Tax Band A (£1,492.52 per annum) 2025/2026
Description
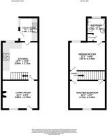
Living Room - Spacious living room with wood burner installed and window overlooking the front aspect. Access is provided to the kitchen.
Kitchen / Dining Room - The generous sized room provides suitable space for a dining table, range cooker and additional free standing appliances. Stairwell within the room leads to the first floor accommodation. Window overlooks the rear aspect whilst access is also provided to the utility room to the rear.
Utility Room - Providing an extension from the kitchen, the utility room benefits from additional worktop space, sink with drainer and plumbing for an automatic washing machine. Access from the room is provided to the rear garden.
Landing - The landing provides access to both bedrooms.
Bedroom One - Double bedroom with window overlooking the front aspect and access to a built-in wardrobe.
Bedroom Two - Double bedroom with window overlooking the rear aspect and access provided to the bathroom.
Bathroom - White suite bathroom comprises w.c, wash hand basin, bath with shower over and window with frosted glass overlooking the rear aspect.
Outside - To the rear, the property benefits from a private and low maintenance rear garden consisting of decked and patio areas with flower beds to the sides. Access is provided to several convenient outbuildings providing additional storage or the potential to convert to incorporate into the house itself. Large purpose built shed to the rear benefits from power and lighting providing the potential to be used as a home office or workshop if required.
Location - A popular suburb within the heart of the Gloucester, the locality appeals to a wide range of tenants having a range of various amenities, good bus links to both the centre and hospital alongside being a short distance from the newly developed Gloucester Quays providing various restaurants, bars and twelve screen cinema allowing it to be a strong area of investment offering a positive yield.
Material Information - Tenure: Freehold.
Local Authority and Rates: Gloucester City Council - Tax Band A (£1,492.52 per annum) 2025/2026.
Electricity supply: Mains.
Water supply: Mains.
Sewerage: Mains.
Heating: Electric Storage Heaters. Gas connection is provided to the property.
Broadband speed: Basic 13 Mbps, Superfast 43 Mbps, Ultrafast 1000 Mbps download speed.
Mobile phone coverage: EE, Three, O2, Vodafone.
Brochures
Percy Street, Gloucester- COUNCIL TAXA payment made to your local authority in order to pay for local services like schools, libraries, and refuse collection. The amount you pay depends on the value of the property.Read more about council Tax in our glossary page.
- Band: A
- PARKINGDetails of how and where vehicles can be parked, and any associated costs.Read more about parking in our glossary page.
- Ask agent
- GARDENA property has access to an outdoor space, which could be private or shared.
- Yes
- ACCESSIBILITYHow a property has been adapted to meet the needs of vulnerable or disabled individuals.Read more about accessibility in our glossary page.
- Ask agent
Percy Street, Gloucester
Add an important place to see how long it'd take to get there from our property listings.
__mins driving to your place
Get an instant, personalised result:
- Show sellers you’re serious
- Secure viewings faster with agents
- No impact on your credit score



Your mortgage
Notes
Staying secure when looking for property
Ensure you're up to date with our latest advice on how to avoid fraud or scams when looking for property online.
Visit our security centre to find out moreDisclaimer - Property reference 34313366. The information displayed about this property comprises a property advertisement. Rightmove.co.uk makes no warranty as to the accuracy or completeness of the advertisement or any linked or associated information, and Rightmove has no control over the content. This property advertisement does not constitute property particulars. The information is provided and maintained by Naylor Powell, Gloucester. Please contact the selling agent or developer directly to obtain any information which may be available under the terms of The Energy Performance of Buildings (Certificates and Inspections) (England and Wales) Regulations 2007 or the Home Report if in relation to a residential property in Scotland.
*This is the average speed from the provider with the fastest broadband package available at this postcode. The average speed displayed is based on the download speeds of at least 50% of customers at peak time (8pm to 10pm). Fibre/cable services at the postcode are subject to availability and may differ between properties within a postcode. Speeds can be affected by a range of technical and environmental factors. The speed at the property may be lower than that listed above. You can check the estimated speed and confirm availability to a property prior to purchasing on the broadband provider's website. Providers may increase charges. The information is provided and maintained by Decision Technologies Limited. **This is indicative only and based on a 2-person household with multiple devices and simultaneous usage. Broadband performance is affected by multiple factors including number of occupants and devices, simultaneous usage, router range etc. For more information speak to your broadband provider.
Map data ©OpenStreetMap contributors.




