
Aldridge Close, Wigan, WN3

- PROPERTY TYPE
Semi-Detached
- BEDROOMS
3
- BATHROOMS
1
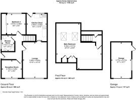
- SIZE
1,108 sq ft
103 sq m
Key features
- Three-bedroom semi-detached bungalow in Hawkley, no chain
- Driveway for 3–4 cars and low-maintenance front garden
- Lounge and kitchen diner
- Two ground-floor bedrooms, one with built-in wardrobes
- Loft bedroom with Velux windows and storage
- Rear garden with lawn, patio, shed, and detached garage
- EPC- tbc
- Council tax band - B
- Leasehold, 939 years remaining, £20 p/a
Description
Located on Aldridge Close in the ever-popular area of Hawkley, this spacious three-bedroom semi-detached bungalow is offered for sale with no chain and provides a rare opportunity in a highly sought-after cul-de-sac. With direct access at the bottom of the street to the picturesque Scotsman’s Flash, the property enjoys a peaceful setting while remaining close to local amenities, shops and transport links.
The bungalow offers excellent kerb appeal with a driveway to the front providing parking for three to four cars, along with a low-maintenance front garden finished with decorative stones. Inside, a welcoming entrance hallway leads to a well-proportioned lounge and a bright kitchen diner. Two bedrooms are located on the ground floor, one benefiting from built-in wardrobes. A third bedroom occupies the converted loft space, featuring Velux windows, built-in wardrobes and ample storage, making it a fantastic additional double bedroom. The property offers a total of 1108 sq ft of accommodation.
Externally, the rear garden is a generous size, featuring a lawn, patio area, storage shed and a detached garage, ideal for additional storage or a workshop.
With its flexible layout, spacious plot, driveway parking, detached garage and superb location close to stunning walking routes, this no-chain property offers a wonderful opportunity for those seeking a comfortable and well-positioned home in Hawkley.
- COUNCIL TAXA payment made to your local authority in order to pay for local services like schools, libraries, and refuse collection. The amount you pay depends on the value of the property.Read more about council Tax in our glossary page.
- Band: B
- PARKINGDetails of how and where vehicles can be parked, and any associated costs.Read more about parking in our glossary page.
- Yes
- GARDENA property has access to an outdoor space, which could be private or shared.
- Yes
- ACCESSIBILITYHow a property has been adapted to meet the needs of vulnerable or disabled individuals.Read more about accessibility in our glossary page.
- Ask agent
Energy performance certificate - ask agent
Aldridge Close, Wigan, WN3
Add an important place to see how long it'd take to get there from our property listings.
__mins driving to your place
Get an instant, personalised result:
- Show sellers you’re serious
- Secure viewings faster with agents
- No impact on your credit score
Your mortgage
Notes
Staying secure when looking for property
Ensure you're up to date with our latest advice on how to avoid fraud or scams when looking for property online.
Visit our security centre to find out moreDisclaimer - Property reference a4a2dcd5-0719-4a7a-ae62-7beb43a4e543. The information displayed about this property comprises a property advertisement. Rightmove.co.uk makes no warranty as to the accuracy or completeness of the advertisement or any linked or associated information, and Rightmove has no control over the content. This property advertisement does not constitute property particulars. The information is provided and maintained by Breakey & Co, Wigan. Please contact the selling agent or developer directly to obtain any information which may be available under the terms of The Energy Performance of Buildings (Certificates and Inspections) (England and Wales) Regulations 2007 or the Home Report if in relation to a residential property in Scotland.
*This is the average speed from the provider with the fastest broadband package available at this postcode. The average speed displayed is based on the download speeds of at least 50% of customers at peak time (8pm to 10pm). Fibre/cable services at the postcode are subject to availability and may differ between properties within a postcode. Speeds can be affected by a range of technical and environmental factors. The speed at the property may be lower than that listed above. You can check the estimated speed and confirm availability to a property prior to purchasing on the broadband provider's website. Providers may increase charges. The information is provided and maintained by Decision Technologies Limited. **This is indicative only and based on a 2-person household with multiple devices and simultaneous usage. Broadband performance is affected by multiple factors including number of occupants and devices, simultaneous usage, router range etc. For more information speak to your broadband provider.
Map data ©OpenStreetMap contributors.





