Building plots, Staunton on Arrow
- PROPERTY TYPE
Plot
- SIZE
1,205 sq ft
112 sq m
Key features
- 0.5 acre double building plot
- Full planning for 2 x 3 bed detached Cottages
- Semi-rural location
- Additional land available by separate negotiation
- Herefordshire planning no. P240728/F
- Viewing by appointment only
Description
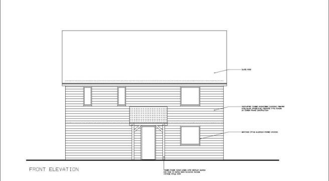
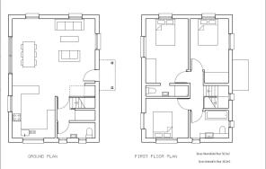
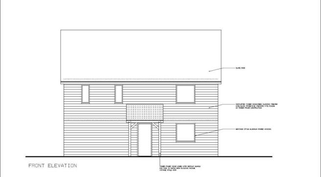
Introduction - A unique opportunity to purchase a large plot measuring approximately 0.5 acres with detailed planning for 2 x 3 bedroom detached cottage style properties. Full details can be found on the Herefordshire Planning Portal under reference P240728/F. The address is noted as Land Adjacent to The Old Vicarage, Staunton on Arrow. The approved plans show the approved properties measure approximately 112 sq. m (1205 sq. ft.) and comprises an open plan living/kitchen on the ground floor and three bedrooms with ensuite and family bathroom on the first floor.
The site slopes gently up off the lane and then flattens out and then gently slopes down to the rear and is south facing.
Mains electric & water is available to the site.
Drainage will be to a newly installed sewerage treatment plant to be shared by the two new properties and the existing property (see plans).
Surface water drainage will be contained within each plot through soak ways
The vendor has indicated that further land may be available to the rear but would not be included in the residential curtilage of the planning but suitable for planting as an orchard
Brochures
Building plots, Staunton on ArrowBrochureBuilding plots, Staunton on Arrow
NEAREST STATIONS
Distances are straight line measurements from the centre of the postcode- Bucknell Station8.4 miles
Notes
Disclaimer - Property reference 34314861. The information displayed about this property comprises a property advertisement. Rightmove.co.uk makes no warranty as to the accuracy or completeness of the advertisement or any linked or associated information, and Rightmove has no control over the content. This property advertisement does not constitute property particulars. The information is provided and maintained by Cobb Amos, Leominster. Please contact the selling agent or developer directly to obtain any information which may be available under the terms of The Energy Performance of Buildings (Certificates and Inspections) (England and Wales) Regulations 2007 or the Home Report if in relation to a residential property in Scotland.
Map data ©OpenStreetMap contributors.








