Ventnor Spiritualist Church
- SIZE AVAILABLE
2,659 sq ft
247 sq m
- SECTOR
High street retail property for sale
Description
LOCATION
Located in Victoria Street, close to the centre of Ventnor and within walking distance of various car parks. Ventnor benefits from being on the south facing slope of St Boniface Down and is almost totally sheltered from the north.
The town has seen considerable recent investment, with a Tesco Express opening in the High Street and the creation of a small harbour on the picturesque Esplanade.
The immediate population of around 6,000 residents is substantially boosted by the many visitors and locals alike wishing to enjoy the arts and fine dining culture which the town has become renowned for.
DESCRIPTION
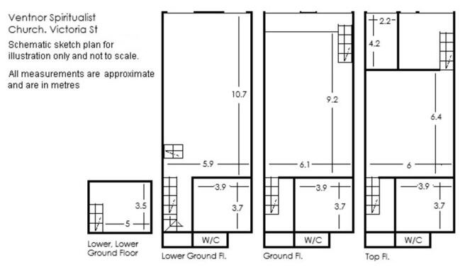
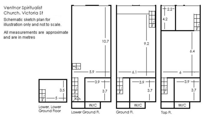
Substantial building benefitting from fully glazed front elevation arranged over 4 floors. The lower, lower ground floor, lower ground floor and ground floor can all be separately accessed from the outside of the building, with the top floor being accessed via a staircase from the first floor.
The gross internal area of the building is approx. 247m² (2658ft²) with a net internal area of the lower ground floor, ground floor and first floor being approx. 64m² (688ft²) per floor with the lower, lower ground floor running to approx. 15m² (161ft²).
The building has been used for many years as a Spiritualist Church but could lend itself to various uses subject to planning, such as redevelopment to residential or various other commercial uses. Please see floor plan overleaf for further details.
TERMS
Offers in the region of £275,000 for the freehold interest of the building
OUTGOINGS
Rateable Value: TBC 2025/2026: 55.5p without small business relief. Interested parties should make their own enquiries of the Isle of Wight Council to confirm any rate liability or rate concession that may be applicable by telephoning Business Rates on
VIEWING
Strictly by appointment with sole agents. Call Lisa Mercer or Charlie Dickson on or email
Brochures
Ventnor Spiritualist Church
NEAREST STATIONS
Distances are straight line measurements from the centre of the postcode- Shanklin Station2.8 miles
- Lake Station3.8 miles
- Sandown Station5.1 miles
Notes
Disclaimer - Property reference 101276042320. The information displayed about this property comprises a property advertisement. Rightmove.co.uk makes no warranty as to the accuracy or completeness of the advertisement or any linked or associated information, and Rightmove has no control over the content. This property advertisement does not constitute property particulars. The information is provided and maintained by Hose Rhodes Dickson, Newport. Please contact the selling agent or developer directly to obtain any information which may be available under the terms of The Energy Performance of Buildings (Certificates and Inspections) (England and Wales) Regulations 2007 or the Home Report if in relation to a residential property in Scotland.
Map data ©OpenStreetMap contributors.





