Office to lease
Offices at Osborne Stable Block
- SIZE AVAILABLE
128 sq ft
12 sq m
- SECTOR
Office to lease
Lease details
- Lease available date:
- Ask agent
Description
LOCATION
Located in the former Osborne Stable Block, adjacent to Osborne House, putting the premises within easy reach of the car ferry which arrives in East Cowes and within easy reach of the floating bridge, transporting foot passengers from Cowes and its high-speed catamaran to Southampton. The office is well suited for access to Newport and Ryde.
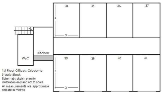
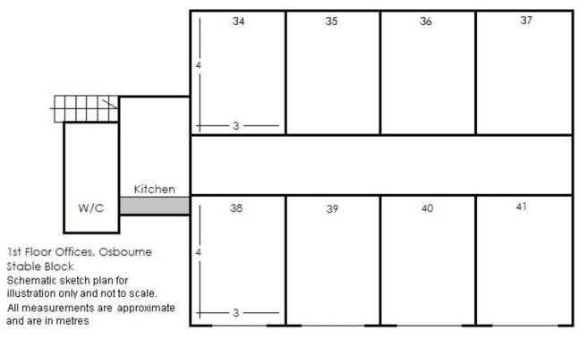
DESCRIPTION
Three small purpose-built office units (in a block of 8), running to approximately 11.9m² (128ft²), being approximately 3m x 4m. Office 38 and 40 benefits from views towards Osborne House and all three have access to communal kitchen and toilet facilities. Please see floor plan for further detail.
TERMS
Offered by way of a new lease at £60 per week, plus VAT (£3,120 per annum plus VAT). The rent includes cleaning of communal parts, heating, lighting, internet connection, and one parking space. If a designated parking space is required, these are available by negotiation.
OUTGOINGS
We are advised that the units are currently eligible for 100% small business rate relief
2025/2026: 55.5p without small business relief. Interested parties should make their own enquiries of the Isle of Wight Council to confirm any rate liability or rate concession that may be applicable by telephoning Business Rates on
VIEWING
Strictly by appointment only. Please contact HRD Commercial on or
Brochures
Offices at Osborne Stable Block
NEAREST STATIONS
Distances are straight line measurements from the centre of the postcode- Ryde Pier Head Station5.1 miles
Notes
Disclaimer - Property reference 101276042309. The information displayed about this property comprises a property advertisement. Rightmove.co.uk makes no warranty as to the accuracy or completeness of the advertisement or any linked or associated information, and Rightmove has no control over the content. This property advertisement does not constitute property particulars. The information is provided and maintained by Hose Rhodes Dickson, Newport. Please contact the selling agent or developer directly to obtain any information which may be available under the terms of The Energy Performance of Buildings (Certificates and Inspections) (England and Wales) Regulations 2007 or the Home Report if in relation to a residential property in Scotland.
Map data ©OpenStreetMap contributors.




