
3 bedroom terraced house for sale
Tarka Way, Crediton, EX17

- PROPERTY TYPE
Terraced
- BEDROOMS
3
- BATHROOMS
2
- SIZE
1,066 sq ft
99 sq m
- TENUREDescribes how you own a property. There are different types of tenure - freehold, leasehold, and commonhold.Read more about tenure in our glossary page.
Freehold
Key features
- 2021 Built Townhouse
- 3 bedrooms
- Master bedroom with ensuite shower room
- Parking for 2 vehicles plus integral garage
- Countryside views
- Open plan kitchen/diner
- Enclosed landscaped gardens
- No chain
Description
Built in just 2021 by Devonshire Homes, this wonderful semi-detached 3 storey town house was the original show home. It offers flexible modern living accommodation on the edge of this thriving market town with views over the nearby countryside. There’s the added bonus of parking on the drive and garage plus there’s an enclosed, landscaped garden and great access to bus, train and shops. It’s been beautifully looked after and has a light, bright and airy feel throughout.
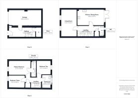
You are welcomed by a wide, tiled hallway with internal access to the garage and a large storage cupboard, ideal for coats and shoes. The first floor has the main living accommodation with a spacious living room with feature long length windows taking advantage of the countryside views. The kitchen/dining room is at the rear and opens onto the garden. Integrated appliances are included with a double oven, ceramic hob and integrated fridge/freezer. The dining area has plenty of room for a family table and chairs too. On this level there is also a good sized WC with utility cupboard for washing machine/dryer.
On the top floor there is a double bedroom to the rear overlooking the garden, the master bedroom to the front with fitted wardrobes and ensuite shower room and the third bedroom overlooks the front with views of the town onto fields beyond. The bathroom has a bath with shower over. The property benefits from gas central heating and uPVC double glazing throughout.
Outside to the front is an easy to maintain area with a store for bins and recycling with the drive providing off-road parking. The garage has an up and over door and an internal access to the entrance hall. Gated steps to the side give access to the rear garden which has a paved patio, lawn and planted beds with well-stocked borders. Steps lead through the lawn to a “hidden garden” at the top with further seating and a lovely southerly outlook.
Buyers' Compliance Fee Notice
Please note that a compliance check fee of £25 (inc. VAT) per person is payable once your offer is accepted. This non-refundable fee covers essential ID verification and anti-money laundering checks, as required by law.
Please see the floorplan for room sizes.
Current Council Tax: Band C – Mid Devon
Approx Age: 2021
Construction Notes: Timber framed
Utilities: Mains electric, water, gas, telephone & broadband
Drainage: Mains
Heating: Mains gas
Listed: No
Conservation Area: No
Tenure: Freehold
CREDITON is a vibrant market town with a bustling high street full of independent shops, eateries, and pubs. In recent years a diverse arts scene has grown to include all manner of mediums, with the performing arts making use of the town’s market square where, in the summer months, a range of activities take place. The market square is also home to the town’s twice-monthly farmer’s market. The town has an equally significant past. It was originally the first Bishopric in Devon and the imposing Parish Church of The Holy Cross now stands where once stood Devon’s first Saxon cathedral (909-1050AD). It is also the birthplace of Saint Boniface, one of the founding fathers of the Christian church in Europe. Easily commutable to Exeter and with two primary schools, a secondary school with sixth form as well as a wide range of necessary amenities, it’s clear why the town is a firm favourite with locals and relocators alike.
DIRECTIONS : For sat-nav use EX17 3FS and the What3Words address is ///cycle.relishes.facing but if you want the traditional directions, please read on.
From the A377 at Wellparks roundabout (Tesco), proceed up the hill and take the first left into Tarka Way and the property will be found a few metres in on the right.
EPC Rating: A
Garden
13m x 5m
Enclosed lawned rear garden with side access gate
Brochures
Property Brochure- COUNCIL TAXA payment made to your local authority in order to pay for local services like schools, libraries, and refuse collection. The amount you pay depends on the value of the property.Read more about council Tax in our glossary page.
- Band: C
- PARKINGDetails of how and where vehicles can be parked, and any associated costs.Read more about parking in our glossary page.
- Yes
- GARDENA property has access to an outdoor space, which could be private or shared.
- Private garden
- ACCESSIBILITYHow a property has been adapted to meet the needs of vulnerable or disabled individuals.Read more about accessibility in our glossary page.
- Ask agent
Energy performance certificate - ask agent
Tarka Way, Crediton, EX17
Add an important place to see how long it'd take to get there from our property listings.
__mins driving to your place
Get an instant, personalised result:
- Show sellers you’re serious
- Secure viewings faster with agents
- No impact on your credit score
Your mortgage
Notes
Staying secure when looking for property
Ensure you're up to date with our latest advice on how to avoid fraud or scams when looking for property online.
Visit our security centre to find out moreDisclaimer - Property reference 68e71898-ce6c-4870-8183-ddf20856492c. The information displayed about this property comprises a property advertisement. Rightmove.co.uk makes no warranty as to the accuracy or completeness of the advertisement or any linked or associated information, and Rightmove has no control over the content. This property advertisement does not constitute property particulars. The information is provided and maintained by Helmores, Crediton. Please contact the selling agent or developer directly to obtain any information which may be available under the terms of The Energy Performance of Buildings (Certificates and Inspections) (England and Wales) Regulations 2007 or the Home Report if in relation to a residential property in Scotland.
*This is the average speed from the provider with the fastest broadband package available at this postcode. The average speed displayed is based on the download speeds of at least 50% of customers at peak time (8pm to 10pm). Fibre/cable services at the postcode are subject to availability and may differ between properties within a postcode. Speeds can be affected by a range of technical and environmental factors. The speed at the property may be lower than that listed above. You can check the estimated speed and confirm availability to a property prior to purchasing on the broadband provider's website. Providers may increase charges. The information is provided and maintained by Decision Technologies Limited. **This is indicative only and based on a 2-person household with multiple devices and simultaneous usage. Broadband performance is affected by multiple factors including number of occupants and devices, simultaneous usage, router range etc. For more information speak to your broadband provider.
Map data ©OpenStreetMap contributors.







