7 bedroom detached house for sale
La Hougue, Vale, Guernsey

- PROPERTY TYPE
Detached
- BEDROOMS
7
- BATHROOMS
5
- SIZE
Ask agent
- TENUREDescribes how you own a property. There are different types of tenure - freehold, leasehold, and commonhold.Read more about tenure in our glossary page.
Ask agent
Key features
- Rare opportunity to acquire a large traditional Guernsey farmhouse
- Substantial and highly versatile accommodation
- Walking distance to L'Ancresse and Pembroke beaches
- Highly private gardens
- Five/six double bedrooms all ensuite
- Generous open plan living/dining room
- Plenty of parking and single garage
- Detached two bedroom local market cottage
Description
The accommodation on offer is highly versatile and comprises several reception rooms including a super open plan living/dining room together with up to six double bedrooms, all ensuite, in the main house. A detached two bedroom local market cottage with its own garden forms part of the property.
The gardens are highly private and include a large heated swimming pool, sheltered seating area, pond, greenhouse and lawned area with a selection of mature trees and shrubs.
Viewing is highly recommended to fully appreciate all this desirable family home has to offer.
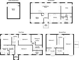
Rear porch
1.94m x 1.84m
Rear Hallway
3.6m x 1.49m
Cloak cupboard.
Sitting Room
5.3m x 3.34m
Kitchen/Breakfast Room
4.77m x 3.29m
Fitted with a range of wooden cream wall and base units. A pink and black granite work surface over incorporating a Belfast sink.
Utility Room
3.48m x 2.23m
Door to rear. Cream wall and base units with wooden work surface oven. Oversized sink and drainer.
Wet Room
3.14m x 0.88m
Fitted with a two piece white suite. Large walk in shower.
Dining/Living Room
11.36m x 4.56m
Stairs to first floor. Door to front garden. Open fireplace set into marble hearth and surround.
Study
4.74m x 3.06m
FIRST FLOOR
Bedroom Suite 3
4.62m x 4.52m
Dressing Room
3.39m x 2.44m
Built in wardrobes, chest of drawers and dressing table.
Ensuite Bathroom
3.38m x 2.13m
Fully tiled. Fitted with a four piece suite consisting of bath with hand held shower, low level flush WC, wash hand basin set into vanity unit and large corner shower.
Bedroom Suite 5
Incorporating...
Bedroom
4.57m x 4.6m
Inner Hall
1.3m x 1.27m
Potential Bedroom 6
4.79m x 3.26m
Ensuite Bathroom
3.54m x 1.64m
Featuring a bath, WC, wash hand basin set into pedestal and corner shower.
Bedroom Suite 4
Bedroom
6.24m x 3.37m
Ensuite Shower Room
3.95m x 1.26m
Three piece suite consisting of WC, wash hand basin set into vanity unit and shower.
Walk-In Wardrobe
1.86m x 1.97m
Landing
4.6m x 2.23m
SECOND FLOOR
Landing
4.92m x 2.48m
Bedroom Suite 2
Bedroom
4.85m x 4.37m
Ensuite Bathroom
3.07m x 3.41m
Featuring a large walk in shower, bath with hand held shower, low level WC and wash hand basin. Underfloor heating.
Master Bedroom Suite
Master Bedroom
8m x 4.44m
Double doors give access to balcony with view towards Grande Harve bay and distant sea views beyond.
Ensuite Bathroom
3.29m x 2.83m
Featuring bath with handheld shower, low level flush WC, his and hers wash hand basins and large corner shower. Underfloor heating.
LOWER GROUND FLOOR
Games room
4.28m x 4.28m
OUTSIDE
Front of property
Accessed through the sitting room and study is a full enclosed lawn garden bound with mature trees and shrub. Stone path leads from front door to road.
Appliances
Integrated Rangemaster oven with five ring gas hob and hot plate. Integrated Smeg dishwasher. Integrated Neff fridge. Fisher and Pakel American style fridge/freezer. Indesit tumble dryer. Zanussi washing machine.
LOCAL MARKET COTTAGE
Lounge
5.62m x 4.86m
Kitchen
3.07m x 2.76m
Fitted with a range of cream wall and base units incorporating a Belfast sink and laminate wood effect surface over.
Bathroom
2.77m x 3.07m
Fitted with a sunken bath, low level flush WC, Wash hand basin set into vanity unit and large walk in shower. Two large built in storage cupboard.
Landing
1.78m x 1m
Access to airing cupboard.
Bedroom 2
4.37m x 3.11m
Bedroom 1
5.31m x 3.82m
Appliances
Sharp microwave. Freestanding Statesman freezer. Integrated Neff dishwasher. Integrated fridge.
OUTSIDE
Rear
Raised sandstone terrace with steps leading to an enclosed garden with several mature shrubs bounded by a mixture of granite wall and wooden fencing. A block built pump room houses oil boiler and pool pump.
Garage/Store Room
5.94m x 2.92m
Brochures
Web Details- COUNCIL TAXA payment made to your local authority in order to pay for local services like schools, libraries, and refuse collection. The amount you pay depends on the value of the property.Read more about council Tax in our glossary page.
- Band: TBC
- PARKINGDetails of how and where vehicles can be parked, and any associated costs.Read more about parking in our glossary page.
- Yes
- GARDENA property has access to an outdoor space, which could be private or shared.
- Yes
- ACCESSIBILITYHow a property has been adapted to meet the needs of vulnerable or disabled individuals.Read more about accessibility in our glossary page.
- Ask agent
Energy performance certificate - ask agent
La Hougue, Vale, Guernsey
Add an important place to see how long it'd take to get there from our property listings.
__mins driving to your place
Get an instant, personalised result:
- Show sellers you’re serious
- Secure viewings faster with agents
- No impact on your credit score
Your mortgage
Notes
Staying secure when looking for property
Ensure you're up to date with our latest advice on how to avoid fraud or scams when looking for property online.
Visit our security centre to find out moreDisclaimer - Property reference OMA160355. The information displayed about this property comprises a property advertisement. Rightmove.co.uk makes no warranty as to the accuracy or completeness of the advertisement or any linked or associated information, and Rightmove has no control over the content. This property advertisement does not constitute property particulars. The information is provided and maintained by Swoffers Limited, Guernsey. Please contact the selling agent or developer directly to obtain any information which may be available under the terms of The Energy Performance of Buildings (Certificates and Inspections) (England and Wales) Regulations 2007 or the Home Report if in relation to a residential property in Scotland.
*This is the average speed from the provider with the fastest broadband package available at this postcode. The average speed displayed is based on the download speeds of at least 50% of customers at peak time (8pm to 10pm). Fibre/cable services at the postcode are subject to availability and may differ between properties within a postcode. Speeds can be affected by a range of technical and environmental factors. The speed at the property may be lower than that listed above. You can check the estimated speed and confirm availability to a property prior to purchasing on the broadband provider's website. Providers may increase charges. The information is provided and maintained by Decision Technologies Limited. **This is indicative only and based on a 2-person household with multiple devices and simultaneous usage. Broadband performance is affected by multiple factors including number of occupants and devices, simultaneous usage, router range etc. For more information speak to your broadband provider.
Map data ©OpenStreetMap contributors.





