
2 bedroom apartment for sale
Camden Hall, High Street, Pembury, Tunbridge Wells, TN2

- PROPERTY TYPE
Apartment
- BEDROOMS
2
- BATHROOMS
1
- SIZE
758 sq ft
70 sq m
Key features
- Apartments ready to move into
- High level finish and specification
- High ceilings
- Parking included
- Communal garden
- Electric car charging points available
- Fibre broadband
- 10 Year Advantage Warranty
- EPC Rating = D
Description
Description
Located in Pembury’s Conservation Area and nestling in the High Weald National Landscape, Camden Hall enjoys a central location within walking distance of the village’s amenities. This heritage building will yield 11 two-bedroom apartments, with parking, electric car charging points and a luxury specification.
A landmark residence
Camden Hall is one of Pembury’s most illustrious properties, distinguished by its handsome period aesthetic and original details, such as its stunning stained glass dome. The residence dates back to 1855 but was possibly in existence as early as 1838. Formerly called Pembury Cottage, The Larches and Heatherton, Camden Hall has been the family home of A. C. Pigou a noted British economist and Lady Harriet Camilla Adair.
Commuter links are at hand via the A21 which provides quick access to the M25 and there are train services to London via Tonbridge and Tunbridge Wells.
KITCHENS
Traditional style shaker kitchens, featuring white quartz worktops.
Kitchens walls have been finished in strong white, integrated appliances by Bosch (or equivalent) to include induction hob, extractor, fridge freezer, dishwasher, single oven and washer dryer.
A number of units (excluding 4, 8 and 11) also with the addition of a wine cooler.
High quality stainless steel sink with contemporary chrome single lever; swan neck mixer tap by Franke.
BATHROOMS
Contemporary white bathrooms featuring sanitary ware by Villeroy & Boch, and Hansgrohe chrome taps.
Villeroy & Boch thermostatically controlled chrome shower valve with overhead shower.
19 inch LCD waterproof televisions to main bathrooms with mirror design when turned off.
Under floor heating to bathrooms and en-suites.
Contemporary marble effect tiles.
Heated chrome designer towel rails to main bathroom and en-suite.
Fitted mirrors.
FINISH
Smooth ceilings painted white.
Walls finished in white matt emulsion and woodwork to be finished satin white.
High quality hand painted panelled doors, fire compliant; completed with polished chrome door furniture.
Traditional skirting and architrave.
Engineered smoked oak in light grey flooring to hallway, lounge and kitchen.
ELECTRICAL / PLUMBING
Electric central heating system.
Shaver points in bathrooms & en-suites.
Recessed spotlights to the hallway, bathrooms, lounge and kitchen.
A generous supply of electrical sockets with a USB charging option in various locations.
Fibre optic telephone point in hallway.
TV and satellite (by subscription) socket in living room and socket to main bedrooms.
Mains smoke alarm with battery back-up.
BEDROOMS
To be carpeted with high quality carpets, from the Sensations range in arctic grey.
Walls to be painted in strong white.
SECURITY
Video door entry system.
WARRANTY
Each property comes with its own 10 year Building Guarantee.
Location
Located near Royal Tunbridge Wells in Kent, Pembury is an attractive village in the heart of South-East England. Centred round the village green, the parish of Pembury maintains a rural character and includes large areas of woodland, agricultural land and many outlying farms.
Clubs, societies, guides and organisations flourish for every age and interest and together support an active community life. Shops lie within the centre of the village, along with thriving pubs and the usual services, including a bank and chemist, takeaways, newsagent, post office and hairdressers.
Historic buildings from the 1200s through to the twentieth century demonstrate Pembury’s long-term presence in the West Kent area.
There are plenty of places to see and visit in the surrounding area, whether your passion is eating or meeting, hiking or cycling, Pembury is a region where hidden gems are waiting to be explored and visited.
Places of interest include Royal Tunbridge Wells (2.6 miles),
The Pantiles (3.8 miles)
Scotney Castle (6.8 miles)
Bewl Water (7.4 miles)
Groombridge village (7.8 miles)
Source Google Maps 2025
Tunbridge Wells to:
London Bridge 44 minutes
Charring Cross 54 minutes
Waterloo 55 minutes
Source Trainline 2025
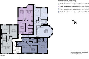
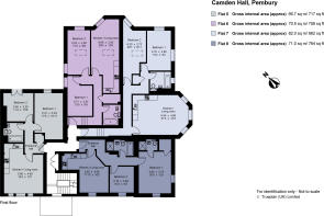
Square Footage: 758 sq ft
Leasehold with approximately 250 years remaining.
Additional Info
Images depict show home and plot 6 and are for information only
Consumer Code: Advantage - This development is covered by the Consumer Code Advantage - Consumer Code for Developers of Homes for Sale
Reservation Fee £1,500
Images depict show home and are for information only
Ground Rent Peppercorn
Images taken Feb 2024
Water: Mains
Electric: Mains
Drainage: Mains
The Developer
Part of the Gillcrest Group, Gillcrest Homes is a regional property developer operating throughout Southern England, specialising in small, exclusive developments.
Gillcrest Homes operate within a niche market, specialising in building high quality sustainable homes to meet and exceed the demand of today’s modern lifestyle.
Brochures
Web Details- COUNCIL TAXA payment made to your local authority in order to pay for local services like schools, libraries, and refuse collection. The amount you pay depends on the value of the property.Read more about council Tax in our glossary page.
- Band: C
- PARKINGDetails of how and where vehicles can be parked, and any associated costs.Read more about parking in our glossary page.
- Yes
- GARDENA property has access to an outdoor space, which could be private or shared.
- Ask agent
- ACCESSIBILITYHow a property has been adapted to meet the needs of vulnerable or disabled individuals.Read more about accessibility in our glossary page.
- Ask agent
Camden Hall, High Street, Pembury, Tunbridge Wells, TN2
Add an important place to see how long it'd take to get there from our property listings.
__mins driving to your place
Get an instant, personalised result:
- Show sellers you’re serious
- Secure viewings faster with agents
- No impact on your credit score
Your mortgage
Notes
Staying secure when looking for property
Ensure you're up to date with our latest advice on how to avoid fraud or scams when looking for property online.
Visit our security centre to find out moreDisclaimer - Property reference SED250140. The information displayed about this property comprises a property advertisement. Rightmove.co.uk makes no warranty as to the accuracy or completeness of the advertisement or any linked or associated information, and Rightmove has no control over the content. This property advertisement does not constitute property particulars. The information is provided and maintained by Savills New Homes, covering Southeast. Please contact the selling agent or developer directly to obtain any information which may be available under the terms of The Energy Performance of Buildings (Certificates and Inspections) (England and Wales) Regulations 2007 or the Home Report if in relation to a residential property in Scotland.
*This is the average speed from the provider with the fastest broadband package available at this postcode. The average speed displayed is based on the download speeds of at least 50% of customers at peak time (8pm to 10pm). Fibre/cable services at the postcode are subject to availability and may differ between properties within a postcode. Speeds can be affected by a range of technical and environmental factors. The speed at the property may be lower than that listed above. You can check the estimated speed and confirm availability to a property prior to purchasing on the broadband provider's website. Providers may increase charges. The information is provided and maintained by Decision Technologies Limited. **This is indicative only and based on a 2-person household with multiple devices and simultaneous usage. Broadband performance is affected by multiple factors including number of occupants and devices, simultaneous usage, router range etc. For more information speak to your broadband provider.
Map data ©OpenStreetMap contributors.






