High Street, Wingham, Canterbury, Kent, CT3

Letting details
- Let available date:
- 12/12/2025
- Deposit:
- £1,442A deposit provides security for a landlord against damage, or unpaid rent by a tenant.Read more about deposit in our glossary page.
- Min. Tenancy:
- 12 months How long the landlord offers to let the property for.Read more about tenancy length in our glossary page.
- Let type:
- Long term
- Furnish type:
- Unfurnished
- Council Tax:
- Ask agent
- PROPERTY TYPE
Terraced
- BEDROOMS
2
- BATHROOMS
1
- SIZE
743 sq ft
69 sq m
Key features
- Desirable Wingham Village Location
- Two Receptions
- Log Burner
- Grade ll Listed
- Log Cabin With Power
- Large Sized Rear Garden
Description
Miles & Barr are delighted to bring to the rental market, this two bedroom, Grade II listed cottage, offering a perfect blend of character and modern comfort, all within easy reach of local amenities, set in the charming and sought after village of Wingham.
Offering neutral decor throughout, the ground floor comprises living room, leading through to a modern fitted kitchen with a dining area featuring a log burner, ideal for everyday living and entertaining. The modern bathroom is also located on the ground floor of the property. There is also a useful cellar with natural light providing plenty of additional storage space or space for an office/study depending on your needs.
On the first floor, there are two well-appointed bedrooms. Outside, you’ll find a generously sized rear garden complete with a powered log cabin to the rear, perfect for hobbies, work, or relaxing in a private setting. Pets negotiable.
Council tax band C
EPC rating D
To check broadband and mobile phone coverage please visit Ofcom here: ofcom.org.uk/phones-telecoms-and-internet/advice-for-consumers/advice/ofcom-checker
Location
Wingham lies between the vibrant city of Canterbury and historic the cinque port Sandwich. The property is close to many amenities including the local newsagent, general store, bakery, two farm shops, doctors surgery and dentist plus two pubs - The Anchor and The Dog. Wingham primary is well regarded in the local area. There are lots of dog walking opportunities via footpath networks through orchards. Wingham wildlife park is also located close by. A short drive to Adisham given connection to mainline rails services.
The property is situated within 6 miles of the city of Canterbury, being within easy access of the High Street and all its amenities. These include an excellent modern shopping centre, the University of Kent, Canterbury Christchurch College and other colleges, together with an excellent choice of schools in both the public and private sectors. In addition to the High Street is the Kings Mile, which is a lovely mall of boutique style shops, cafes, eateries and public houses.
Sporting and recreational opportunities nearby include: sailing at Whitstable Yacht Club and Herne Bay, county cricket at Canterbury and day trips to France via Eurotunnel, all within easy access. In addition, the recently refurbished Marlowe Theatre, the spectacular Beaney House of Art & Knowledge and the Gulbenkian (theatre, cinema and café bar) at the University of Kent, all provide a wealth of excellent entertainment in Canterbury. A bus stop is just yards away from the front door of the property servicing both Canterbury and Sandwich/Deal.
Adisham train station is just a short drive away offering access to Canterbury's has two mainline railway stations, with Canterbury West offering the high speed service to London (St Pancras 56 mins). The property is also within easy access of the A2 dual carriageway, which in turn links to the Channel Port of Dover and Brenley Corner at Faversham, adjoining the M2 / A299 (Thanet Way) linking London and the coastal towns respectively. Ashford International (15.4 miles, London St Pancras 38 mins) which also has services to the continent via Eurostar (Paris 1 hr 52 mins) or via Eurotunnel at Cheriton (19.3 miles, Calais 35 mins).
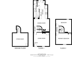
Entrance Hall
Lounge
13' 4" x 11' 4"
Dining Room
10' 1" x 13' 3"
Bathroom
13' 10" x 14' 2"
Kitchen
6' 11" x 14' 9"
Lower Ground Floor
Basement
12' 11" x 11' 0"
First Floor
Bedroom
11' 6" x 13' 4"
Bedroom
9' 8" x 13' 6"
- COUNCIL TAXA payment made to your local authority in order to pay for local services like schools, libraries, and refuse collection. The amount you pay depends on the value of the property.Read more about council Tax in our glossary page.
- Band: C
- PARKINGDetails of how and where vehicles can be parked, and any associated costs.Read more about parking in our glossary page.
- Ask agent
- GARDENA property has access to an outdoor space, which could be private or shared.
- Yes
- ACCESSIBILITYHow a property has been adapted to meet the needs of vulnerable or disabled individuals.Read more about accessibility in our glossary page.
- Ask agent
High Street, Wingham, Canterbury, Kent, CT3
Add an important place to see how long it'd take to get there from our property listings.
__mins driving to your place
Notes
Staying secure when looking for property
Ensure you're up to date with our latest advice on how to avoid fraud or scams when looking for property online.
Visit our security centre to find out moreDisclaimer - Property reference MCE250243_L. The information displayed about this property comprises a property advertisement. Rightmove.co.uk makes no warranty as to the accuracy or completeness of the advertisement or any linked or associated information, and Rightmove has no control over the content. This property advertisement does not constitute property particulars. The information is provided and maintained by Miles & Barr, Canterbury. Please contact the selling agent or developer directly to obtain any information which may be available under the terms of The Energy Performance of Buildings (Certificates and Inspections) (England and Wales) Regulations 2007 or the Home Report if in relation to a residential property in Scotland.
*This is the average speed from the provider with the fastest broadband package available at this postcode. The average speed displayed is based on the download speeds of at least 50% of customers at peak time (8pm to 10pm). Fibre/cable services at the postcode are subject to availability and may differ between properties within a postcode. Speeds can be affected by a range of technical and environmental factors. The speed at the property may be lower than that listed above. You can check the estimated speed and confirm availability to a property prior to purchasing on the broadband provider's website. Providers may increase charges. The information is provided and maintained by Decision Technologies Limited. **This is indicative only and based on a 2-person household with multiple devices and simultaneous usage. Broadband performance is affected by multiple factors including number of occupants and devices, simultaneous usage, router range etc. For more information speak to your broadband provider.
Map data ©OpenStreetMap contributors.




