
Liverpool Road, Burnley, Lancashire, BB12
- PROPERTY TYPE
Land
- SIZE
62,726 sq ft
5,827 sq m
Description
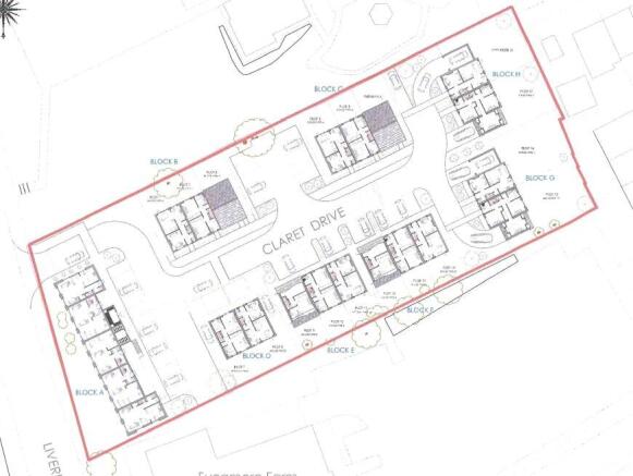
Entwistle Green are delighted to the present this rare development opportunity to the market. Based in the highly convenient and sought after area of Lowerhouse & Rosegrove, Burnley, this site is within very easy reach to the M65 motorway links, supermarkets and schools.
Outline plans have been submitted for the development of 28 residential units, comprising of 18 houses (6x semi-detached & 12x terraced) and 10x duplex apartments.
Planning status is pending approval. Full plans can be found via Burnley Council's public access portal via reference OUT/2025/0307.
For more information or to make arrangements to view, please contact the team at Entwistle Green Burnley today.
Brochures
ParticularsLiverpool Road, Burnley, Lancashire, BB12
NEAREST STATIONS
Distances are straight line measurements from the centre of the postcode- Rose Grove Station0.2 miles
- Burnley Barracks Station1.2 miles
- Hapton Station1.4 miles
Notes
Disclaimer - Property reference BUY250146. The information displayed about this property comprises a property advertisement. Rightmove.co.uk makes no warranty as to the accuracy or completeness of the advertisement or any linked or associated information, and Rightmove has no control over the content. This property advertisement does not constitute property particulars. The information is provided and maintained by Entwistle Green, Burnley. Please contact the selling agent or developer directly to obtain any information which may be available under the terms of The Energy Performance of Buildings (Certificates and Inspections) (England and Wales) Regulations 2007 or the Home Report if in relation to a residential property in Scotland.
Map data ©OpenStreetMap contributors.








