0/1, 19 Darnley Gardens, Pollokshields, G41 4NQ

- PROPERTY TYPE
Flat
- BEDROOMS
2
- BATHROOMS
1
- SIZE
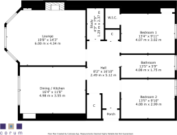
1,044 sq ft
97 sq m
- TENUREDescribes how you own a property. There are different types of tenure - freehold, leasehold, and commonhold.Read more about tenure in our glossary page.
Freehold
Key features
- Tremendous ground floor tenement
- Fitted dining sized kitchen
- Impressive four piece bathroom
- Excellent storage provision
- Timber cased double glazed windows
- Thriving amenities close at hand
- Home report available to download from 'Web Details' below
Description
Occupying an elevated ground floor position in an attractive stone terrace, this magnificent home is meticulously presented to market. Considerable time and effort has been spent upgrading the property to an exacting standard combining a sympathetic blend of traditional features and modern fittings. Early internal inspection is essential.
The accommodation in brief; vestibule via storm doors, broad reception hallway, storage/utility cupboard and a cleverly fitted internal home office with wall mounted desk. To the front of the property is a bay windowed lounge with decorative fireplace and a fully fitted dining kitchen including Minerva worktops, Oak hardwood shelving and integrated items. To the rear of the property are two generous double bedrooms, the principal room with its own walk-in wardrobe. The four piece bathroom suite is very sleek including a freestanding bath, mains powered shower enclosure, metro wall tiles and hexagonal mosaic floor tiles.
The property has Nest controlled gas central heating (boiler serviced Feb 2025), timber framed double glazed windows with fitted wooden shutters, bespoke décor and engineered Oak flooring except in the bathroom and hall cupboard. Our client has sole use of the garden in front of the property and the cellar space underneath the property.
A number of period style features are in situ such as detailed ceiling plasterwork, ceiling roses, moulded woodwork and Victorian door furniture/handles. Our client has landscaped the front garden with quartz gravel stones (fully lined) and border privet hedges whilst a shared garden to the rear of the terrace provides covered bin storage.
EER Band - C
Local Area
19 Darnley Gardens is on the doorstep of the coffee houses, restaurants, gastropubs and bakeries of Pollokshields and neighboring Strathbungo. More extensive facilities are available at the Crossmyloof Morrisons store or the Sainsburys Local store on Darnley Road. Recreational pursuits within the area are available at Queens Park, Maxwell Park or Pollok Country Park. Pollokshields West train station is approximately 250 yards walk, Shields Road underground station is one mile away and the M77, M74 or M8 connect the Southside of Glasgow to Scotland's motorway network.
Directions
Sat Nav: 19 Darnley Gardens, Pollokshields, G41 4NQ - Flat 0/1
Brochures
Brochure 1Web Details- COUNCIL TAXA payment made to your local authority in order to pay for local services like schools, libraries, and refuse collection. The amount you pay depends on the value of the property.Read more about council Tax in our glossary page.
- Band: E
- PARKINGDetails of how and where vehicles can be parked, and any associated costs.Read more about parking in our glossary page.
- On street
- GARDENA property has access to an outdoor space, which could be private or shared.
- Communal garden
- ACCESSIBILITYHow a property has been adapted to meet the needs of vulnerable or disabled individuals.Read more about accessibility in our glossary page.
- Ask agent
Energy performance certificate - ask agent
0/1, 19 Darnley Gardens, Pollokshields, G41 4NQ
Add an important place to see how long it'd take to get there from our property listings.
__mins driving to your place
Get an instant, personalised result:
- Show sellers you’re serious
- Secure viewings faster with agents
- No impact on your credit score
Your mortgage
Notes
Staying secure when looking for property
Ensure you're up to date with our latest advice on how to avoid fraud or scams when looking for property online.
Visit our security centre to find out moreDisclaimer - Property reference SS4931. The information displayed about this property comprises a property advertisement. Rightmove.co.uk makes no warranty as to the accuracy or completeness of the advertisement or any linked or associated information, and Rightmove has no control over the content. This property advertisement does not constitute property particulars. The information is provided and maintained by Corum, Shawlands. Please contact the selling agent or developer directly to obtain any information which may be available under the terms of The Energy Performance of Buildings (Certificates and Inspections) (England and Wales) Regulations 2007 or the Home Report if in relation to a residential property in Scotland.
*This is the average speed from the provider with the fastest broadband package available at this postcode. The average speed displayed is based on the download speeds of at least 50% of customers at peak time (8pm to 10pm). Fibre/cable services at the postcode are subject to availability and may differ between properties within a postcode. Speeds can be affected by a range of technical and environmental factors. The speed at the property may be lower than that listed above. You can check the estimated speed and confirm availability to a property prior to purchasing on the broadband provider's website. Providers may increase charges. The information is provided and maintained by Decision Technologies Limited. **This is indicative only and based on a 2-person household with multiple devices and simultaneous usage. Broadband performance is affected by multiple factors including number of occupants and devices, simultaneous usage, router range etc. For more information speak to your broadband provider.
Map data ©OpenStreetMap contributors.







