
Royal Winchester House, Bracknell, RG12

Letting details
- Let available date:
- 20/01/2026
- Deposit:
- £1,442A deposit provides security for a landlord against damage, or unpaid rent by a tenant.Read more about deposit in our glossary page.
- Min. Tenancy:
- Ask agent How long the landlord offers to let the property for.Read more about tenancy length in our glossary page.
- Let type:
- Long term
- Furnish type:
- Furnished
- Council Tax:
- Ask agent
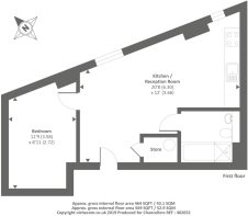
- PROPERTY TYPE
Apartment
- BEDROOMS
1
- BATHROOMS
1
- SIZE
Ask agent
Key features
- Living Room- Kitchen
- Bedroom
- Bathroom
- Parking Negotiable
- Residents Gym Included
Description
A contemporary one bedroom apartment in Bracknell's landmark development offering the best of town centre living, adjacent to The Lexicon and Waitrose!
Property Details
The landlord of this property will consider applications that include use of our no deposit option. Please note the terms of this scheme in our guide to tenants which is displayed on our website.
Chancellors are delighted to be acting as the agent for Royal Winchester House. The landmark building forms part of the regeneration of Bracknell town centre and offers the very best of modern living with well thought out designs and high specification finishes.
The residents of Royal Winchester House are able to enjoy a hotel style lobby, access to a concierge on site, a health club/gymnasium for sole use of the residents, secure bicycle parking, lifts to all floors, video entry phone, under floor heating and parking is also available. The development also has some roof top apartments that come with a generous roof terrace and breath taking and far reaching views of the area. The apartments have been intuitively designed and the building has been pre-installed for Sky HD and Hotbird satellite systems and built using non-combustible walling and cladding. Each apartment has soft edge light switches and sockets and walnut timber flooring. The kitchens have handless cabinet doors, quartz worktops, an under-mounted stainless steel sink, Bosch integrated hob, oven, washer-dryer, fridge-freezer and extractor hood. The vast majority of apartments have a Beko dishwasher. Each bathroom has a heated chrome towel rail, porcelain tiles to walls and floors, thermostatic shower mixer with lever action, large polished edge mirror over a vanity shelf, a shaver socket and Vitra white sanitary ware.
The unique design and architecture forms a striking building that offers stunning viewings and acts as a gateway to Waitrose and The Lexicon Centre which has a vast array of shops and restaurants and a 12 screen cinema.
The wider environment means that there is plenty of nature within easy reach too. There are more than 150 parks and countryside sites throughout Bracknell Forest, ranging from small copses and meadows to larger nature reserves and parks. Some sites, such as Lily Hill Park and South Hill Park near Bracknell town centre, hold Green Flag Awards, which are only given to spaces boasting the highest possible environmental standards, are beautifully maintained and have excellent visitor facilities. Bracknell’s parks and countryside play host to many wonderful outdoor events and activities throughout the year. Along with ranger-led walks, bug hunts, photography classes, wildlife surveys and dog shows there’s plenty for all the family to do with BMX and skate parks, play areas, orienteering courses, and sports pitches and courts all within easy reach.
Video Viewings:
If proceeding without a physical viewing please note that you must make all necessary additional investigations to satisfy yourself that all requirements you have of the property will be met. Video content and other marketing materials shown are believed to fairly represent the property at the time they were created.
Brochures
More details from Chancellors- COUNCIL TAXA payment made to your local authority in order to pay for local services like schools, libraries, and refuse collection. The amount you pay depends on the value of the property.Read more about council Tax in our glossary page.
- Band: C
- PARKINGDetails of how and where vehicles can be parked, and any associated costs.Read more about parking in our glossary page.
- Yes
- GARDENA property has access to an outdoor space, which could be private or shared.
- Ask agent
- ACCESSIBILITYHow a property has been adapted to meet the needs of vulnerable or disabled individuals.Read more about accessibility in our glossary page.
- Ask agent
Royal Winchester House, Bracknell, RG12
Add an important place to see how long it'd take to get there from our property listings.
__mins driving to your place
Notes
Staying secure when looking for property
Ensure you're up to date with our latest advice on how to avoid fraud or scams when looking for property online.
Visit our security centre to find out moreDisclaimer - Property reference 05020029. The information displayed about this property comprises a property advertisement. Rightmove.co.uk makes no warranty as to the accuracy or completeness of the advertisement or any linked or associated information, and Rightmove has no control over the content. This property advertisement does not constitute property particulars. The information is provided and maintained by Chancellors, Royal Winchester House - Bracknell. Please contact the selling agent or developer directly to obtain any information which may be available under the terms of The Energy Performance of Buildings (Certificates and Inspections) (England and Wales) Regulations 2007 or the Home Report if in relation to a residential property in Scotland.
*This is the average speed from the provider with the fastest broadband package available at this postcode. The average speed displayed is based on the download speeds of at least 50% of customers at peak time (8pm to 10pm). Fibre/cable services at the postcode are subject to availability and may differ between properties within a postcode. Speeds can be affected by a range of technical and environmental factors. The speed at the property may be lower than that listed above. You can check the estimated speed and confirm availability to a property prior to purchasing on the broadband provider's website. Providers may increase charges. The information is provided and maintained by Decision Technologies Limited. **This is indicative only and based on a 2-person household with multiple devices and simultaneous usage. Broadband performance is affected by multiple factors including number of occupants and devices, simultaneous usage, router range etc. For more information speak to your broadband provider.
Map data ©OpenStreetMap contributors.





