
Anne Bartholomew Road, Thetford, IP24

Letting details
- Let available date:
- Now
- Deposit:
- £1,350A deposit provides security for a landlord against damage, or unpaid rent by a tenant.Read more about deposit in our glossary page.
- Min. Tenancy:
- 12 months How long the landlord offers to let the property for.Read more about tenancy length in our glossary page.
- Let type:
- Long term
- Furnish type:
- Unfurnished
- Council Tax:
- Ask agent
- PROPERTY TYPE
Terraced
- BEDROOMS
3
- BATHROOMS
1
- SIZE
Ask agent
Key features
- Available Now
- Garage & Driveway
- Gas Central Heating
- Fully Enclosed Rear Garden
- EPC Rating C
- Three Bedrooms
Description
Discover the appeal of the three well-appointed bedrooms, offering versatility for a growing family or home office space. The property also features an impressive EPC rating of C, ensuring energy efficiency for the environmentally conscious. With its desirable location and modern amenities, this house is ready to welcome its new occupants
Don't miss the opportunity to make this property your home!!. Schedule a viewing today to experience the charm and comfort this home has to offer.
EPC Rating: C
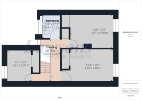
CLOAK ROOM
1.3m x 0.93m
W.C, hand wash basin, vinyl flooring
KITCHEN
3.88m x 2.24m
With a range of matching wall and base units with work surface over, stainless steel sink and drainer unit with mixer tap over, electric double oven, gas hob with extractor hood over, radiator, vinyl flooring, window and door to rear
LOUNGE
6.56m x 3.61m
Patio doors to rear garden, carpet flooring, radiator
BEDROOM ONE
3.89m x 2.88m
Widow to rear, fitted wardrobe, radiator, carpet flooring
BEDROOM TWO
3.87m x 2.99m
Window to rear, fitted wardrobes, radiator, carpet flooring
BEDROOM THREE
2.21m x 2.92m
Window to front, fitted wardrobe, radiator, new carpet flooring
BATHROOM
1.64m x 2.12m
White suite comprising of W.C, wash hand basin, bath with shower over, tiled walls, window to front, vinyl flooring
Rear Garden
Fully enclosed with lawn and patio area, gate to rear
Parking - Garage
With up and over door
Parking - Driveway
Disclaimer
No appliances have been tested and these details and measurements are produced as a guide only and do not constitute any form of contract or warranty. Please make your own investigations and survey as to the condition of any items mentioned. Photographs may illustrate certain items that are not included in the sale.
Viewing
Strictly by an appointment via Lawson's Estate Agents.
Financial Advice
Lawson's Estate Agents are able to offer an independent mortgage and insurance service free of charge and without obligation. Please call to make an appointment.
- COUNCIL TAXA payment made to your local authority in order to pay for local services like schools, libraries, and refuse collection. The amount you pay depends on the value of the property.Read more about council Tax in our glossary page.
- Band: B
- PARKINGDetails of how and where vehicles can be parked, and any associated costs.Read more about parking in our glossary page.
- Garage,Driveway
- GARDENA property has access to an outdoor space, which could be private or shared.
- Rear garden
- ACCESSIBILITYHow a property has been adapted to meet the needs of vulnerable or disabled individuals.Read more about accessibility in our glossary page.
- Ask agent
Energy performance certificate - ask agent
Anne Bartholomew Road, Thetford, IP24
Add an important place to see how long it'd take to get there from our property listings.
__mins driving to your place
Notes
Staying secure when looking for property
Ensure you're up to date with our latest advice on how to avoid fraud or scams when looking for property online.
Visit our security centre to find out moreDisclaimer - Property reference 0e54339e-9d94-47ce-9d38-58e26a778bf2. The information displayed about this property comprises a property advertisement. Rightmove.co.uk makes no warranty as to the accuracy or completeness of the advertisement or any linked or associated information, and Rightmove has no control over the content. This property advertisement does not constitute property particulars. The information is provided and maintained by Lawsons Estate Agents, Thetford. Please contact the selling agent or developer directly to obtain any information which may be available under the terms of The Energy Performance of Buildings (Certificates and Inspections) (England and Wales) Regulations 2007 or the Home Report if in relation to a residential property in Scotland.
*This is the average speed from the provider with the fastest broadband package available at this postcode. The average speed displayed is based on the download speeds of at least 50% of customers at peak time (8pm to 10pm). Fibre/cable services at the postcode are subject to availability and may differ between properties within a postcode. Speeds can be affected by a range of technical and environmental factors. The speed at the property may be lower than that listed above. You can check the estimated speed and confirm availability to a property prior to purchasing on the broadband provider's website. Providers may increase charges. The information is provided and maintained by Decision Technologies Limited. **This is indicative only and based on a 2-person household with multiple devices and simultaneous usage. Broadband performance is affected by multiple factors including number of occupants and devices, simultaneous usage, router range etc. For more information speak to your broadband provider.
Map data ©OpenStreetMap contributors.







