Webbs Way, Burbage, SN8 3TF

- PROPERTY TYPE
Detached
- BEDROOMS
4
- BATHROOMS
1
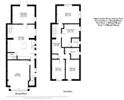
- SIZE
1,780 sq ft
165 sq m
- TENUREDescribes how you own a property. There are different types of tenure - freehold, leasehold, and commonhold.Read more about tenure in our glossary page.
Freehold
Key features
- Hall with cloakroom
- Wonderful kitchen/breakfast room
- Utility
- Lounge
- Dining/family room
- Four generous bedrooms
- Family bathroom plus en suite
- Good size garden
- Driveway parking
- Excellent village facilities and easy access to Marlborough, Hungerford & Pewsey
Description
5A Webbs Way is a substantial detached house offering excellent reception rooms and entertaining spaces. The focal point of the house is the large kitchen/breakfast/family room offering stone flooring, granite work tops and a large island unit. There is plenty of space within this room for a large table or seating area. To the front of the house there is a large and light lounge with a bay window, while to the rear there is an excellent dining/family room with French doors on to the gardens. The ground floor also benefits from a utility room with butler style sink and a cloakroom off the hall.
Stairs rise to a very generous landing leading to the main bedroom which has an ensuite shower room and a dressing area. There are three further double bedrooms and a well appointed family bathroom.
Outside
The property is approached from the road via a tarmac drive offering plenty of parking. There is a wide gravel path leading to the pretty back garden which has raised flower beds and is mainly laid to lawn with a garden shed to one corner
Services
Mains water, electricity and drainage. Electric storage heaters and air source heat pumps. Solar panels to front. Council Tax Band: E.
Tenure
Freehold
what3words /// drag.hydration.comment
Notice
Please note we have not tested any apparatus, fixtures, fittings, or services. Interested parties must undertake their own investigation into the working order of these items. All measurements are approximate and photographs provided for guidance only.
Brochures
Brochure 1Web Details- COUNCIL TAXA payment made to your local authority in order to pay for local services like schools, libraries, and refuse collection. The amount you pay depends on the value of the property.Read more about council Tax in our glossary page.
- Band: E
- PARKINGDetails of how and where vehicles can be parked, and any associated costs.Read more about parking in our glossary page.
- Off street
- GARDENA property has access to an outdoor space, which could be private or shared.
- Private garden
- ACCESSIBILITYHow a property has been adapted to meet the needs of vulnerable or disabled individuals.Read more about accessibility in our glossary page.
- Ask agent
Webbs Way, Burbage, SN8 3TF
Add an important place to see how long it'd take to get there from our property listings.
__mins driving to your place
Get an instant, personalised result:
- Show sellers you’re serious
- Secure viewings faster with agents
- No impact on your credit score
Your mortgage
Notes
Staying secure when looking for property
Ensure you're up to date with our latest advice on how to avoid fraud or scams when looking for property online.
Visit our security centre to find out moreDisclaimer - Property reference 1260_BRIC. The information displayed about this property comprises a property advertisement. Rightmove.co.uk makes no warranty as to the accuracy or completeness of the advertisement or any linked or associated information, and Rightmove has no control over the content. This property advertisement does not constitute property particulars. The information is provided and maintained by Brearley & Rich, Marlborough. Please contact the selling agent or developer directly to obtain any information which may be available under the terms of The Energy Performance of Buildings (Certificates and Inspections) (England and Wales) Regulations 2007 or the Home Report if in relation to a residential property in Scotland.
*This is the average speed from the provider with the fastest broadband package available at this postcode. The average speed displayed is based on the download speeds of at least 50% of customers at peak time (8pm to 10pm). Fibre/cable services at the postcode are subject to availability and may differ between properties within a postcode. Speeds can be affected by a range of technical and environmental factors. The speed at the property may be lower than that listed above. You can check the estimated speed and confirm availability to a property prior to purchasing on the broadband provider's website. Providers may increase charges. The information is provided and maintained by Decision Technologies Limited. **This is indicative only and based on a 2-person household with multiple devices and simultaneous usage. Broadband performance is affected by multiple factors including number of occupants and devices, simultaneous usage, router range etc. For more information speak to your broadband provider.
Map data ©OpenStreetMap contributors.





