
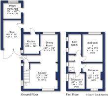
3 bedroom semi-detached house for sale
Park Grove, Knaresborough, North Yorkshire, HG5

- PROPERTY TYPE
Semi-Detached
- BEDROOMS
3
- BATHROOMS
1
- SIZE
890 sq ft
83 sq m
- TENUREDescribes how you own a property. There are different types of tenure - freehold, leasehold, and commonhold.Read more about tenure in our glossary page.
Freehold
Key features
- Well-presented accommodation throughout
- Three bedrooms
- Contemporary house bathroom
- Two reception rooms
- Refitted kitchen
- Ample off street parking
- Store and additional workshop / study
- Delightful private rear garden
Description
With gas central heating and uPVC double glazing, viewing is highly recommended. The property briefly comprises; entrance hall with useful understairs storage cupboard. There is an attractive lounge with staircase to the first floor which opens out to a well-proportioned dining room with window enjoying a pleasant aspect over the private rear garden. There is a modern kitchen which comprises a range of matching wall and base units with working surfaces over, a double oven with four ring gas hob and filter hood over, integrated fridge and freezer, space and plumbing for a dishwasher.
To the first floor there are two double bedrooms and a third single bedroom. The house bathroom has been refitted with a matching white three piece bath suite, with shower over the bath.
Outside a driveway provides ample off street parking. Double opening doors lead to a useful store where there is a work bench to the rear with space and plumbing for a washing machine, sink and space for a dryer. Beyond there is an externally accessed workshop which is currently being used as a study and will be ideal for those working from home. To the front of the property is an open plan lawned garden and a further feature is the delightful private rear garden which will no doubt appeal to those entertaining and for those with family requirements. There is a terrace with steps up to a lawned garden and play area, and raised flowerbed borders beyond.
The property is situated just a short distance from the excellent town centre shopping, recreational and schooling facilities offered in this popular market town which has a railway station with mainline links. The property is also within walking distance of Jacob Smith's Park where pleasant walks can be enjoyed. It is also well-located for access to the southern bypass which leads to the A1(M) providing access to the principal commercial centres of North and West Yorkshire.
Local Authority & Council Tax Band
- North Yorkshire Council,
- Council Tax Band C
Tenure, Services & Parking
- Freehold
- All mains services installed
- Off street parking
Internet & Mobile Coverage
For information on Internet and Mobile coverage access the Ofcom website from this
link
Flooding
For information on flood risks please use this link Check for flooding in England -
GOV.UK
Agent’s Notes
Proceed down the High Street, turning right onto Boroughbridge Road. Turn left into Park Grove where the property can be found further along on the right hand side, clearly marked by our For Sale board.
Brochures
Particulars- COUNCIL TAXA payment made to your local authority in order to pay for local services like schools, libraries, and refuse collection. The amount you pay depends on the value of the property.Read more about council Tax in our glossary page.
- Band: C
- PARKINGDetails of how and where vehicles can be parked, and any associated costs.Read more about parking in our glossary page.
- Driveway,Off street
- GARDENA property has access to an outdoor space, which could be private or shared.
- Yes
- ACCESSIBILITYHow a property has been adapted to meet the needs of vulnerable or disabled individuals.Read more about accessibility in our glossary page.
- No wheelchair access
Park Grove, Knaresborough, North Yorkshire, HG5
Add an important place to see how long it'd take to get there from our property listings.
__mins driving to your place
Get an instant, personalised result:
- Show sellers you’re serious
- Secure viewings faster with agents
- No impact on your credit score
Your mortgage
Notes
Staying secure when looking for property
Ensure you're up to date with our latest advice on how to avoid fraud or scams when looking for property online.
Visit our security centre to find out moreDisclaimer - Property reference KNA240235. The information displayed about this property comprises a property advertisement. Rightmove.co.uk makes no warranty as to the accuracy or completeness of the advertisement or any linked or associated information, and Rightmove has no control over the content. This property advertisement does not constitute property particulars. The information is provided and maintained by Dacre Son & Hartley, Knaresborough. Please contact the selling agent or developer directly to obtain any information which may be available under the terms of The Energy Performance of Buildings (Certificates and Inspections) (England and Wales) Regulations 2007 or the Home Report if in relation to a residential property in Scotland.
*This is the average speed from the provider with the fastest broadband package available at this postcode. The average speed displayed is based on the download speeds of at least 50% of customers at peak time (8pm to 10pm). Fibre/cable services at the postcode are subject to availability and may differ between properties within a postcode. Speeds can be affected by a range of technical and environmental factors. The speed at the property may be lower than that listed above. You can check the estimated speed and confirm availability to a property prior to purchasing on the broadband provider's website. Providers may increase charges. The information is provided and maintained by Decision Technologies Limited. **This is indicative only and based on a 2-person household with multiple devices and simultaneous usage. Broadband performance is affected by multiple factors including number of occupants and devices, simultaneous usage, router range etc. For more information speak to your broadband provider.
Map data ©OpenStreetMap contributors.






