Quarely Road, Leigh Park

- PROPERTY TYPE
Terraced
- BEDROOMS
3
- BATHROOMS
1
- SIZE
Ask agent
- TENUREDescribes how you own a property. There are different types of tenure - freehold, leasehold, and commonhold.Read more about tenure in our glossary page.
Freehold
Key features
- Three bedroom middle terrace house
- Offered with no chain ahead
- Double glazing and gas central heating system
- An ideal first time or investment purchase
- Located in Leigh Park
- Modern kitchen and shower room
- Viewing is a must
Description
Directions
SAT NAV: PO9 4DU. Proceed along Purbrook Way towards Leigh Park, at the point seven roundabout take the first exit into Middle Park Way. Turn left into Park Farm Way, and Quarely Road can be found on the right hand side.
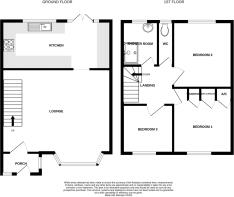
Entrance Porch
Front and side aspect double glazed window, front aspect double glazed door, smooth ceiling, double glazed door to:
Lounge
17' 6'' x 14' 0'' (5.33m x 4.26m) into bay
Front aspect double glazed bay window, stairs to first floor with storage under, laminate floor, T.V point, radiator, open to:
Kitchen
17' 5'' x 7' 0'' (5.31m x 2.14m)
Rear aspect double glazed window, rear aspect double glazed picture window and French doors to garden, range of base level units with worktops over, soft close doors, pan drawers, one and a half sink unit with mixer tap, integral fridge/freezer, integral washing machine and tumble dryer, integral dishwasher, fitted oven, microwave, and hob.
First Floor Landing
Trap hatch to loft space with pull down ladder, smooth ceiling, doors to:
Bedroom 1
12' 8'' x 11' 10'' (3.87m x 3.60m)
Front aspect double glazed window, radiator, linen cupboard, airing cupboard, wardrobe, smooth ceiling.
Bedroom 2
8' 5'' x 8' 2'' (2.56m x 2.49m)
Rear aspect double glazed window, radiator, smooth ceiling, laminate floor.
Bedroom 3
8' 11'' x 8' 10'' (2.71m x 2.68m)
Front aspect double glazed window, radiator, cabin bed and wardrobe, smooth ceiling.
Wet Room/Shower Room
Rear aspect double glazed window, heated towel rail, vanity wash hand basin, shower unit with screen and splash back, extractor, smooth ceiling, inset lights.
W.C
Rear aspect double glazed window, W.C, textured ceiling.
Outside
The front of the property has an area of artificial lawn and a path to the front door. The rear door is laid to patio with a shed and store.
Anti-Money Laundering (AML
Archbold & Edwards have a legal obligation to complete anti-money laundering checks. The AML check should be completed in the branch. Please call the office to book an AML check if you would like to make an offer on this property. Please note the AML check includes us taking a copy of two forms of Identification for each purchaser. A proof of address and proof of name document is required. Please note we cannot put forward an offer without the AML check being completed.
Mortgage Advisor
We have an in-house financial advisor who can offer the following services:
- Mortgages and BTL
- Protection
- Pensions Advice
- Investments Advice
- Wealth Management
To organise an appointment please contact Archbold & Edwards.
Conveyancing
We offer competitive conveyancing services, with local conveyancing companies. For more information or to organise a quote please call us on
Compliance Note
Please be aware all measurement and floor plans used in the details are approximate and for marketing purposes only. The services, system and appliances have not been tested and no guarantee as to their operability or efficiency can be given by Archbold & Edwards Ltd.
Tenure
Any information stated about the tenure and charges for a property have been provided by the seller of the property and is subject to change. All lease information provided will be confirmed by the sellers solicitor during any conveyance.
Brochures
Full Details- COUNCIL TAXA payment made to your local authority in order to pay for local services like schools, libraries, and refuse collection. The amount you pay depends on the value of the property.Read more about council Tax in our glossary page.
- Band: B
- PARKINGDetails of how and where vehicles can be parked, and any associated costs.Read more about parking in our glossary page.
- Ask agent
- GARDENA property has access to an outdoor space, which could be private or shared.
- Yes
- ACCESSIBILITYHow a property has been adapted to meet the needs of vulnerable or disabled individuals.Read more about accessibility in our glossary page.
- Ask agent
Energy performance certificate - ask agent
Quarely Road, Leigh Park
Add an important place to see how long it'd take to get there from our property listings.
__mins driving to your place
Get an instant, personalised result:
- Show sellers you’re serious
- Secure viewings faster with agents
- No impact on your credit score




Your mortgage
Notes
Staying secure when looking for property
Ensure you're up to date with our latest advice on how to avoid fraud or scams when looking for property online.
Visit our security centre to find out moreDisclaimer - Property reference 12787356. The information displayed about this property comprises a property advertisement. Rightmove.co.uk makes no warranty as to the accuracy or completeness of the advertisement or any linked or associated information, and Rightmove has no control over the content. This property advertisement does not constitute property particulars. The information is provided and maintained by Archbold & Edwards, Waterlooville. Please contact the selling agent or developer directly to obtain any information which may be available under the terms of The Energy Performance of Buildings (Certificates and Inspections) (England and Wales) Regulations 2007 or the Home Report if in relation to a residential property in Scotland.
*This is the average speed from the provider with the fastest broadband package available at this postcode. The average speed displayed is based on the download speeds of at least 50% of customers at peak time (8pm to 10pm). Fibre/cable services at the postcode are subject to availability and may differ between properties within a postcode. Speeds can be affected by a range of technical and environmental factors. The speed at the property may be lower than that listed above. You can check the estimated speed and confirm availability to a property prior to purchasing on the broadband provider's website. Providers may increase charges. The information is provided and maintained by Decision Technologies Limited. **This is indicative only and based on a 2-person household with multiple devices and simultaneous usage. Broadband performance is affected by multiple factors including number of occupants and devices, simultaneous usage, router range etc. For more information speak to your broadband provider.
Map data ©OpenStreetMap contributors.




