Oldcastle Avenue, Newcastle, Staffordshire, ST5

- PROPERTY TYPE
Semi-Detached
- BEDROOMS
3
- BATHROOMS
1
- SIZE
Ask agent
- TENUREDescribes how you own a property. There are different types of tenure - freehold, leasehold, and commonhold.Read more about tenure in our glossary page.
Freehold
Key features
- Three bedrooms, two doubles
- Two spacious reception rooms
- Open-plan kitchen with dining area
- Large rear garden
- Off-road parking
- Adjoining utility room
- Proximity to well-regarded schools
- Near parks and recreation areas
- Good transport links nearby
- No upward chain
Description
There are three bedrooms: two doubles and one single, making this home suitable for families, first-time buyers, or investors. The bathroom is fitted with a three-piece white suite, including a bath with shower over. The property is available with no upward chain, facilitating a straightforward purchasing process. A key highlight is the large rear garden, offering potential for outdoor enjoyment, as well as off-road parking.
Local amenities are within easy reach, including a selection of shops and cafés on the nearby high street. For recreation, residents can take advantage of the nearby parks, such as Queens Gardens and Silverdale Country Park, both popular with families and for outdoor exercise.
Public transport links are readily accessible. Newcastle-under-Lyme bus station provides regular connections throughout the local area, and the property is within convenient distance to Stoke-on-Trent railway station. Direct train services connect to Manchester in just under 50 minutes and to Birmingham in around an hour, facilitating regional commuting options.
Council tax band B applies. EPC rating is D. For those seeking a home with good local facilities and transport links, this property is an appealing option.
IMPORTANT NOTE TO POTENTIAL PURCHASERS & TENANTS: We endeavour to make our particulars accurate and reliable, however, they do not constitute or form part of an offer or any contract and none is to be relied upon as statements of representation or fact. The services, systems and appliances listed in this specification have not been tested by us and no guarantee as to their operating ability or efficiency is given. All photographs and measurements have been taken as a guide only and are not precise. Floor plans where included are not to scale and accuracy is not guaranteed. If you require clarification or further information on any points, please contact us, especially if you are traveling some distance to view. POTENTIAL PURCHASERS: Fixtures and fittings other than those mentioned are to be agreed with the seller. POTENTIAL TENANTS: All properties are available for a minimum length of time, with the exception of short term accommodation. Please contact the branch for details. A security deposit of at least one month’s rent is required. Rent is to be paid one month in advance. It is the tenant’s responsibility to insure any personal possessions. Payment of all utilities including water rates or metered supply and Council Tax is the responsibility of the tenant in most cases.
NLY250570/2
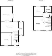
Entrance Hall
Lounge
3.78m x 4.27m (12' 5" x 14' 0")
Dining Kitchen
3.01m x 6.31m (9' 11" x 20' 8")
Conservatory
Utility Room
2.95m x 1.63m (9' 8" x 5' 4")
First Floor
Bedroom One
3.14m x 3.52m (10' 4" x 11' 7")
Bedroom Two
3.32m x 4.1m (10' 11" x 13' 5")
Bedroom Three
3.01m 2.11m
Bathroom
2.11m x 1.70
Rear Garden
Brochures
Web Details- COUNCIL TAXA payment made to your local authority in order to pay for local services like schools, libraries, and refuse collection. The amount you pay depends on the value of the property.Read more about council Tax in our glossary page.
- Band: B
- PARKINGDetails of how and where vehicles can be parked, and any associated costs.Read more about parking in our glossary page.
- Yes
- GARDENA property has access to an outdoor space, which could be private or shared.
- Yes
- ACCESSIBILITYHow a property has been adapted to meet the needs of vulnerable or disabled individuals.Read more about accessibility in our glossary page.
- Ask agent
Oldcastle Avenue, Newcastle, Staffordshire, ST5
Add an important place to see how long it'd take to get there from our property listings.
__mins driving to your place
Get an instant, personalised result:
- Show sellers you’re serious
- Secure viewings faster with agents
- No impact on your credit score



Your mortgage
Notes
Staying secure when looking for property
Ensure you're up to date with our latest advice on how to avoid fraud or scams when looking for property online.
Visit our security centre to find out moreDisclaimer - Property reference NLY250570. The information displayed about this property comprises a property advertisement. Rightmove.co.uk makes no warranty as to the accuracy or completeness of the advertisement or any linked or associated information, and Rightmove has no control over the content. This property advertisement does not constitute property particulars. The information is provided and maintained by Reeds Rains, Newcastle under Lyme. Please contact the selling agent or developer directly to obtain any information which may be available under the terms of The Energy Performance of Buildings (Certificates and Inspections) (England and Wales) Regulations 2007 or the Home Report if in relation to a residential property in Scotland.
*This is the average speed from the provider with the fastest broadband package available at this postcode. The average speed displayed is based on the download speeds of at least 50% of customers at peak time (8pm to 10pm). Fibre/cable services at the postcode are subject to availability and may differ between properties within a postcode. Speeds can be affected by a range of technical and environmental factors. The speed at the property may be lower than that listed above. You can check the estimated speed and confirm availability to a property prior to purchasing on the broadband provider's website. Providers may increase charges. The information is provided and maintained by Decision Technologies Limited. **This is indicative only and based on a 2-person household with multiple devices and simultaneous usage. Broadband performance is affected by multiple factors including number of occupants and devices, simultaneous usage, router range etc. For more information speak to your broadband provider.
Map data ©OpenStreetMap contributors.




