
Cadbury Road, Portishead

- PROPERTY TYPE
Flat
- BEDROOMS
2
- BATHROOMS
2
- SIZE
Ask agent
Key features
- Cadbury Road
- Portishead
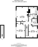
- First floor apartment
- Living Room
- Kitchen
- Wet Room
- Two good sized bedrooms
- Large Back Garden
- Leasehold
- CASH BUYERS ONLY.
Description
Overview
This spacious apartment is situated in enviable position, within walking distance to the High Street and is available to cash buyers only.
Step inside to find a staircase leading to the living accommodation, where you will find a good size living room with electric fireplace, a well-equipped kitchen with plenty of units, and space for free standing appliances. The wet room was designed for an elderly person with shower seat and modern electric shower. There are two double bedrooms both with fitted cupboards, and there is a further cupboard located off the hallway.
Outside
The generously sized garden is easily maintained and offers plenty of sun. There is also space for storage, with two sheds to the side of the property, along with a private entrance.
Location
Situated just off the popular Brampton Way, within walking distance to the High Street where you will find a variety of shops, cafes and restaurants to enjoy. Also provides easy access in and out of Portishead, and to Clevedon.
St Peters Primary and Gordano Secondary are the closest schools.
We think...
This is a perfect flat for those looking to downsize and live a short walk from Portishead's High Street and amenities. It could also make a great buy to let property.
Material information (provided by owner)
Leasehold. The management fee is £41.69 per month. Ground rent is £10 per year. The lease was set up on 19/10/1998 at a length of 125 years, it has 98 years remaining. Council Tax Band A.
Brochures
Brochure 1- COUNCIL TAXA payment made to your local authority in order to pay for local services like schools, libraries, and refuse collection. The amount you pay depends on the value of the property.Read more about council Tax in our glossary page.
- Band: A
- PARKINGDetails of how and where vehicles can be parked, and any associated costs.Read more about parking in our glossary page.
- Ask agent
- GARDENA property has access to an outdoor space, which could be private or shared.
- Yes
- ACCESSIBILITYHow a property has been adapted to meet the needs of vulnerable or disabled individuals.Read more about accessibility in our glossary page.
- No wheelchair access
Energy performance certificate - ask agent
Cadbury Road, Portishead
Add an important place to see how long it'd take to get there from our property listings.
__mins driving to your place
Get an instant, personalised result:
- Show sellers you’re serious
- Secure viewings faster with agents
- No impact on your credit score
Your mortgage
Notes
Staying secure when looking for property
Ensure you're up to date with our latest advice on how to avoid fraud or scams when looking for property online.
Visit our security centre to find out moreDisclaimer - Property reference OPV-93459831. The information displayed about this property comprises a property advertisement. Rightmove.co.uk makes no warranty as to the accuracy or completeness of the advertisement or any linked or associated information, and Rightmove has no control over the content. This property advertisement does not constitute property particulars. The information is provided and maintained by Ocean, Portishead. Please contact the selling agent or developer directly to obtain any information which may be available under the terms of The Energy Performance of Buildings (Certificates and Inspections) (England and Wales) Regulations 2007 or the Home Report if in relation to a residential property in Scotland.
*This is the average speed from the provider with the fastest broadband package available at this postcode. The average speed displayed is based on the download speeds of at least 50% of customers at peak time (8pm to 10pm). Fibre/cable services at the postcode are subject to availability and may differ between properties within a postcode. Speeds can be affected by a range of technical and environmental factors. The speed at the property may be lower than that listed above. You can check the estimated speed and confirm availability to a property prior to purchasing on the broadband provider's website. Providers may increase charges. The information is provided and maintained by Decision Technologies Limited. **This is indicative only and based on a 2-person household with multiple devices and simultaneous usage. Broadband performance is affected by multiple factors including number of occupants and devices, simultaneous usage, router range etc. For more information speak to your broadband provider.
Map data ©OpenStreetMap contributors.





