
3 bedroom bungalow for sale
104 Barry Road, Carnoustie, DD7 7QU

- PROPERTY TYPE
Bungalow
- BEDROOMS
3
- BATHROOMS
2
- SIZE
1,302 sq ft
121 sq m
- TENUREDescribes how you own a property. There are different types of tenure - freehold, leasehold, and commonhold.Read more about tenure in our glossary page.
Freehold
Key features
- Non Standard Construction
- Detached Bungalow
- Extended Sunroom
- Three Double Bedrooms
- Private Rear Garden
- Detached Garage
- Large Driveway
- Quiet Residential Location
Description
* NON STANDARD CONSTRUCTION *
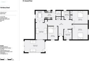
Set within a quiet and established residential area, this detached bungalow offers generous living space, a practical layout, and a lovely connection to its garden all on one level. Well maintained throughout, it’s a home that’s clearly been looked after and offers great potential for someone to move in and make their own.
The main living room is a comfortable and welcoming space, with sliding doors leading into a bright, extended sunroom. This extra reception space runs the width of the property and enjoys views across the garden, making it ideal for relaxing or hosting family and friends.
The kitchen is well laid out with good worktop space and plenty of storage, opening directly into the dining area at the rear. Large windows at both ends bring in plenty of natural light and offer pleasant views, particularly over the back garden and summerhouse.
There are three bedrooms in total two well-proportioned doubles and a third single. The home also benefits from two bathrooms, a main bathroom with bath and a separate shower room, offering extra flexibility for family life or guests.
The garden is easy to manage and neatly kept, with a mix of lawn, planting and a timber summerhouse that adds a nice feature to the outdoor space. It’s a quiet and private spot, ideal for anyone who enjoys a bit of time outside.
This is a solid, spacious home with plenty to offer whether you’re downsizing, upsizing or simply looking for the convenience of single-level living in a peaceful setting.
Brochures
Home Report- COUNCIL TAXA payment made to your local authority in order to pay for local services like schools, libraries, and refuse collection. The amount you pay depends on the value of the property.Read more about council Tax in our glossary page.
- Band: D
- PARKINGDetails of how and where vehicles can be parked, and any associated costs.Read more about parking in our glossary page.
- Yes
- GARDENA property has access to an outdoor space, which could be private or shared.
- Front garden,Rear garden
- ACCESSIBILITYHow a property has been adapted to meet the needs of vulnerable or disabled individuals.Read more about accessibility in our glossary page.
- Ask agent
Energy performance certificate - ask agent
104 Barry Road, Carnoustie, DD7 7QU
Add an important place to see how long it'd take to get there from our property listings.
__mins driving to your place
Get an instant, personalised result:
- Show sellers you’re serious
- Secure viewings faster with agents
- No impact on your credit score
Your mortgage
Notes
Staying secure when looking for property
Ensure you're up to date with our latest advice on how to avoid fraud or scams when looking for property online.
Visit our security centre to find out moreDisclaimer - Property reference 347d0e28-d544-49af-b48f-da03a2c91c6e. The information displayed about this property comprises a property advertisement. Rightmove.co.uk makes no warranty as to the accuracy or completeness of the advertisement or any linked or associated information, and Rightmove has no control over the content. This property advertisement does not constitute property particulars. The information is provided and maintained by Verdala, Dundee. Please contact the selling agent or developer directly to obtain any information which may be available under the terms of The Energy Performance of Buildings (Certificates and Inspections) (England and Wales) Regulations 2007 or the Home Report if in relation to a residential property in Scotland.
*This is the average speed from the provider with the fastest broadband package available at this postcode. The average speed displayed is based on the download speeds of at least 50% of customers at peak time (8pm to 10pm). Fibre/cable services at the postcode are subject to availability and may differ between properties within a postcode. Speeds can be affected by a range of technical and environmental factors. The speed at the property may be lower than that listed above. You can check the estimated speed and confirm availability to a property prior to purchasing on the broadband provider's website. Providers may increase charges. The information is provided and maintained by Decision Technologies Limited. **This is indicative only and based on a 2-person household with multiple devices and simultaneous usage. Broadband performance is affected by multiple factors including number of occupants and devices, simultaneous usage, router range etc. For more information speak to your broadband provider.
Map data ©OpenStreetMap contributors.






