Abbotts Street, Walsall, WS3

- PROPERTY TYPE
Terraced
- BEDROOMS
3
- BATHROOMS
1
- SIZE
Ask agent
- TENUREDescribes how you own a property. There are different types of tenure - freehold, leasehold, and commonhold.Read more about tenure in our glossary page.
Freehold
Key features
- Massively extended
- Double driveway
- Large rear garden
- Prime location
- Three bedroom family home
Description
**Block viewings Available immediately** Calling all first time buyers and families looking for their next perfect family home! This stunning property is situated in Bloxwich - part of Walsall- a very popular part of the WS3 postcode. The property briefly comprises of; good sized front driveway, porch, large lounge, kitchen/diner/ breakfast bar, conservatory, three well proportioned bedrooms, bathroom, landing space and a well maintained rear garden perfect for entertaining the guests! This property is a fantastic house waiting to become someone's next perfect family home.
Walsall itself offers some fantastic local amenities including shops, bars and cafes. WS3 also has a range of excellent schools including comprehensive, Junior and Infant schools. It also has fantastic transport links, including the M6 motorway just a short drive away. This property is sure to be busy so book your viewing now!
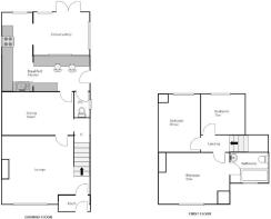
On The Ground Floor -
Entrance Porch - Having PVCu double glazed door leading through to;
Front Lounge - 5.19 (max) x 4.04 (max) - Having PVC double glazed bow window to front elevation, radiator, feature fireplace housing flame effect gas fire, stairs leading to first floor accommodation and door leading through to;
Dining Room - Having radiator, 2 x wall light points, opening to useful under stairs storage area and door leading through to;
Rear L-Shaped Breakfast Kitchen - 4.86 (max) x 4.65 (max) - Having PVC double glazed windows to rear elevation, 2 x radiators, range of wall and base units with contrasting work surface over, built in gas hob, electric oven, space and plumbing for washing machine, breakfast bar, one and a half bowl sink unit with matching drainer, opening through to conservatory, door to down stairs W.C and door to rear garden.
Conservatory - 2.78 x 2.17 (9'1" x 7'1") - Having PVC double glazed window and double doors to rear elevation and radiator.
Downstairs W.C. - Having PVC double glazed window to side elevation and low level W.C.
On The First Floor -
Landing - Having loft access and doors leading through to bedrooms.
Front Bedroom One - 4.19 x 3.04m - Having PVC double glazed window to front elevation, radiator and door leading through to;
Bathroom - Having PVC double glazed window to front elevation, luxurious bath with overhead shower, WC, wash hand basin and rad.
Rear Bedroom Two - 2.62m x 2.4m- Having PVCu double glazed window to rear elevation and radiator.
Rear Bedroom Three - 3.42m x 2.49m - Another double bedroom! Having PVC double glazed window to rear elevation and radiator.
Rear Garden - Having decked patio seating area with inset lighting leading to further walled section of garden laid to lawn with mature border planting.
Do not delay - Book your viewing now!!!
EPC band: D
Disclaimer
Whilst we make enquiries with the Seller to ensure the information provided is accurate, Yopa makes no representations or warranties of any kind with respect to the statements contained in the particulars which should not be relied upon as representations of fact. All representations contained in the particulars are based on details supplied by the Seller. Your Conveyancer is legally responsible for ensuring any purchase agreement fully protects your position. Please inform us if you become aware of any information being inaccurate.
Money Laundering Regulations
Should a purchaser(s) have an offer accepted on a property marketed by Yopa, they will need to undertake an identification check and asked to provide information on the source and proof of funds. This is done to meet our obligation under Anti Money Laundering Regulations (AML) and is a legal requirement. We use a specialist third party service together with an in-house compliance team to verify your information. The cost of these checks is £82.50 +VAT per purchase, which is paid in advance, when an offer is agreed and prior to a sales memorandum being issued. This charge is non-refundable under any circumstances.
- COUNCIL TAXA payment made to your local authority in order to pay for local services like schools, libraries, and refuse collection. The amount you pay depends on the value of the property.Read more about council Tax in our glossary page.
- Ask agent
- PARKINGDetails of how and where vehicles can be parked, and any associated costs.Read more about parking in our glossary page.
- Yes
- GARDENA property has access to an outdoor space, which could be private or shared.
- Yes
- ACCESSIBILITYHow a property has been adapted to meet the needs of vulnerable or disabled individuals.Read more about accessibility in our glossary page.
- Ask agent
Energy performance certificate - ask agent
Abbotts Street, Walsall, WS3
Add an important place to see how long it'd take to get there from our property listings.
__mins driving to your place
Get an instant, personalised result:
- Show sellers you’re serious
- Secure viewings faster with agents
- No impact on your credit score

Your mortgage
Notes
Staying secure when looking for property
Ensure you're up to date with our latest advice on how to avoid fraud or scams when looking for property online.
Visit our security centre to find out moreDisclaimer - Property reference 473008. The information displayed about this property comprises a property advertisement. Rightmove.co.uk makes no warranty as to the accuracy or completeness of the advertisement or any linked or associated information, and Rightmove has no control over the content. This property advertisement does not constitute property particulars. The information is provided and maintained by Yopa, North West & Midlands. Please contact the selling agent or developer directly to obtain any information which may be available under the terms of The Energy Performance of Buildings (Certificates and Inspections) (England and Wales) Regulations 2007 or the Home Report if in relation to a residential property in Scotland.
*This is the average speed from the provider with the fastest broadband package available at this postcode. The average speed displayed is based on the download speeds of at least 50% of customers at peak time (8pm to 10pm). Fibre/cable services at the postcode are subject to availability and may differ between properties within a postcode. Speeds can be affected by a range of technical and environmental factors. The speed at the property may be lower than that listed above. You can check the estimated speed and confirm availability to a property prior to purchasing on the broadband provider's website. Providers may increase charges. The information is provided and maintained by Decision Technologies Limited. **This is indicative only and based on a 2-person household with multiple devices and simultaneous usage. Broadband performance is affected by multiple factors including number of occupants and devices, simultaneous usage, router range etc. For more information speak to your broadband provider.
Map data ©OpenStreetMap contributors.




