Harborne Park Road, Harborne, Birmingham, B17

- PROPERTY TYPE
Terraced
- BEDROOMS
4
- BATHROOMS
2
- SIZE
Ask agent
- TENUREDescribes how you own a property. There are different types of tenure - freehold, leasehold, and commonhold.Read more about tenure in our glossary page.
Freehold
Key features
- TERRACE PROPERTY OVER THREE FLOORS
- FOUR BEDROOMS. TWO RECEPTION ROOMS
- NO CHAIN
- CLOSE TO HARBORNE HIGH STREET
Description
The property is well situated on Harborne Park Road between Harborne High Street and St Peter’s Road. It is close to excellent amenities around the high street and regular transport services leading through to comprehensive City Centre leisure, entertainment and shopping facilities. It is also readily accessible to the Queen Elizabeth Medical Centre, the University of Birmingham and Harborne Leisure Centre.
The property itself is set back from the road behind a paved forecourt area.
An internal inspection is essential to appreciate accommodation which comprises in more detail:
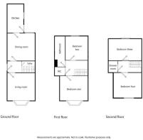
Shared Side Tunnel Entry - Entrance door leading into:
Entrance Hall - Having ceiling light point and stairs rising to first floor accommodation. Built in storage cupboard with stairs leading to:
Cellar - Having Main combi gas boiler, Megaflo water pressure tank and lighting.
Living Room - 4.42m max (into bay) x 3.58m max (14'6" max (into - Having UPVC double glazed bay window, radiator, ceiling light point with ceiling rose, coving to ceiling and feature fireplace with timber surround and tiled hearth.
Dining Room - 3.71m max x 3.60m max (12'2" max x 11'9" max) - Having ceiling light point, radiator and UPVC double glazed window.
Kitchen - 3.71m max x 2.81m max (12'2" max x 9'2" max) - Having tiled flooring, a range of wall and base units with worktop over, single bowl sink drainer with mixer tap over, partial tiling to walls, UPVC double glazed window overlooking side elevation, plumbing and space for washing machine and dryer, ceiling strip lighting, electric oven, gas hob with extractor fan over, radiator and part glazed door leading to garden.
Stairs rising to first floor accommodation.
First Floor Landing - Having wall light, ceiling light point and stairs rising to second floor accommodation.
Bedroom One Front - 3.57m max x 2.91m max (11'8" max x 9'6" max) - Having ceiling light point, radiator and UPVC double glazed window.
Bedroom Two Rear - 3.72m max x 3.02m max (12'2" max x 9'10" max) - Having ceiling light point, radiator and UPVC double glazed window.
Bathroom - Having ceiling light point, extractor fan, window with obscured glass, low flush WC, panelled bathtub with wall mounted shower, a range of wall and base units with worktop over, hand wash basin, wall light, radiator and vinyl flooring.
Wc - Having tiled flooring, ceiling light point, extractor fan, low flush WC and tiling to walls.
Stairs rising to second floor accommodation.
Second Floor Landing - Having ceiling light point.
Bedroom Three Rear - 4.66m max x 2.94m max (15'3" max x 9'7" max) - Having ceiling light point, radiator and UPVC double glazed windows. Please note there is an area of restricted headroom due to the sloping ceilings.
Bedroom Four Front - 3.58m max x 3.67m max (11'8" max x 12'0" max) - Having ceiling light point, radiator and UPVC double glazed windows. Please note there is an area of restricted headroom due to the sloping ceilings.
Shower Room - Having vinyl flooring, radiator, pedestal hand wash basin, tiling to walls, shaving plug, shower cubicle with wall mounted shower, extractor fan and ceiling light point.
Outside - Rear garden with fence panels to three sides and gravel area.
Additional Information - Council Tax Band: C
Tenure: Freehold
Brochures
Harborne Park Road, Harborne, Birmingham, B17Brochure- COUNCIL TAXA payment made to your local authority in order to pay for local services like schools, libraries, and refuse collection. The amount you pay depends on the value of the property.Read more about council Tax in our glossary page.
- Band: C
- PARKINGDetails of how and where vehicles can be parked, and any associated costs.Read more about parking in our glossary page.
- Ask agent
- GARDENA property has access to an outdoor space, which could be private or shared.
- Yes
- ACCESSIBILITYHow a property has been adapted to meet the needs of vulnerable or disabled individuals.Read more about accessibility in our glossary page.
- Ask agent
Harborne Park Road, Harborne, Birmingham, B17
Add an important place to see how long it'd take to get there from our property listings.
__mins driving to your place
Get an instant, personalised result:
- Show sellers you’re serious
- Secure viewings faster with agents
- No impact on your credit score



Affordability
Notes
Staying secure when looking for property
Ensure you're up to date with our latest advice on how to avoid fraud or scams when looking for property online.
Visit our security centre to find out moreDisclaimer - Property reference 34321492. The information displayed about this property comprises a property advertisement. Rightmove.co.uk makes no warranty as to the accuracy or completeness of the advertisement or any linked or associated information, and Rightmove has no control over the content. This property advertisement does not constitute property particulars. The information is provided and maintained by Englands Estate Agents, Harborne. Please contact the selling agent or developer directly to obtain any information which may be available under the terms of The Energy Performance of Buildings (Certificates and Inspections) (England and Wales) Regulations 2007 or the Home Report if in relation to a residential property in Scotland.
*This is the average speed from the provider with the fastest broadband package available at this postcode. The average speed displayed is based on the download speeds of at least 50% of customers at peak time (8pm to 10pm). Fibre/cable services at the postcode are subject to availability and may differ between properties within a postcode. Speeds can be affected by a range of technical and environmental factors. The speed at the property may be lower than that listed above. You can check the estimated speed and confirm availability to a property prior to purchasing on the broadband provider's website. Providers may increase charges. The information is provided and maintained by Decision Technologies Limited. **This is indicative only and based on a 2-person household with multiple devices and simultaneous usage. Broadband performance is affected by multiple factors including number of occupants and devices, simultaneous usage, router range etc. For more information speak to your broadband provider.
Map data ©OpenStreetMap contributors.




