London Road, Southborough, TN4
- PROPERTY TYPE
Land
- BEDROOMS
8
- BATHROOMS
6
- SIZE
Ask agent
Description
£900,000 + VAT. An interesting development opportunity in the heart of Southborough for residential conversion of a landmark building and Planning Permission for two new build houses.
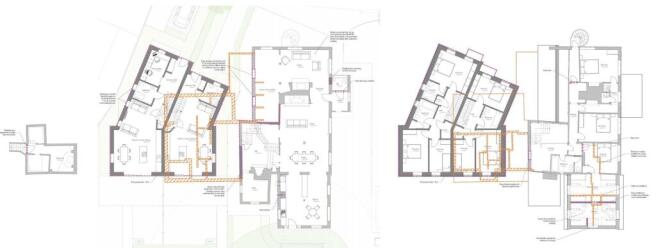
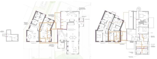
This site comprises the existing dwelling of the former Imli / Weavers Restaurant, a prominent listed building, together with its grounds and parking.
Planning is granted, together with Listed Building Consent for the demolition of the modern rear additions to the former restaurant building, plus conversion into a single family dwelling house.
This planning application includes the erection of two semi-detached two storey dwellings with frontage on Doric Avenue and two detached garage buildings and parking accessed from A26.
Ref. No: 24/03249/FULL - Demolition of modern two storey & single storey rear additions. Conversion of former restaurant building into single dwelling. Erection of two semi-detached two storey dwellings & erection of two detached garage buildings.
Ref. No: 24/03250/LBC - Listed Building Consent - Demolition of modern two storey and single storey rear additions and conversion of former restaurant building into a single family dwelling house.
Viewings strictly by appointment with our office as the site is securely monitored which includes cameras.
EPC Rating: D
VIEWING
Strictly by appointment with Bracketts as the site is securely monitored with cameras.
LOCATION
Southborough lies just north of Tunbridge Wells with the A26 road passing through it. It is fondly known for its quintessentially English Village Green, home to many a cricket match and a majestic church bordering the green, with woodland walks that connect to the local area.
Conveniently located for access to Tonbridge and the A21 which links to the M25 network and south coast. The Tonbridge Schools which include the grammar schools are accessible by bus, as well as the Tunbridge Wells schools and facilities.
Tunbridge Wells attracts many Londoners, ex pats, and up / down sizers for multiple reasons, not least because the proximity to London for commuters, but especially due to the vast array of good schools for all ages. The Grammar schools are a particular pull to the area, with two boys’ grammars and one girls’ grammar. Many of the primary schools are Ofsted outstanding and there is also a good range of independent schooling available.
Tunbridge Wells has a plethora of open...
Brochures
Property BrochureLondon Road, Southborough, TN4
NEAREST STATIONS
Distances are straight line measurements from the centre of the postcode- High Brooms Station1.0 miles
- Tunbridge Wells Station1.9 miles
- Tonbridge Station2.3 miles

Notes
Disclaimer - Property reference a0451237-23a9-47bb-ba24-a61603459de1. The information displayed about this property comprises a property advertisement. Rightmove.co.uk makes no warranty as to the accuracy or completeness of the advertisement or any linked or associated information, and Rightmove has no control over the content. This property advertisement does not constitute property particulars. The information is provided and maintained by Bracketts Chartered Surveyors, Tunbridge Wells. Please contact the selling agent or developer directly to obtain any information which may be available under the terms of The Energy Performance of Buildings (Certificates and Inspections) (England and Wales) Regulations 2007 or the Home Report if in relation to a residential property in Scotland.
Map data ©OpenStreetMap contributors.




