
Lindenthorpe Road, Broadstairs, CT10
- PROPERTY TYPE
Plot
- SIZE
Ask agent
Key features
- Site With Planning Consent
- Prime Residential Location
- Four x 4 Bed Detached Houses
- One x 3 Bed Detached House
- Approx. 1 Acre (0.44 Hectares)
Description
PRIME RESIDENTIAL DEVELOPMENT SITE WITH PLANNING PERMISSION FOR 5 DETACHED HOUSES
Located in the heart of Broadstairs in a prime residential location within half a mile of the railway station, recreation grounds and the towns amenities. The site has been granted full planning consent for the erection of 5 detached dwellings, comprising one 3 bed and four 4 bed houses, following demolition of the existing house.
Full plans are available to view on the Thanet District Council planning portal planning.thanet.gov.uk/online-applications under planning reference F/TH/24/0706.
To arrange to view the site please contact the selling agents Terence Painter on .
Location
Located in a prime residential position, within close proximity to recreation grounds, the railway station and the towns amenities.
Planning Consent
The site extends to approx. 0.44 hectares (one acre) and has full planning consent granted in July 2025 under planning reference F/TH/24/0706 for the erection of 5 houses following demolition of the existing dwelling.
Full plans and planning conditions are available on the Thanet District Council Planning Portal.
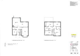
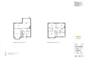
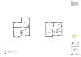
Plot 1 - Approx. 125.5m2 (1350sqft) Four bedroom detached house comprising living room, kitchen, dining/family room, office, cloakroom/WC, principal bedroom with en suite shower room, and family bathroom.
Plot 2 - Approx. 125.6m2 (1351sqft) Four bedroom detached house comprising living room, kitchen, dining/family room, office, cloakroom/WC, principal bedroom with en suite shower room, and family bathroom.
Plot 3 - Approx. 125.9m2 (1355sqft) Three bedroom chalet style detached house comprising living room, kitchen/dining room, office, ground floor bedroom and shower room/WC, two first floor bedrooms both with en suite shower room...
Offers
The sellers are seeking unconditional offers for the site to be submitted to the selling Agents.
Viewings
Viewings are by appointment with the selling agents Terence Painter on .
Brochures
Brochure 1Lindenthorpe Road, Broadstairs, CT10
NEAREST STATIONS
Distances are straight line measurements from the centre of the postcode- Broadstairs Station0.4 miles
- Dumpton Park Station1.4 miles
- Ramsgate Station2.1 miles
About Terence Painter Estate Agents, Broadstairs
Prospect House, 44 High Street, Broadstairs, CT10 1JT



Notes
Disclaimer - Property reference 29695509. The information displayed about this property comprises a property advertisement. Rightmove.co.uk makes no warranty as to the accuracy or completeness of the advertisement or any linked or associated information, and Rightmove has no control over the content. This property advertisement does not constitute property particulars. The information is provided and maintained by Terence Painter Estate Agents, Broadstairs. Please contact the selling agent or developer directly to obtain any information which may be available under the terms of The Energy Performance of Buildings (Certificates and Inspections) (England and Wales) Regulations 2007 or the Home Report if in relation to a residential property in Scotland.
Map data ©OpenStreetMap contributors.






