
Albert Road, Barnet, EN49SH

- PROPERTY TYPE
Apartment
- BEDROOMS
2
- BATHROOMS
2
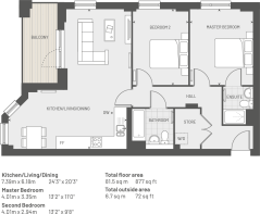
- SIZE
877 sq ft
81 sq m
Key features
- 4 minute walk to New Barnet for National Rail services
- Adjacent to green open space
- Pet friendly development
- Close to amenities in Cockfosters and High Barnet
- Modern specification including Amtico flooring, Quartz worktops and integrated appliances
- South balcony
- L-shaped kitchen
- Includes parking
- Peppercorn ground rent and 999-year lease
- Get Mortgage Ready: First Time Buyer event on Saturday 29th November!
Description
*Up to £30,000 towards your deposit or Stamp Duty contribution*
Plot 212, The Hibiscus is a beautifully designed second-floor two-bedroom home offering an impressive 877 sq. ft. of thoughtfully laid-out living space in one of North London's most desirable neighbourhoods. With direct trains from New Barnet reaching Moorgate in just 28 minutes, commuting into the city is both fast and convenient.
At the heart of the home is a spacious open-plan L-shaped kitchen, complete with Quartz 'Salt and Pepper' worktops, sleek gloss handleless cabinets, and fully integrated appliances. The stylish living area, finished with contemporary flooring, is flooded with natural light from floor-to-ceiling windows and opens out to a private south -facing balcony perfect for enjoying the sunshine throughout the day.
The master is generously sized along with a second bedroom with lots of natural light thanks to striking floor-to-ceiling windows. The master includes a stylish en suite, while a separate contemporary bathroom adds a luxurious touch, featuring porcelain tiling, a heated towel rail, and elegant white sanitaryware.
Additional built-in storage adds everyday practicality, while the apartment's high-quality finishes and smart layout makes The Hibiscus offer modern comfort, quality, and easy, elegant living.
Get Mortgage Ready: First Time Buyer event on Saturday 29th November
Whether you're looking to understand how much you can afford or close to reserving your new home, join us on Saturday 29th November from 10am-5pm for our first time buyer event at Park Quarter.
We'll have mortgage experts Torc24 and our friendly sales team on hand to answer any of your questions. Plus, enjoy delicious churros on the day!
The Development
Park Quarter is an exciting new development of studio, 1, 2 & 3 bedroom apartments and 3 bedroom duplexes in the desirable setting of New Barnet. These stylish new homes occupy a prime location just 4 minutes walk to New Barnet station, offering fast and frequent services into Moorgate.
Commuting is a breeze. Choose from New Barnet station or just over 1 mile away, jump on the Northern line from High Barnet or the Piccadilly line from Cockfosters. An enviable location to call home with all your transport needs covered.
The Local Area
Access to your every day amenities, all within 15 minutes from home.
Victoria Recreation Ground and New Barnet Leisure Centre are both a short walk away. Take a peaceful walk or head to the gym or swimming pool.
New Barnet high street is home to a large Sainsbury's supermarket, a choice of coffee shops and PureGym.
Head into High Barnet for the Everyman cinema, a choice of restaurants and cafes and The Spires Shopping Centre, offering an array of high street brands. Cockfosters Road is home to a number of popular eateries and bars - the perfect destination for a weekend spent with friends and family.
Discover The Benefits of Buying New
- Save money on your household bills: on average, new homes are 39% cheaper to heat than an equivalent older home, which could save you up to £770 per year
- Ready to move into: a complete blank canvas to make your own from day one
- Chain-free buying process
- Peace of mind with 10-year NHBC warranty
- 999 year lease
- Predicted EPC rating B
*Deposit contribution capped to a maximum of 5% of the property purchase, available on selected plots only and reservations made by 31st December 2025. No cash alternative. Terms and conditions apply. Not available in conjunction with any other offer. Please speak to a Sales Executive for further information.*
- COUNCIL TAXA payment made to your local authority in order to pay for local services like schools, libraries, and refuse collection. The amount you pay depends on the value of the property.Read more about council Tax in our glossary page.
- Ask developer
- PARKINGDetails of how and where vehicles can be parked, and any associated costs.Read more about parking in our glossary page.
- Yes
- GARDENA property has access to an outdoor space, which could be private or shared.
- Ask developer
- ACCESSIBILITYHow a property has been adapted to meet the needs of vulnerable or disabled individuals.Read more about accessibility in our glossary page.
- Ask developer
Energy performance certificate - ask developer
Albert Road, Barnet, EN49SH
Add an important place to see how long it'd take to get there from our property listings.
__mins driving to your place
Get an instant, personalised result:
- Show sellers you’re serious
- Secure viewings faster with agents
- No impact on your credit score
About Fairview New Homes
Fairview New Homes
For almost sixty years, Fairview's high standards and value-for-money have won recognition throughout the new homes sector.
Our developments have received several top awards and Homeviews named us the ‘Developer of choice for First Time buyers’ in 2021
Currently available all over London and the Home Counties, our new homes now offer better value than ever - often being backed with a range of practical and financial benefits. We also offer almost as many types of homes as there are types of homeowner, due to our growth, financial stability, strength and commitment.
Your mortgage
Notes
Staying secure when looking for property
Ensure you're up to date with our latest advice on how to avoid fraud or scams when looking for property online.
Visit our security centre to find out moreDisclaimer - Property reference 212TheHibiscus241125. The information displayed about this property comprises a property advertisement. Rightmove.co.uk makes no warranty as to the accuracy or completeness of the advertisement or any linked or associated information, and Rightmove has no control over the content. This property advertisement does not constitute property particulars. The information is provided and maintained by Fairview New Homes. Please contact the selling agent or developer directly to obtain any information which may be available under the terms of The Energy Performance of Buildings (Certificates and Inspections) (England and Wales) Regulations 2007 or the Home Report if in relation to a residential property in Scotland.
*This is the average speed from the provider with the fastest broadband package available at this postcode. The average speed displayed is based on the download speeds of at least 50% of customers at peak time (8pm to 10pm). Fibre/cable services at the postcode are subject to availability and may differ between properties within a postcode. Speeds can be affected by a range of technical and environmental factors. The speed at the property may be lower than that listed above. You can check the estimated speed and confirm availability to a property prior to purchasing on the broadband provider's website. Providers may increase charges. The information is provided and maintained by Decision Technologies Limited. **This is indicative only and based on a 2-person household with multiple devices and simultaneous usage. Broadband performance is affected by multiple factors including number of occupants and devices, simultaneous usage, router range etc. For more information speak to your broadband provider.
Map data ©OpenStreetMap contributors.





