
Land for sale
Sutton Lane, Sutton Benger, SN15
- PROPERTY TYPE
Land
- BEDROOMS
4
- BATHROOMS
2
- SIZE
Ask agent
Key features
- LAND FOR SALE WITH PLANNING
- FREEHOLD
- VILLAGE LOCATION
- (ref: PL/2025/06181)
Description
and offers should be submitted in writing to the sellers agent
by the 14th of January 2026, no later than 12pm.
A rare opportunity to acquire a prime site situated in the desirable village of Sutton Benger, a location well regarded for its strong community feel and convenient access to surrounding towns.
Sutton Benger offers a blend of rural charm and essential amenities, including a popular primary school, village hall, playground, tennis courts, recreation field, church, local pub and renowned restaurant, making it an attractive setting for a range of buyers.
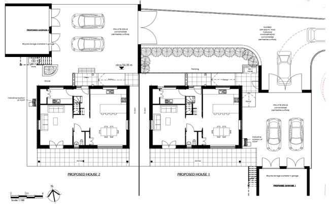
The site benefits from detailed planning permission for two 4-bedroom houses (ref: PL/2025/06181) and is well positioned for those seeking a balance between village living and connectivity.
Sutton Benger benefits from superb transport links, with easy access to the A350 and M4, providing direct routes to Chippenham, Bath, Bristol, and Swindon. Chippenham railway station, offering mainline services to London and the South West, is also within close reach.
Its strategic position and appealing village environment make this an exciting prospect for investors, developers, or self-builders.
Brochures
suttonbengerlandbrochure2Sutton Lane, Sutton Benger, SN15
NEAREST STATIONS
Distances are straight line measurements from the centre of the postcode- Chippenham Station3.4 miles
Notes
Disclaimer - Property reference LNH103473. The information displayed about this property comprises a property advertisement. Rightmove.co.uk makes no warranty as to the accuracy or completeness of the advertisement or any linked or associated information, and Rightmove has no control over the content. This property advertisement does not constitute property particulars. The information is provided and maintained by Richard James, Land & New Homes. Please contact the selling agent or developer directly to obtain any information which may be available under the terms of The Energy Performance of Buildings (Certificates and Inspections) (England and Wales) Regulations 2007 or the Home Report if in relation to a residential property in Scotland.
Map data ©OpenStreetMap contributors.





