3 bedroom semi-detached house for sale
Melville Lea, Woodnesborough, Sandwich, CT13 0NE

- PROPERTY TYPE
Semi-Detached
- BEDROOMS
3
- BATHROOMS
1
- SIZE
Ask agent
- TENUREDescribes how you own a property. There are different types of tenure - freehold, leasehold, and commonhold.Read more about tenure in our glossary page.
Freehold
Key features
- Semi-detached home in quiet cul-de-sac location
- Beautiful rear views over open countryside
- Offered with no onward chain
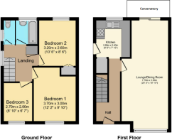
- Spacious full-length lounge/dining room
- Well-fitted kitchen with solid wood worktops and Rayburn oven
- Three bedrooms, including two generous doubles
- Family bathroom plus separate WC
- Large rear garden with shed and summer house
- Off-road parking to the front of the property
- Please quote ref DM0223
Description
Please quote ref DM0223
Situated in a quiet cul-de-sac on the edge of the sought-after village of Woodnesborough, this well-presented semi-detached home enjoys stunning open countryside views to the rear and is offered with no onward chain.
Internally - The property features a welcoming entrance hall leading through to a spacious full-length lounge/dining room, offering an excellent family and entertaining space. The kitchen is well-fitted with ample storage, solid wood worktops, a butler sink and a Rayburn oven. A built-in cupboard houses the combination boiler.
To the first floor are three bedrooms - two of which are generous doubles - along with a family bathroom and separate WC.
Outside - the property boasts a large rear garden mainly laid to lawn, with a useful storage shed and summer house. The front of the property provides a good-sized driveway offering off-road parking.
Location - Woodnesborough is a charming rural village with a strong community feel and a recently built village hall offering a programme of local events. The property sits approximately 1.5 miles from the historic town of Sandwich, which provides a selection of shops and amenities including supermarkets, banks, a post office, medical facilities, cafés, restaurants, pubs and highly regarded schools. Sandwich also benefits from a mainline railway station with high-speed links to London St Pancras.
Excellent road and rail connections provide access to the coastal port of Dover (approx. 6 miles) and the vibrant Cathedral City of Canterbury (approx. 15 miles). The area is also renowned for its golf courses, including the prestigious Royal St George’s Golf Club.
Brochures
Brochure 1- COUNCIL TAXA payment made to your local authority in order to pay for local services like schools, libraries, and refuse collection. The amount you pay depends on the value of the property.Read more about council Tax in our glossary page.
- Band: C
- PARKINGDetails of how and where vehicles can be parked, and any associated costs.Read more about parking in our glossary page.
- Driveway,Off street
- GARDENA property has access to an outdoor space, which could be private or shared.
- Private garden
- ACCESSIBILITYHow a property has been adapted to meet the needs of vulnerable or disabled individuals.Read more about accessibility in our glossary page.
- No wheelchair access
Energy performance certificate - ask agent
Melville Lea, Woodnesborough, Sandwich, CT13 0NE
Add an important place to see how long it'd take to get there from our property listings.
__mins driving to your place
Get an instant, personalised result:
- Show sellers you’re serious
- Secure viewings faster with agents
- No impact on your credit score
Your mortgage
Notes
Staying secure when looking for property
Ensure you're up to date with our latest advice on how to avoid fraud or scams when looking for property online.
Visit our security centre to find out moreDisclaimer - Property reference S1509040. The information displayed about this property comprises a property advertisement. Rightmove.co.uk makes no warranty as to the accuracy or completeness of the advertisement or any linked or associated information, and Rightmove has no control over the content. This property advertisement does not constitute property particulars. The information is provided and maintained by eXp UK, South East. Please contact the selling agent or developer directly to obtain any information which may be available under the terms of The Energy Performance of Buildings (Certificates and Inspections) (England and Wales) Regulations 2007 or the Home Report if in relation to a residential property in Scotland.
*This is the average speed from the provider with the fastest broadband package available at this postcode. The average speed displayed is based on the download speeds of at least 50% of customers at peak time (8pm to 10pm). Fibre/cable services at the postcode are subject to availability and may differ between properties within a postcode. Speeds can be affected by a range of technical and environmental factors. The speed at the property may be lower than that listed above. You can check the estimated speed and confirm availability to a property prior to purchasing on the broadband provider's website. Providers may increase charges. The information is provided and maintained by Decision Technologies Limited. **This is indicative only and based on a 2-person household with multiple devices and simultaneous usage. Broadband performance is affected by multiple factors including number of occupants and devices, simultaneous usage, router range etc. For more information speak to your broadband provider.
Map data ©OpenStreetMap contributors.




