
Tickow Lane, Shepshed, Loughborough, Leicestershire, LE12 9EY

- PROPERTY TYPE
Detached
- BEDROOMS
3
- SIZE
Ask developer
- TENUREDescribes how you own a property. There are different types of tenure - freehold, leasehold, and commonhold.Read more about tenure in our glossary page.
Freehold
Key features
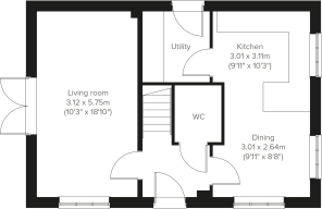
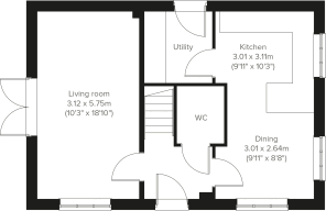
- Open plan kitchen/dining room
- Utility room
- Spacious living room with French doors to garden
- Downstairs WC
- En suite to bedroom one
- Family bathroom
- Storage space
- Energy efficient
Description
A thoughtfully-designed three-bedroom family home with much to offer, the Barndale has a bright and modern open plan kitchen/dining room leading to a handy utility room. The spacious living room has French doors leading into the garden. The inner hallway, downstairs WC and cupboards take care of everyday storage. Plus there’s an en suite to bedroom one and a family bathroom.
Schemes
We could help boost your deposit -
Looking for a helping hand with your deposit? Deposit Boost is available on this plot, meaning if you’ve saved a deposit of 10%, we could boost it with an extra 5%.
Additional Information
- Tenure: Freehold
- Council tax band: Not made available by local authority until post-occupation
Parking - Driveway
Room Dimensions
- Kitchen - 3.01 x 3.11 metre
- Dining - 3.01 x 2.64 metre
- Living room - 3.12 x 5.75 metre
- Bedroom 1 - 2.88 x 3.75 metre
- Bedroom 2 - 4.19 x 2.96 metre
- Bedroom 3 - 3.14 x 2.7 metre
- COUNCIL TAXA payment made to your local authority in order to pay for local services like schools, libraries, and refuse collection. The amount you pay depends on the value of the property.Read more about council Tax in our glossary page.
- Ask developer
- PARKINGDetails of how and where vehicles can be parked, and any associated costs.Read more about parking in our glossary page.
- Yes
- GARDENA property has access to an outdoor space, which could be private or shared.
- Yes
- ACCESSIBILITYHow a property has been adapted to meet the needs of vulnerable or disabled individuals.Read more about accessibility in our glossary page.
- Ask developer
Energy performance certificate - ask developer
- Choice of 3, 4 and 5 bedroom homes
- Great market town location
- Ideal for commuters
- Schools and shops nearby
Tickow Lane, Shepshed, Loughborough, Leicestershire, LE12 9EY
Add an important place to see how long it'd take to get there from our property listings.
__mins driving to your place
Get an instant, personalised result:
- Show sellers you’re serious
- Secure viewings faster with agents
- No impact on your credit score
About Persimmon Homes
Set in the heart of the Leicestershire countryside, Jubilee Rise offers beautifully designed energy-efficient two, three and four-bedroom new houses for sale in Shepshed.
This vibrant development features generous green spaces and a fantastic range of on-site activities for families, including a basketball court, large play park, woodland area, teqball and tennis courts.
The friendly local community is supported by a choice of sports and youth clubs, including cricket teams and activity groups that make it easy for families to get involved and feel at home.
Jubilee Rise is just 5 minutes from Shepshed town centre, where you can find shops, cafes, restaurants and an Asda. For more variety, Loughborough and Ashby de la Zouch are only 15 minutes away by car.
This special development also includes our Eco Range homes, with solar panels, EV charging, enhanced insulation and more, helping you save on energy and futureproof your home. With excellent local schools and road links to Loughborough, Leicester and Derby, it?s a smart, sustainable choice.
To explore our new houses for sale in Shepshed and start your new build journey, speak to one of our sales advisors.
This development offers the following schemes:
- New Build Boost
- Deposit Boost: 5% Deposit Contribution Scheme
- Part Exchange your Home
- Own New Rate Reducer Scheme
- Home Change
- Deposit Unlock
Schemes are available on selected plots only, subject to status, terms and conditions apply. Contact the development for latest information.
Affordability
Notes
Staying secure when looking for property
Ensure you're up to date with our latest advice on how to avoid fraud or scams when looking for property online.
Visit our security centre to find out moreDisclaimer - Property reference 3_67. The information displayed about this property comprises a property advertisement. Rightmove.co.uk makes no warranty as to the accuracy or completeness of the advertisement or any linked or associated information, and Rightmove has no control over the content. This property advertisement does not constitute property particulars. The information is provided and maintained by Persimmon Homes. Please contact the selling agent or developer directly to obtain any information which may be available under the terms of The Energy Performance of Buildings (Certificates and Inspections) (England and Wales) Regulations 2007 or the Home Report if in relation to a residential property in Scotland.
*This is the average speed from the provider with the fastest broadband package available at this postcode. The average speed displayed is based on the download speeds of at least 50% of customers at peak time (8pm to 10pm). Fibre/cable services at the postcode are subject to availability and may differ between properties within a postcode. Speeds can be affected by a range of technical and environmental factors. The speed at the property may be lower than that listed above. You can check the estimated speed and confirm availability to a property prior to purchasing on the broadband provider's website. Providers may increase charges. The information is provided and maintained by Decision Technologies Limited. **This is indicative only and based on a 2-person household with multiple devices and simultaneous usage. Broadband performance is affected by multiple factors including number of occupants and devices, simultaneous usage, router range etc. For more information speak to your broadband provider.
Map data ©OpenStreetMap contributors.






