Cuthbertson Walk Bucksburn Aberdeen AB21 9HG

- PROPERTY TYPE
Detached
- BEDROOMS
4
- SIZE
Ask developer
- TENUREDescribes how you own a property. There are different types of tenure - freehold, leasehold, and commonhold.Read more about tenure in our glossary page.
Ask developer
Key features
- Get a £19,999 deposit contribution & £2,500 Furniture voucher
- Or choose Part Exchange
- £13,349 LBTT paid & free flooring
- Detached double garage
- Kitchen/breakfast/family area
- Utility room
- 2 French door features
- 2 en suites
- Bathroom with freestanding shower
- Garden
Description
Exceptionally spacious by design, the ground floor of this home in Bucksburn allows plenty of space to dine, entertain and relax with the added benefit of a dedicated home office, WC, utility space and detached double garage. French doors lead out from both the living/dining area and the kitchen/family/breakfast room. Upstairs is bright, offering four large double bedrooms, two en suite shower rooms and a bath and shower room.
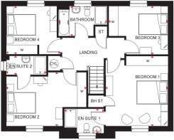
Room Dimensions
- Bathroom - 3123mm x 1921mm (10'2" x 6'3")
- Bedroom 1 - 4020mm x 4487mm (13'2" x 14'8")
- Bedroom 2 - 5143mm x 3450mm (16'10" x 11'3")
- Bedroom 3 - 3813mm x 3100mm (12'6" x 10'2")
- Bedroom 4 - 3473mm x 3087mm (11'4" x 10'1")
- Ensuite 1 - 2540mm x 1571mm (8'3" x 5'1")
- Ensuite 2 - 2572mm x 1210mm (8'5" x 3'11")
- Kitchen / Family - 6268mm x 3514mm (20'6" x 11'6")
- Lounge / Dining - 3997mm x 7692mm (13'1" x 25'2")
- Study Downstairs - 3698mm x 2572mm (12'1" x 8'5")
- Utility - 2718mm x 1760mm (8'11" x 5'9")
- WC - 1831mm x 1350mm (6'0" x 4'5")
- COUNCIL TAXA payment made to your local authority in order to pay for local services like schools, libraries, and refuse collection. The amount you pay depends on the value of the property.Read more about council Tax in our glossary page.
- Ask developer
- PARKINGDetails of how and where vehicles can be parked, and any associated costs.Read more about parking in our glossary page.
- Yes
- GARDENA property has access to an outdoor space, which could be private or shared.
- Yes
- ACCESSIBILITYHow a property has been adapted to meet the needs of vulnerable or disabled individuals.Read more about accessibility in our glossary page.
- Ask developer
Energy performance certificate - ask developer
- 3 or 4 bed homes
- 6 miles from Aberdeen city centre
- The shops are a short walk away
- Schools are an easy cycle
Cuthbertson Walk Bucksburn Aberdeen AB21 9HG
Add an important place to see how long it'd take to get there from our property listings.
__mins driving to your place
Explore area BETA
Aberdeen
Get to know this area with AI-generated guides about local green spaces, transport links, restaurants and more.
Get an instant, personalised result:
- Show sellers you’re serious
- Secure viewings faster with agents
- No impact on your credit score
About Barratt Homes - North Scotland
Building your future
If you want to make the most of modern living, a brand-new Barratt home could be just what you’re looking for. Practical, smart and cost-efficient, Barratt homes make day-to-day life easy – so you can get on with building your future.
Smarter design
From neat storage for simple, clutter-free living to flexible, multi-purpose open-plan spaces, Barratt homes are great for family life.
Efficiency built in
According to HBF data a brand-new home could be cheaper to run than an older home, meaning you could reduce your running costs†
Quality at our heart
You’ll find award–winning quality in every room. We’ve** been given 5 Stars by the Home Builders Federation every year since 2010. And over 95% of our homeowners would recommend us to their friends, so you can buy with confidence.
Always here to help
We have a wide range of schemes to help you move with just a 5% deposit, and if you're selling a home we can help you take the hassle out of moving.
†Based on Government and Ofgem data in the HBF “Watt a Save” reports which provide annual average usage figures for existing homes vs new-build homes in the UK.
**We are the only major national housebuilder to be awarded this key industry award every year since 2010. “We” refers to the Barratt Developments PLC group brands including Barratt London, Barratt Homes and David Wilson Homes. Based on HBF star rating scheme from 2010 to 2025 derived from the NHBC national new homes survey at eight weeks, over 95% of Barratt Developments PLC group customer would recommend our brands to a friend.
Your mortgage
Notes
Staying secure when looking for property
Ensure you're up to date with our latest advice on how to avoid fraud or scams when looking for property online.
Visit our security centre to find out moreDisclaimer - Property reference 4_H8280110. The information displayed about this property comprises a property advertisement. Rightmove.co.uk makes no warranty as to the accuracy or completeness of the advertisement or any linked or associated information, and Rightmove has no control over the content. This property advertisement does not constitute property particulars. The information is provided and maintained by Barratt Homes - North Scotland. Please contact the selling agent or developer directly to obtain any information which may be available under the terms of The Energy Performance of Buildings (Certificates and Inspections) (England and Wales) Regulations 2007 or the Home Report if in relation to a residential property in Scotland.
*This is the average speed from the provider with the fastest broadband package available at this postcode. The average speed displayed is based on the download speeds of at least 50% of customers at peak time (8pm to 10pm). Fibre/cable services at the postcode are subject to availability and may differ between properties within a postcode. Speeds can be affected by a range of technical and environmental factors. The speed at the property may be lower than that listed above. You can check the estimated speed and confirm availability to a property prior to purchasing on the broadband provider's website. Providers may increase charges. The information is provided and maintained by Decision Technologies Limited. **This is indicative only and based on a 2-person household with multiple devices and simultaneous usage. Broadband performance is affected by multiple factors including number of occupants and devices, simultaneous usage, router range etc. For more information speak to your broadband provider.
Map data ©OpenStreetMap contributors.





