
Furnival Street, Sandbach

- BEDROOMS
7
- BATHROOMS
2
- SIZE
Ask agent
- TENUREDescribes how you own a property. There are different types of tenure - freehold, leasehold, and commonhold.Read more about tenure in our glossary page.
Freehold
Description
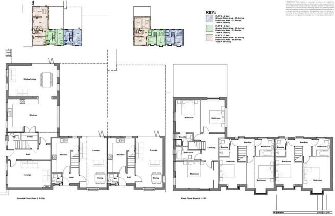
FOR SALE VIA INFORMAL TENDER - closing date January 31st 2026! Nestled on Furnival Street in the charming town of Sandbach, this versatile business property presents an exciting opportunity for prospective buyers or investors. Originally established as a care home which has been divided into two large semi-detached homes at the front & this substancial detached building spans to approx 296 square meters with a large three bedroom apartment on the first floor and 7 rooms plus bathroom and utility space on the ground floor. The building dates back to the 1970s and boasts a wealth of potential for various uses, whether you envision continuing its legacy in care or transforming it into a different venture.
One of the standout features of this property is the granted planning permission (Ref: 25/1052/FUL) for the construction of three terrace houses, providing an excellent opportunity for those looking to develop residential units in a desirable area. This aspect not only enhances the property's value but also opens the door to a range of possibilities for future growth and development.
The property is conveniently located just a stone's throw from the town centre, ensuring easy access to local amenities and services. With parking available for up to seven vehicles, it offers practicality for both staff and visitors alike.
In summary, this property on Furnival Street is a rare find, combining a prime location, generous parking, and significant potential for both business and residential development. Whether you are an entrepreneur seeking a new venture or an investor looking to capitalise on the growing demand for housing, this property is well worth your consideration. Call us today to arrange your all-important viewing on this exciting opportunity.
Brochures
Furnival Street, SandbachBrochure- COUNCIL TAXA payment made to your local authority in order to pay for local services like schools, libraries, and refuse collection. The amount you pay depends on the value of the property.Read more about council Tax in our glossary page.
- Band: B
- PARKINGDetails of how and where vehicles can be parked, and any associated costs.Read more about parking in our glossary page.
- Yes
- GARDENA property has access to an outdoor space, which could be private or shared.
- Ask agent
- ACCESSIBILITYHow a property has been adapted to meet the needs of vulnerable or disabled individuals.Read more about accessibility in our glossary page.
- Ask agent
Energy performance certificate - ask agent
Furnival Street, Sandbach
Add an important place to see how long it'd take to get there from our property listings.
__mins driving to your place
Get an instant, personalised result:
- Show sellers you’re serious
- Secure viewings faster with agents
- No impact on your credit score
Your mortgage
Notes
Staying secure when looking for property
Ensure you're up to date with our latest advice on how to avoid fraud or scams when looking for property online.
Visit our security centre to find out moreDisclaimer - Property reference 34323724. The information displayed about this property comprises a property advertisement. Rightmove.co.uk makes no warranty as to the accuracy or completeness of the advertisement or any linked or associated information, and Rightmove has no control over the content. This property advertisement does not constitute property particulars. The information is provided and maintained by Chris Hamriding Lettings & Estates, Sandbach. Please contact the selling agent or developer directly to obtain any information which may be available under the terms of The Energy Performance of Buildings (Certificates and Inspections) (England and Wales) Regulations 2007 or the Home Report if in relation to a residential property in Scotland.
*This is the average speed from the provider with the fastest broadband package available at this postcode. The average speed displayed is based on the download speeds of at least 50% of customers at peak time (8pm to 10pm). Fibre/cable services at the postcode are subject to availability and may differ between properties within a postcode. Speeds can be affected by a range of technical and environmental factors. The speed at the property may be lower than that listed above. You can check the estimated speed and confirm availability to a property prior to purchasing on the broadband provider's website. Providers may increase charges. The information is provided and maintained by Decision Technologies Limited. **This is indicative only and based on a 2-person household with multiple devices and simultaneous usage. Broadband performance is affected by multiple factors including number of occupants and devices, simultaneous usage, router range etc. For more information speak to your broadband provider.
Map data ©OpenStreetMap contributors.





