
Hay-on-Wye, Hereford, HR3

- PROPERTY TYPE
Semi-Detached
- BEDROOMS
3
- BATHROOMS
1
- SIZE
1,113 sq ft
103 sq m
- TENUREDescribes how you own a property. There are different types of tenure - freehold, leasehold, and commonhold.Read more about tenure in our glossary page.
Freehold
Key features
- No Onward Chain
- Generous corner plot
- 3/4 versatile bedrooms
- 2/3 reception rooms
- Dual-aspect living spaces
- Large enclosed rear garden
- Front garden with shrubs
- Driveway for two vehicles
- Short walk to town centre
Description
A bright and versatile 3/4-bedroom semi-detached home on a generous corner plot, offering flexible living spaces, a superb rear garden, and parking for two cars, all within easy walking distance of Hay-on-Wye town centre.
Property Details
This well-proportioned semi-detached property offers flexible accommodation across two floors, ideal for families, home-workers, or buyers seeking extra space. Set on a generous corner plot, the home features a spacious rear garden, a front garden, and off-road parking for two vehicles. With light, neutral decor throughout, it provides an excellent opportunity for the next owner to personalise and create their ideal home.
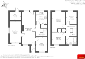
The entrance porch leads into a bright, dual-aspect living room with direct access to the rear garden. From here, doors open to two additional ground-floor rooms:
a versatile space suitable as a study, dining room, or playroom, and a further generously sized dual-aspect room that could serve as a formal dining room or a downstairs bedroom.
A hallway from the living room leads to the kitchen, which is fitted with a range of units, space for appliances, and an understairs cupboard ideal for pantry storage. Stairs rise from here to the first floor.
Upstairs, the landing includes an airing cupboard and gives access to two double bedrooms, both with built-in cupboards, a single bedroom, and the family bathroom.
Outside, to the front, a neat lawned garden with mature shrubs sits alongside a driveway providing parking for two vehicles. A side gate leads to the fully enclosed and private rear garden, mainly laid to lawn with well-established borders. Two large wooden sheds offer excellent storage, and a patio adjoining the living room provides the perfect spot for outdoor dining and relaxation.
Location:
Situated on the edge of Hay-on-Wye, this home is just a short walk from the town centre and its renowned shops, cafés, bookshops, and community facilities. The town’s riverside setting offers easy access to the Brecon Beacons National Park and the Black Mountains, with Hereford and Brecon both within comfortable reach for wider amenities.
Brochures
More details from Chancellors- COUNCIL TAXA payment made to your local authority in order to pay for local services like schools, libraries, and refuse collection. The amount you pay depends on the value of the property.Read more about council Tax in our glossary page.
- Band: D
- PARKINGDetails of how and where vehicles can be parked, and any associated costs.Read more about parking in our glossary page.
- Off street
- GARDENA property has access to an outdoor space, which could be private or shared.
- Private garden
- ACCESSIBILITYHow a property has been adapted to meet the needs of vulnerable or disabled individuals.Read more about accessibility in our glossary page.
- Ask agent
Hay-on-Wye, Hereford, HR3
Add an important place to see how long it'd take to get there from our property listings.
__mins driving to your place
Get an instant, personalised result:
- Show sellers you’re serious
- Secure viewings faster with agents
- No impact on your credit score
Your mortgage
Notes
Staying secure when looking for property
Ensure you're up to date with our latest advice on how to avoid fraud or scams when looking for property online.
Visit our security centre to find out moreDisclaimer - Property reference 6042700. The information displayed about this property comprises a property advertisement. Rightmove.co.uk makes no warranty as to the accuracy or completeness of the advertisement or any linked or associated information, and Rightmove has no control over the content. This property advertisement does not constitute property particulars. The information is provided and maintained by Chancellors, Hay-On-Wye. Please contact the selling agent or developer directly to obtain any information which may be available under the terms of The Energy Performance of Buildings (Certificates and Inspections) (England and Wales) Regulations 2007 or the Home Report if in relation to a residential property in Scotland.
*This is the average speed from the provider with the fastest broadband package available at this postcode. The average speed displayed is based on the download speeds of at least 50% of customers at peak time (8pm to 10pm). Fibre/cable services at the postcode are subject to availability and may differ between properties within a postcode. Speeds can be affected by a range of technical and environmental factors. The speed at the property may be lower than that listed above. You can check the estimated speed and confirm availability to a property prior to purchasing on the broadband provider's website. Providers may increase charges. The information is provided and maintained by Decision Technologies Limited. **This is indicative only and based on a 2-person household with multiple devices and simultaneous usage. Broadband performance is affected by multiple factors including number of occupants and devices, simultaneous usage, router range etc. For more information speak to your broadband provider.
Map data ©OpenStreetMap contributors.








