141 High Street
- SIZE
Ask agent
- SECTOR
High street retail property to lease
Lease details
- Lease available date:
- Ask agent
Description
LOCATION
Occupying a prominent position along Ryde High Street, set just beyond the pedestrian precinct and close to well-known retailers such as Iceland, one of the town´s two post offices, Boots the chemist Osbornes men´s clothing, Peacocks along with a Polish and Eastern European supermarket among others.
Ryde´s immediate population is some 25,000 people, with a strong seasonal influx, many via fast passenger Catamaran and Hovercraft links from Portsmouth and Southsea, particularly delivering short stay visitors to the Esplanade
DESCRIPTION
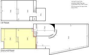
The unit benefits from a wide frontage of around 8.2m (26.9ft) which is entirely glazed.
The main trading area of the ground floor runs to approximately 306.5m² (3,300ft²) and has a total retail space of 483m² (5,200ft²).
There is a WC and office on the first floor.
TERMS
A new lease is available at an initial rent of £18,5000pa for the whole building or £10,900pa for the front ground floor (yellow on plan). Other terms by negotiation.
OUTGOINGS
Rateable Value: £11,500 2024/2025: 54.6p without small business relief. Interested parties should make their own enquiries of the Isle of Wight Council to confirm any rate liability or rate concession that may be applicable by telephoning Business Rates on
VIEWING
Strictly by appointment with sole agents. Call Lisa Mercer or Charlie Dickson on or email
Brochures
141 High Street
NEAREST STATIONS
Distances are straight line measurements from the centre of the postcode- Ryde St. Johns Road Station0.3 miles
- Ryde Esplanade Station0.4 miles
- Ryde Pier Head Station0.9 miles
Notes
Disclaimer - Property reference 101276042364. The information displayed about this property comprises a property advertisement. Rightmove.co.uk makes no warranty as to the accuracy or completeness of the advertisement or any linked or associated information, and Rightmove has no control over the content. This property advertisement does not constitute property particulars. The information is provided and maintained by Hose Rhodes Dickson, Newport. Please contact the selling agent or developer directly to obtain any information which may be available under the terms of The Energy Performance of Buildings (Certificates and Inspections) (England and Wales) Regulations 2007 or the Home Report if in relation to a residential property in Scotland.
Map data ©OpenStreetMap contributors.





