Green Lanes, St. Peter Port

- PROPERTY TYPE
Semi-Detached
- BEDROOMS
2
- BATHROOMS
1
- SIZE
Ask agent
- TENUREDescribes how you own a property. There are different types of tenure - freehold, leasehold, and commonhold.Read more about tenure in our glossary page.
Ask agent
Key features
- Semi detached home
- Two bedrooms and 1 bathroom
- Light and airy throughout
- Lovely elevated position
- Situated in a quiet clos in St Peter Port
- Walking distance of Town
- Parking for up to 2 cars plus garage
- Garden and patio area
Description
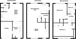
ACCOMMODATION COMPRISING
Entrance Hall
4.71m x 2.1m
Garage
4.7m x 2.48m
Utility Area / Boot Room
4.8m x 3.57m
Fitted with a range of wooden wall and base units with marble effect work surfaces.
Separate WC
1.52m x 1.37m
Fitted with a two piece white suite. Small storage cupboard.
First Floor Landing
1.94m x 0.87m
Airing cupboard.
Kitchen / Dining Area
5.02m x 3.72m
Fitted with a range of wooden wall and base units with marble effect work surfaces incorporating one and half bowl stainless steel sink and drainer.
Sitting Room
4.95m x 4.47m
Stairs lead to...
Second Floor Landing
2.1m x 1.8m
Cupboard and access to loft space.
Bathroom
2.69m x 2.19m
Fitted with a four piece white suite comprising of walk in shower, wash hand basin, wc and bidet.
Bedroom 2
4.49m x 2.62m
Wash hand basin and vanity unit. Wardrobes.
Bedroom 1
4.79m x 4.39m
Extensive run of wardrobes and chest of drawers. Cupboard.
OUTSIDE
Front
To the front of the property there is parking for up to 2 cars. Small lawned area. Scope to create more parking to the side if required.
Side
Paved pathway and lawned area.
Rear
West facing patio area and lawned garden. Garden shed.
Appliances
Hotpoint dishwasher, Neff oven, Hotpoint hob, extractor fan over, Hotpoint washing machine, Hotpoint tumble drier and Neff fridge.
Brochures
Web Details- COUNCIL TAXA payment made to your local authority in order to pay for local services like schools, libraries, and refuse collection. The amount you pay depends on the value of the property.Read more about council Tax in our glossary page.
- Band: TBC
- PARKINGDetails of how and where vehicles can be parked, and any associated costs.Read more about parking in our glossary page.
- Yes
- GARDENA property has access to an outdoor space, which could be private or shared.
- Yes
- ACCESSIBILITYHow a property has been adapted to meet the needs of vulnerable or disabled individuals.Read more about accessibility in our glossary page.
- Ask agent
Energy performance certificate - ask agent
Green Lanes, St. Peter Port
Add an important place to see how long it'd take to get there from our property listings.
__mins driving to your place
Get an instant, personalised result:
- Show sellers you’re serious
- Secure viewings faster with agents
- No impact on your credit score
Your mortgage
Notes
Staying secure when looking for property
Ensure you're up to date with our latest advice on how to avoid fraud or scams when looking for property online.
Visit our security centre to find out moreDisclaimer - Property reference REN150066. The information displayed about this property comprises a property advertisement. Rightmove.co.uk makes no warranty as to the accuracy or completeness of the advertisement or any linked or associated information, and Rightmove has no control over the content. This property advertisement does not constitute property particulars. The information is provided and maintained by Swoffers Limited, Guernsey. Please contact the selling agent or developer directly to obtain any information which may be available under the terms of The Energy Performance of Buildings (Certificates and Inspections) (England and Wales) Regulations 2007 or the Home Report if in relation to a residential property in Scotland.
*This is the average speed from the provider with the fastest broadband package available at this postcode. The average speed displayed is based on the download speeds of at least 50% of customers at peak time (8pm to 10pm). Fibre/cable services at the postcode are subject to availability and may differ between properties within a postcode. Speeds can be affected by a range of technical and environmental factors. The speed at the property may be lower than that listed above. You can check the estimated speed and confirm availability to a property prior to purchasing on the broadband provider's website. Providers may increase charges. The information is provided and maintained by Decision Technologies Limited. **This is indicative only and based on a 2-person household with multiple devices and simultaneous usage. Broadband performance is affected by multiple factors including number of occupants and devices, simultaneous usage, router range etc. For more information speak to your broadband provider.
Map data ©OpenStreetMap contributors.




