
Mulberry House, 11 Union Street, St Peter Port, GY1

- PROPERTY TYPE
End of Terrace
- BEDROOMS
4
- BATHROOMS
2
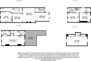
- SIZE
2,713 sq ft
252 sq m
- TENUREDescribes how you own a property. There are different types of tenure - freehold, leasehold, and commonhold.Read more about tenure in our glossary page.
Freehold
Key features
- Open Market
- Elegant Listed Regency Townhouse
- Immaculate Renovation & Modern Comforts
- Spacious Interiors with Sun Terrace
- South-Facing Walled Garden & Garage
Description
Description
Mulberry House is a distinguished listed Regency townhouse, positioned in one of St Peter Port’s most desirable and tranquil locations. The property enjoys the convenience of being within easy walking distance of the town centre, local schools, and a wide range of amenities.
The current owner has undertaken a comprehensive programme of renovation and refurbishment, resulting in a home of exceptional quality. The interiors showcase immaculate period detailing complemented by modern services and finishes, all presented in excellent condition.
The ground floor accommodation includes a welcoming entrance hall, cloakroom, boot room and utility area. A well-appointed kitchen/breakfast room sits alongside a formal dining room and an elegant sitting room, which flows into a charming garden room. French doors open onto a beautifully maintained south-facing walled garden, complete with a garden shed and a garage.
On the first floor, the principal bedroom suite offers generous proportions, bespoke fitted wardrobes, a luxurious en-suite shower room, and direct access to a newly decked sun terrace overlooking the garden.
The second floor provides two additional double bedrooms, each with ample built-in storage, together with a family bathroom while the attic room enjoys rooftop and distant sea views. This versatile space could serve as a study, games room, or cinema room, as required.
The delightful walled garden is a true highlight, accessed from the garden room and via double doors from the quiet side street and garage at the rear. Vehicular access is available from the side road, with the garage opening directly into the garden.
Mulberry House represents a rare opportunity to acquire a Regency townhouse in turnkey condition, moments from the heart of St Peter Port.
Location
Mulberry House is situated in a convenient location in central St Peter Port, a short distance away from all the amenities of the high street including restaurants, cafes, shops and supermarkets. Doyle Motors and Co-op Locale are in the immediate vicinity. A regular bus route is available close by from La Grange. The school catchment area for the property is Vauvert Primary and La Mare de Carteret High School.
Square Footage: 2,713 sq ft
Directions
Heading East along Union Street, once you have passed St John Street, the property is the last on the right before Little St John Street.
Additional Info
Services and Notes Oil fired central heating, Mains drainage and electric. We understand the property to be of traditional construction. Property is Listed. TRP 252.
Please note any total floor areas referred to within Savills Guernsey's details are provided by the States of Guernsey and are approximate only.
Brochures
Web DetailsParticulars- COUNCIL TAXA payment made to your local authority in order to pay for local services like schools, libraries, and refuse collection. The amount you pay depends on the value of the property.Read more about council Tax in our glossary page.
- Band: TBC
- PARKINGDetails of how and where vehicles can be parked, and any associated costs.Read more about parking in our glossary page.
- Yes
- GARDENA property has access to an outdoor space, which could be private or shared.
- Yes
- ACCESSIBILITYHow a property has been adapted to meet the needs of vulnerable or disabled individuals.Read more about accessibility in our glossary page.
- Ask agent
Energy performance certificate - ask agent
Mulberry House, 11 Union Street, St Peter Port, GY1
Add an important place to see how long it'd take to get there from our property listings.
__mins driving to your place
Get an instant, personalised result:
- Show sellers you’re serious
- Secure viewings faster with agents
- No impact on your credit score
Your mortgage
Notes
Staying secure when looking for property
Ensure you're up to date with our latest advice on how to avoid fraud or scams when looking for property online.
Visit our security centre to find out moreDisclaimer - Property reference GUE250337. The information displayed about this property comprises a property advertisement. Rightmove.co.uk makes no warranty as to the accuracy or completeness of the advertisement or any linked or associated information, and Rightmove has no control over the content. This property advertisement does not constitute property particulars. The information is provided and maintained by Savills, Guernsey. Please contact the selling agent or developer directly to obtain any information which may be available under the terms of The Energy Performance of Buildings (Certificates and Inspections) (England and Wales) Regulations 2007 or the Home Report if in relation to a residential property in Scotland.
*This is the average speed from the provider with the fastest broadband package available at this postcode. The average speed displayed is based on the download speeds of at least 50% of customers at peak time (8pm to 10pm). Fibre/cable services at the postcode are subject to availability and may differ between properties within a postcode. Speeds can be affected by a range of technical and environmental factors. The speed at the property may be lower than that listed above. You can check the estimated speed and confirm availability to a property prior to purchasing on the broadband provider's website. Providers may increase charges. The information is provided and maintained by Decision Technologies Limited. **This is indicative only and based on a 2-person household with multiple devices and simultaneous usage. Broadband performance is affected by multiple factors including number of occupants and devices, simultaneous usage, router range etc. For more information speak to your broadband provider.
Map data ©OpenStreetMap contributors.





