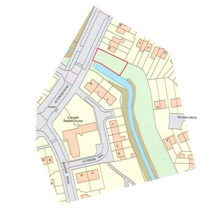
Plot of Land at Altcross Road / Riviera Drive, Croxteth, Merseyside L11 4UR
- SIZE
Ask agent
- SECTOR
Land for sale
Key features
- Plot of Land
- May Suit Infill Development (STP)
Description
Online auction 9th - 10th December 2025
Plot of Land – May Suit Infill Development (STP)
Plot of land lying adj to No. 74 Altcross Road, between Riviera Drive and Altcross Way.
The plot may suit infill development subject to the required consents being obtained.
All interested parties are advised to consult with the local planning authority with regard to their intended use, prior to bidding.
Tenure: Long Leasehold
Title number: MS360918
Length of Lease/Term: 999 years from 9 June 1989
Ground Rent : £nil
Local Authority: Liverpool
Finance is available on this lot. For a decision-in-principle visit togethermoney.com/amydip/
IMPORTANT INFORMATION Buying at auction is a contractual commitment, you are legally obliged to buy the lot on the terms of the sale memorandum at the price you bid. If you are the successful bidder, you are required to pay the deposit and auction fees immediately. As agent for the seller, we treat any failure to satisfy your obligations as your repudiation of the contract and the seller may then have a claim against you for breach of contract. You must not bid unless you wish to be bound by the common conditions of auction.
ANTI-MONEY LAUNDERING REGULATIONS In accordance with Anti-Money Laundering Regulations, two forms of identification and confirmation of the source of funding will be required from the successful purchaser. Every effort has been made to confirm the accuracy of the lot details including any defect in the title both with the vendor and their solicitor. Auction House will not be held responsible for any failure to disclose any such defects.
Any purchasers choosing to buy without viewing in person are doing so at their own risk and acknowledge that the auctioneer will not be held responsible for any issues that may arise due to them being unintentionally missed from the video or sales particulars.
Please refer to legal pack for additional fees and the Auction Information document for guidance prior to bidding.
Tenure: Leasehold
Administration Fee: 2.5% inc VAT of the purchase price, subject to a minimum of £2500 inc VAT, payable on exchange of contracts.
Buyer's Premium Fee: £900 inc VAT payable on exchange of contracts.
Disbursements: Please see the legal pack for any disbursements listed that may become payable by the purchaser on completion.
Plot of Land at Altcross Road / Riviera Drive, Croxteth, Merseyside L11 4UR
NEAREST STATIONS
Distances are straight line measurements from the centre of the postcode- Fazakerley Station1.9 miles
- Kirkby Station2.3 miles
- Rice Lane Station2.7 miles
Notes
Disclaimer - Property reference 202510271153sq_kf86. The information displayed about this property comprises a property advertisement. Rightmove.co.uk makes no warranty as to the accuracy or completeness of the advertisement or any linked or associated information, and Rightmove has no control over the content. This property advertisement does not constitute property particulars. The information is provided and maintained by Auction House North West, Commercial. Please contact the selling agent or developer directly to obtain any information which may be available under the terms of The Energy Performance of Buildings (Certificates and Inspections) (England and Wales) Regulations 2007 or the Home Report if in relation to a residential property in Scotland.
Auction Fees: The purchase of this property may include associated fees not listed here, as it is to be sold via auction. To find out more about the fees associated with this property please call Auction House North West, Commercial on 0161 524 6307.
*Guide Price: An indication of a seller's minimum expectation at auction and given as a Guide Price or a range of Guide Prices. This is not necessarily the figure a property will sell for and is subject to change prior to the auction.
Reserve Price: Each auction property will be subject to a Reserve Price below which the property cannot be sold at auction. Normally the Reserve Price will be set within the range of Guide Prices or no more than 10% above a single Guide Price.
Map data ©OpenStreetMap contributors.




