
Briarwood Avenue, BURY ST EDMUNDS

- PROPERTY TYPE
Detached
- BEDROOMS
3
- BATHROOMS
1
- SIZE
Ask agent
- TENUREDescribes how you own a property. There are different types of tenure - freehold, leasehold, and commonhold.Read more about tenure in our glossary page.
Freehold
Key features
- 1930's detached bay fronted house
- Desirable location
- Extensive ground floor accommodation
- Double length reception room and separate dining room
- Kitchen/breakfast room and cloakroom
- Three bedrooms
- Bathroom with bath and shower
- Attached garage
- Modernisation required lots of potential
- Attractive mature gardens
Description
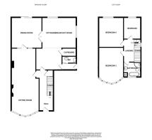
The accommodation currently comprises an entrance hall with stairs to the first floor with understairs cupboard. The double sitting room was previously two rooms which have been knocked through and has a feature fireplace and bay window to front. A glazed door connects through to the dining room with sliding glazed doors leading out to a rear terrace and double doors lead into the large kitchen/breakfast room. The kitchen area has a range of units with a Bosch electric double oven and Zanussi electric hob. There is an integral fridge and a cupboard housing the gas fired boiler. From the breakfast room there is a door to a lobby which leads out to the side passage and a sliding door into a cloakroom. From the first-floor landing there are doors to the three bedrooms and the bathroom which includes a bath and shower and there is an airing cupboard.
Outside to the front of the house is a garden with lawn and flower borders and a block paved driveway, providing off road parking which leads to the garage and a gate leads to a side passage which leads to the attractive west facing rear gardens which are extremely well stocked with an abundance of plants, shrubs and mature trees. At the rear is an area of kitchen garden and a large timber shed.
Entrance Hall
5'9" x 14'4" (1.75m x 4.37m)
Stairs to first floor with understairs cupboard. Doors to Siting room and breakfast room.
Sitting Room
13'3" max x 27'4" into bay (4.04m x 8.33m)
A very well-proportioned room with bay window and feature fireplace, a glazed door leads through to the
Dining Room
13'9" x 13'9" (4.19m x 4.19m)
A light and spacious room with sliding glazed doors to the rear garden and double doors into the
Kitchen / Breakfast Room
11'10" x 14'8" (3.61m x 4.47m) & 9'7" x 11'7" (2.92m x 3.53m)
Fitted with a range of wall and base units, double oven and integral fridge. Lovely garden views. Boiler cupboard. Door into
Rear Lobby
3'7" x 4'10" (1.09m x 1.47m)
External door to side passage and sliding door into
Cloakroom
With WC and wash basin.
Bedroom One
10'9" into bay x 15'6" (3.28m x 4.72m)
Bay window to the front and a range of built in cupboards.
Bedroom Two
11'6" x 13'4" (3.51m x 4.06m)
large window overlooking the rear garden
Bedroom Three
7'8" x 9'8" (2.34m x 2.95m)
window overlooking rear garden
Bathroom
With panelled bath, corner shower cubicle, wash basin and WC. Airing cupboard with hot water tank and window to the front and heated towel rail.
Driveway
To the front of the property the block paved driveway provides off road parking and leads to the
Garage
8'2" x 15'7" (2.49m x 4.75m)
Integral garage with up and over door
Front Garden
Attractive front garden behind a dwarf wall with lawn and flower borders, a side gate leads to a path to the rear garden.
Rear Garden
The attractive, mature rear garden includes a paved terrace immediately to the rear of the house, beyond which are lawned gardens and flower and shrub borders. To the rear is an area of kitchen garden and timber garden shed (12' x 8'9").
Disclaimer
Chewton Rose Estate Agents is the seller's agent for this property. Your conveyancer is legally responsible for ensuring any purchase agreement fully protects your position. We make detailed enquiries of the seller to ensure the information provided is as accurate as possible. Please inform us if you become aware of any information being inaccurate.
Brochures
Material InformationBrochure- COUNCIL TAXA payment made to your local authority in order to pay for local services like schools, libraries, and refuse collection. The amount you pay depends on the value of the property.Read more about council Tax in our glossary page.
- Ask agent
- PARKINGDetails of how and where vehicles can be parked, and any associated costs.Read more about parking in our glossary page.
- Yes
- GARDENA property has access to an outdoor space, which could be private or shared.
- Yes
- ACCESSIBILITYHow a property has been adapted to meet the needs of vulnerable or disabled individuals.Read more about accessibility in our glossary page.
- Ask agent
Briarwood Avenue, BURY ST EDMUNDS
Add an important place to see how long it'd take to get there from our property listings.
__mins driving to your place
Explore area BETA
Bury St Edmunds
Get to know this area with AI-generated guides about local green spaces, transport links, restaurants and more.
Get an instant, personalised result:
- Show sellers you’re serious
- Secure viewings faster with agents
- No impact on your credit score
Your mortgage
Notes
Staying secure when looking for property
Ensure you're up to date with our latest advice on how to avoid fraud or scams when looking for property online.
Visit our security centre to find out moreDisclaimer - Property reference 10824_CWR082409353. The information displayed about this property comprises a property advertisement. Rightmove.co.uk makes no warranty as to the accuracy or completeness of the advertisement or any linked or associated information, and Rightmove has no control over the content. This property advertisement does not constitute property particulars. The information is provided and maintained by Chewton Rose, Bury St Edmunds. Please contact the selling agent or developer directly to obtain any information which may be available under the terms of The Energy Performance of Buildings (Certificates and Inspections) (England and Wales) Regulations 2007 or the Home Report if in relation to a residential property in Scotland.
*This is the average speed from the provider with the fastest broadband package available at this postcode. The average speed displayed is based on the download speeds of at least 50% of customers at peak time (8pm to 10pm). Fibre/cable services at the postcode are subject to availability and may differ between properties within a postcode. Speeds can be affected by a range of technical and environmental factors. The speed at the property may be lower than that listed above. You can check the estimated speed and confirm availability to a property prior to purchasing on the broadband provider's website. Providers may increase charges. The information is provided and maintained by Decision Technologies Limited. **This is indicative only and based on a 2-person household with multiple devices and simultaneous usage. Broadband performance is affected by multiple factors including number of occupants and devices, simultaneous usage, router range etc. For more information speak to your broadband provider.
Map data ©OpenStreetMap contributors.





