
Land for sale
Lincoln Road, Dunholme
- PROPERTY TYPE
Land
- SIZE
Ask agent
Description
LOCATION The popular village of Dunholme is located to the North of the historic Cathedral and University City of Lincoln. The village, along with the neighbouring village of Welton, offers a good range of amenities including primary and secondary schooling, a Co-op, post office, public houses and leisure facilities. Dunholme is well positioned for access to the A46 and has a direct bus route into Lincoln.
SERVICES All mains services are understood to be available within Lincoln Road. EPC Rating - Not applicable.
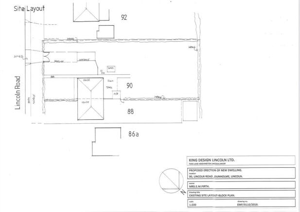
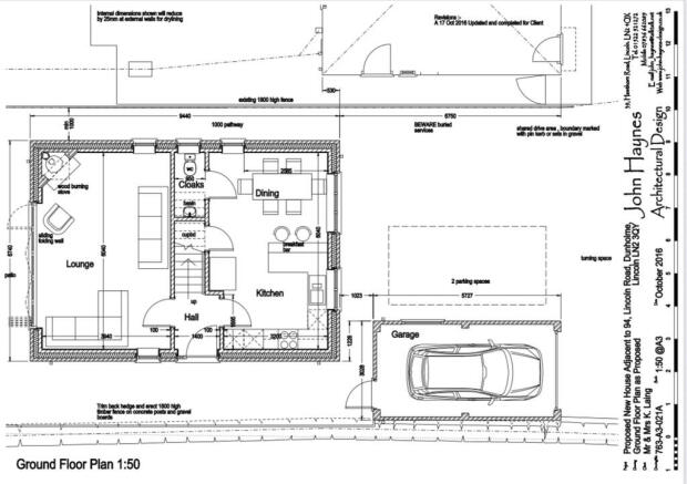
DESCRIPTION We are delighted to offer for sale this exceptional Development Opportunity to acquire a Building Plot with Outline Planning Consent for a Three Bedroom Detached House with garage, situated within the popular village of Dunholme near Lincoln. Planning Consent was granted on 20th November 2024 by West Lindsey District Council, Planning Application Number: WL/2024/00954. Further details available upon request.
NOTE We are delighted to offer for sale this exceptional Development Opportunity to acquire a Building Plot with Outline Planning Consent for a Three Bedroom Detached House with garage, situated within the popular village of Dunholme near Lincoln. Planning Consent was granted on 20th November 2024 by West Lindsey District Council, Planning Application Number: WL/2024/00954. Further details available upon request
Brochures
2 PAGE BROCHURELincoln Road, Dunholme
NEAREST STATIONS
Distances are straight line measurements from the centre of the postcode- Lincoln Central Station5.7 miles
Notes
Disclaimer - Property reference 102125035470. The information displayed about this property comprises a property advertisement. Rightmove.co.uk makes no warranty as to the accuracy or completeness of the advertisement or any linked or associated information, and Rightmove has no control over the content. This property advertisement does not constitute property particulars. The information is provided and maintained by Mundys, Lincoln. Please contact the selling agent or developer directly to obtain any information which may be available under the terms of The Energy Performance of Buildings (Certificates and Inspections) (England and Wales) Regulations 2007 or the Home Report if in relation to a residential property in Scotland.
Map data ©OpenStreetMap contributors.








