Mixed use property for sale
51 Buttermarket, Ipswich, Suffolk, IP1 1BJ
- SIZE AVAILABLE
1,078 sq ft
100 sq m
- SECTOR
Mixed use property for sale
Description
This premium Freehold in the town centre, consisting of mixed-use stock, is an exceptional investment opportunity. It includes two recently refurbished 1-bedroom flats, both fitted with new kitchens, bathrooms and new electric heating. The ground floor commercial unit has also recently enjoyed refurbishment, and all three units are currently let. This property offers a 10% return on investment, with a current yield of £34,600 per annum. The commercial unit is secured on a 10-year lease, providing a stable and attractive income stream. Ideal for investors seeking a robust addition to their portfolio with both residential and commercial components.
Situation
The property is situated in Ipswich Town Centre on the Buttermarket, close to its junction with Upper Brook Street. Neighbouring retail occupiers include The Works, Caffe Nero, The Tooth Club and Oxfam.
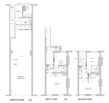
Accommodation
RETAIL:
Ground: 74.24 sq m (801 sq ft)
Basement (retail storage): 25.73 sq m (277 sq ft)
Total: 100.15 sq m (1,078 sq ft)
RESIDENTIAL:
First Floor Apartment: 37.16 sq m (400 sq ft)
Second Floor Apartment: 39.48 sq m (425 sq ft)
Total: 76.64 sq m (825 sq ft)
Total Overall: 176.79 sq m (1,903 sq ft)
Location
Ipswich is the county town of Suffolk with a population of circa 130,000. The town is situated approximately 80 miles north east of London, 43 miles south of Norwich and 18 miles north east of Colchester.
Business Rates
All enquiries to Ipswich Borough Council.
Planning
All enquiries to Ipswich Borough Council.
EPC
Rating 43B, Certificate Number 1688-4520-6516-1052-0227, valid until 18th April 2033.
VAT
VAT is applicable.
Brochures
51 Buttermarket, Ipswich, Suffolk, IP1 1BJ
NEAREST STATIONS
Distances are straight line measurements from the centre of the postcode- Ipswich Station0.7 miles
- Derby Road Station1.2 miles
- Westerfield Station1.7 miles
Notes
Disclaimer - Property reference 71664323FH. The information displayed about this property comprises a property advertisement. Rightmove.co.uk makes no warranty as to the accuracy or completeness of the advertisement or any linked or associated information, and Rightmove has no control over the content. This property advertisement does not constitute property particulars. The information is provided and maintained by Penn Commercial, Ipswich. Please contact the selling agent or developer directly to obtain any information which may be available under the terms of The Energy Performance of Buildings (Certificates and Inspections) (England and Wales) Regulations 2007 or the Home Report if in relation to a residential property in Scotland.
Map data ©OpenStreetMap contributors.




