Barn at Old Mill, Newick Lane, Mayfield. TN20 6RF

- PROPERTY TYPE
Barn
- BEDROOMS
4
- BATHROOMS
3
- SIZE
2,476 sq ft
230 sq m
- TENUREDescribes how you own a property. There are different types of tenure - freehold, leasehold, and commonhold.Read more about tenure in our glossary page.
Freehold
Key features
- Grade II Listed Oak barn with planning permission to convert
- Additional barns/stables/outbuildings with further potential (STPP)
- Barns in excess of 600 sq.m
- Approximately 2.3 acres of gardens and paddock
- Will form a 4 bedroom, 3 bathroom, 3 reception room property
- Stone built annexe (to be converted)
- Viewings by appointment only with the selling agent
Description
A sensational detached Grade II listed Oak framed barn, with full planning consents to convert into a four bedroom dwelling, set within approximately 2 acres of gardens and paddock, and enjoying a tucked away spot, off Newick Lane, along with over 350 sq.m of other barns/stables. NO CHAIN
The Barn at Old Mill, Newick Lane forms a rare opportunity to purchase a substantial Oak framed Grade II listed Barn, of approximately 230 sq.m, with planning permission to convert into a residential house. It is a fabulous former Threshing barn, and sits within a site that also provides other pole barns, stables and outbuildings, currently totalling around 600sq.m.
Some of these additional barns and outbuildings are due to be replaced and/or converted under the current planning permissions, to form a detached garage block and annex accommodation, but it is considered that there may possibly be some scope in the future to also convert them into further dwellings using the second access, subject to the necessary planning consents.
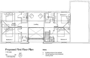
The planning permission would be to form a four bedroom barn, an en-suite to the main bedroom and a first floor family bathroom, a vaulted dining hall, sitting room, kitchen, utility room, cloakroom, plus a hallway, office and downstairs shower room, with this area potentially forming a fifth bedroom suite. The planning permission can be found on Wealden’s website under refs: WD/2024/1690/LB - WD/2024/1689/F.
The Barn sits within a plot of approximately 2.3 acres, to include a paddock beyond the main barn. It is noted that the current owners have laid on mains water to the site.
Old Mill is located along Newick Lane, and The Barn is located behind Old Mill, approximately 2 miles from the village of Mayfield, with easy access to footpaths leading back to Mayfield, as well as Heathfield and open countryside beyond. The UK National Cycle Route 21 runs up Newick Lane.
Facilities in the village include a small supermarket, post office, butcher, baker, pharmacy, florist, greengrocers and deli as well as GP surgery, dentist and hairdressers. There are also a couple of cafes and Period Inns, including the renowned Middle House Hotel. There are pretty churches of various denominations, a flourishing primary school and the well-regarded Mayfield School for Girls secondary school.
For more comprehensive facilities Tunbridge Wells is 9 miles to the north. Railway stations can be found at Wadhurst (5 miles), Crowborough (6 miles), and Tunbridge Wells. These provide a fast and regular service to London Charing Cross, London Bridge and Canon Street. There is a regular bus service to Tunbridge Wells and Eastbourne.
The area provides an excellent selection of both state and private schools. Nearby leisure facilities include tennis, bowls, numerous golf clubs, sailing and fishing on Bewl Water and at the coast.
Material Information:
Council Tax Band to be confirmed when the building work is completed
Mains water is available and other utilities will need to be connected.
The property is believed to be of stone, brick and timber construction with weatherboarded elevations and a tiled roof.
We are not aware of any safety issues or cladding issues, nor of any asbestos at the property.
The property is located within the AONB.
The property has never flooded during our client’s residence, but according to the Government Flood Risk website, there is a high risk of flooding.
Broadband coverage: we are informed that full fibre broadband is available at the cabinet.
There is minimal mobile coverage.
We are not aware of any mining operations in the vicinity.
We are not aware of planning permission for new houses / extensions at any neighbouring properties.
The property does not have step free access.
The property will be sold with an uplift clause in favour of the current owner, should planning for any additional dwellings be obtained.
B1, B3, B6
Rear Garden
Paddock
Parking - Double garage
Parking - Driveway
Brochures
Brochure- COUNCIL TAXA payment made to your local authority in order to pay for local services like schools, libraries, and refuse collection. The amount you pay depends on the value of the property.Read more about council Tax in our glossary page.
- Ask agent
- LISTED PROPERTYA property designated as being of architectural or historical interest, with additional obligations imposed upon the owner.Read more about listed properties in our glossary page.
- Listed
- PARKINGDetails of how and where vehicles can be parked, and any associated costs.Read more about parking in our glossary page.
- Garage,Driveway
- GARDENA property has access to an outdoor space, which could be private or shared.
- Front garden,Rear garden
- ACCESSIBILITYHow a property has been adapted to meet the needs of vulnerable or disabled individuals.Read more about accessibility in our glossary page.
- Ask agent
Energy performance certificate - ask agent
Barn at Old Mill, Newick Lane, Mayfield. TN20 6RF
Add an important place to see how long it'd take to get there from our property listings.
__mins driving to your place
Get an instant, personalised result:
- Show sellers you’re serious
- Secure viewings faster with agents
- No impact on your credit score
Your mortgage
Notes
Staying secure when looking for property
Ensure you're up to date with our latest advice on how to avoid fraud or scams when looking for property online.
Visit our security centre to find out moreDisclaimer - Property reference 34a21fdc-f5a7-460a-a923-0a4f90029e13. The information displayed about this property comprises a property advertisement. Rightmove.co.uk makes no warranty as to the accuracy or completeness of the advertisement or any linked or associated information, and Rightmove has no control over the content. This property advertisement does not constitute property particulars. The information is provided and maintained by Burnetts, Mayfield. Please contact the selling agent or developer directly to obtain any information which may be available under the terms of The Energy Performance of Buildings (Certificates and Inspections) (England and Wales) Regulations 2007 or the Home Report if in relation to a residential property in Scotland.
*This is the average speed from the provider with the fastest broadband package available at this postcode. The average speed displayed is based on the download speeds of at least 50% of customers at peak time (8pm to 10pm). Fibre/cable services at the postcode are subject to availability and may differ between properties within a postcode. Speeds can be affected by a range of technical and environmental factors. The speed at the property may be lower than that listed above. You can check the estimated speed and confirm availability to a property prior to purchasing on the broadband provider's website. Providers may increase charges. The information is provided and maintained by Decision Technologies Limited. **This is indicative only and based on a 2-person household with multiple devices and simultaneous usage. Broadband performance is affected by multiple factors including number of occupants and devices, simultaneous usage, router range etc. For more information speak to your broadband provider.
Map data ©OpenStreetMap contributors.








