
3 bedroom detached bungalow for sale
Shaw Road, Coseley

- PROPERTY TYPE
Detached Bungalow
- BEDROOMS
3
- BATHROOMS
1
- SIZE
Ask agent
- TENUREDescribes how you own a property. There are different types of tenure - freehold, leasehold, and commonhold.Read more about tenure in our glossary page.
Freehold
Key features
- ATTRACTIVE DETACHED DOUBLE FRONTED BUNGALOW
- THREE DOUBLE BEDROOMS
- SPACIOUS LOUNGE
- DINING ROOM
- FITTED KITCHEN
- BATHROOM
- 33FT TANDEM GARAGE
- LOW MAINTENANCE - PRIVATE REAR GARDEN
- DRIVEWAY & GARDEN TO FORE
- NO UPWARD CHAIN
Description
Detached Double-Fronted Three-Bedroom Bungalow – Prime Coseley Location
Situated in a sought-after area of Coseley, this spacious and well-presented bungalow offers convenience and comfort, just a short walk from Coseley Train Station and a range of local amenities.
Key Features:
Generous Living Space: Welcoming reception hallway, dual-aspect lounge, separate dining room, and a well-appointed kitchen.
Bedrooms: Two double bedrooms on the ground floor, plus an additional double bedroom on the first floor with landing access.
Bathroom: Family bathroom conveniently located on the ground floor.
Exterior:Impressive 33ft garage
Private, landscaped rear and side gardens
Front garden with driveway providing ample parking
Additional Benefits: Gas central heating, UPVC double glazing, and NO UPWARD CHAIN for a hassle-free purchase.
This property combines generous proportions with a prime location, making it an ideal home for families or downsizers seeking space and accessibility.
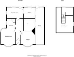
Entrance Porch
Reception Hall
Lounge - 4.88m max x 3.84m (16'0" max x 12'7")
Dining Room - 4.09m x 3.12m max (13'5" x 10'3" max)
Kitchen - 3.05m x 3m (10'0" x 9'10")
Bedroom - 3.84m x 4.22m max (12'7" x 13'10" max)
Bedroom - 3.07m x 3.18m max (10'1" x 10'5" max)
First Floor Landing
Bedroom - 4.52m x 4.27m (14'10" x 14'0")
Garage - 10.31m x 2.64m (33'10" x 8'8")
EPC - TBA. Council Tax - C. Tenure – Freehold.
**Please note that there are two recorded mine entries within approximately 20 meters of the boundary of the property—one adjacent and one two doors away. This is common in the local area due to historical mining activity. Comprehensive reports and guidance are available, and we recommend buyers seek appropriate advice and surveys for reassurance. Our team can assist with further information and next steps.**
Construction: Brick with a pitched interlocking tile roof.
All mains services are connected. Broadband/Mobile coverage: checker.ofcom.org.uk/en-gb/broadbandcoverage/
Flood Risk - Less than 0.1% chance per annum.
SEDGLEY BRANCH
By law, we are required to conduct anti-money laundering checks on all potential buyers and sellers, and we take this responsibility very seriously. In line with HMRC guidelines, our trusted partner, Coadjute, will securely manage these checks on our behalf. Once an offer is accepted (subject to contract), Coadjute will send a secure link for you to complete the biometric checks electronically. A non-refundable fee of £40 + VAT per person will apply for these checks, and Coadjute will handle the payment for this service. These anti-money laundering checks must be completed before we can send the memorandum of sale to the solicitors to confirm the sale. Please contact the office if you have any questions in relation to this.
- COUNCIL TAXA payment made to your local authority in order to pay for local services like schools, libraries, and refuse collection. The amount you pay depends on the value of the property.Read more about council Tax in our glossary page.
- Band: C
- PARKINGDetails of how and where vehicles can be parked, and any associated costs.Read more about parking in our glossary page.
- Garage,Driveway
- GARDENA property has access to an outdoor space, which could be private or shared.
- Private garden
- ACCESSIBILITYHow a property has been adapted to meet the needs of vulnerable or disabled individuals.Read more about accessibility in our glossary page.
- Ask agent
Shaw Road, Coseley
Add an important place to see how long it'd take to get there from our property listings.
__mins driving to your place
Get an instant, personalised result:
- Show sellers you’re serious
- Secure viewings faster with agents
- No impact on your credit score


Your mortgage
Notes
Staying secure when looking for property
Ensure you're up to date with our latest advice on how to avoid fraud or scams when looking for property online.
Visit our security centre to find out moreDisclaimer - Property reference S1510891. The information displayed about this property comprises a property advertisement. Rightmove.co.uk makes no warranty as to the accuracy or completeness of the advertisement or any linked or associated information, and Rightmove has no control over the content. This property advertisement does not constitute property particulars. The information is provided and maintained by Taylors Estate Agents, Sedgley. Please contact the selling agent or developer directly to obtain any information which may be available under the terms of The Energy Performance of Buildings (Certificates and Inspections) (England and Wales) Regulations 2007 or the Home Report if in relation to a residential property in Scotland.
*This is the average speed from the provider with the fastest broadband package available at this postcode. The average speed displayed is based on the download speeds of at least 50% of customers at peak time (8pm to 10pm). Fibre/cable services at the postcode are subject to availability and may differ between properties within a postcode. Speeds can be affected by a range of technical and environmental factors. The speed at the property may be lower than that listed above. You can check the estimated speed and confirm availability to a property prior to purchasing on the broadband provider's website. Providers may increase charges. The information is provided and maintained by Decision Technologies Limited. **This is indicative only and based on a 2-person household with multiple devices and simultaneous usage. Broadband performance is affected by multiple factors including number of occupants and devices, simultaneous usage, router range etc. For more information speak to your broadband provider.
Map data ©OpenStreetMap contributors.





